Skip to main content

MyWinkworth

Sold

Picture No. 14
Picture No. 09
Picture No. 10
Picture No. 07
Picture No. 06
Picture No. 08
Picture No. 03
Picture No. 02
Picture No. 01
Picture No. 04
Picture No. 05
Picture No. 11
Picture No. 12
Picture No. 13
6/14

Church Road, Three Legged Cross, Wimborne, BH21

3 bedroom house in Three Legged Cross

Guide Price £400,000 Freehold

  • Bedrooms 3
  • Bathrooms 1
  • Reception rooms 2
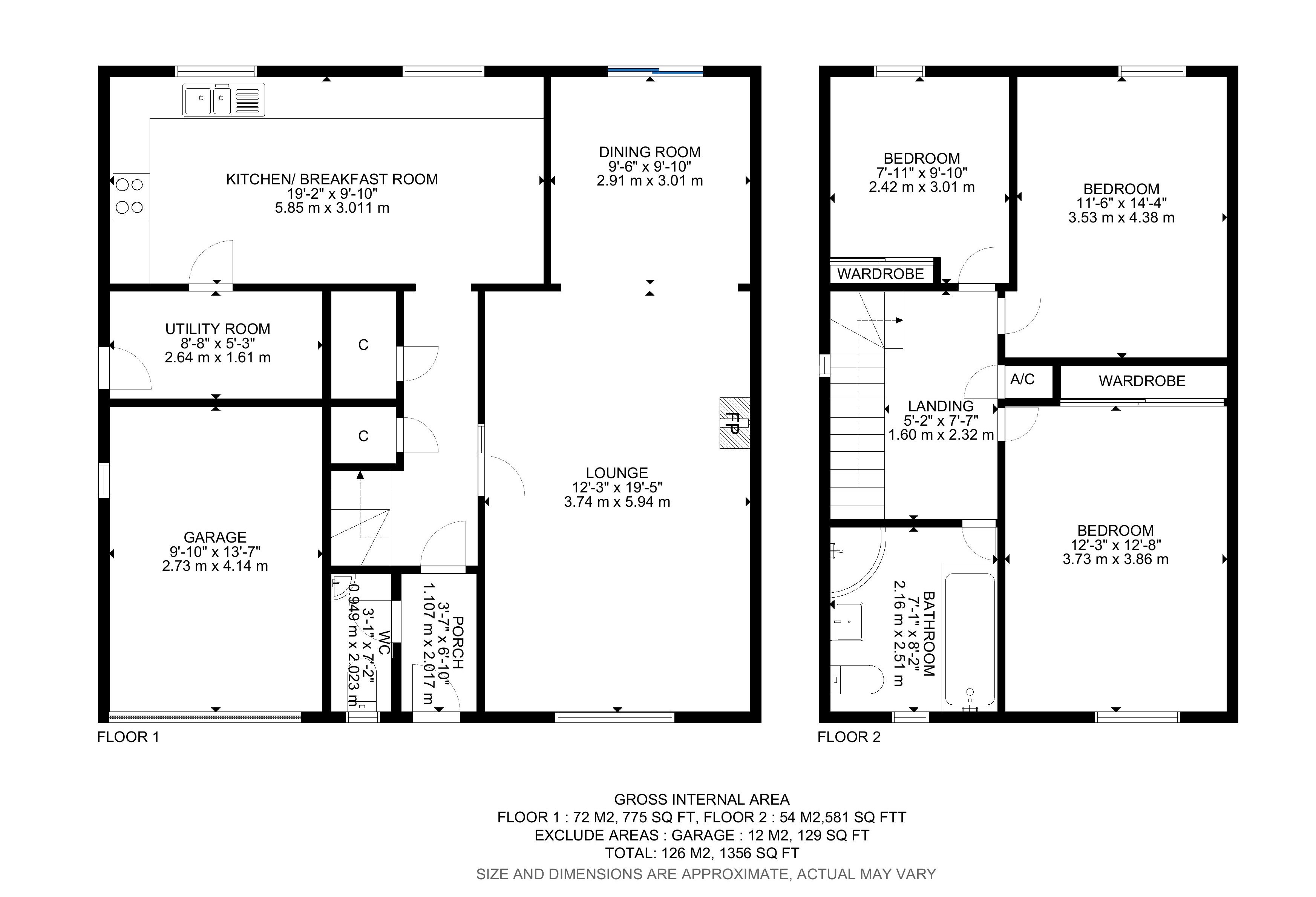
  • Floorplan

PICTURES AND VIDEOS

KEY FEATURES

  • Three Double Bedrooms
  • Modern Kitchen/Diner
  • Low Maintenance Rear Garden
  • Off Road Parking For Several Vehicles
  • Garage
  • Close To Good Road Links & Amenities
  • No Onward Chain
  • Downstairs Cloakroom
  • Excellent Condition Throughout
  • Positioned In A Quiet Residential Area

KEY INFORMATION

  • Tenure: Freehold
  • Council Tax Band: D

Description

A bright and spacious, extended family home with three double bedrooms and excellent reception space. Well maintained throughout, the property further benefits from potential to extend and no onward chain. Located in a quiet residential area moments from commuter links and amenities.



The property has been modernised and vastly improved by the current owners and the layout comprises; modern fitted cooke and lewis kitchen with range cooker, slate flooring and feature lighting that leads to a separate utility room with convenient side access. Very spacious through lounge/diner with patio doors directly onto the garden. There is plenty of storage as well as a downstairs cloakroom with hand basin and w.c.

Upstairs there is a very spacious main bedroom with built in wardrobes, a further large double bedroom and a smaller double bedroom with built in wardrobes. The main bathroom has a bath with a separate stand in shower, w.c and hand basin. To the front of the property there is off road parking for several vehicles and a single garage with light and power, side access leads to a low maintenance rear garden with an outside tap and power socket.

Location

Located conveniently close to the pretty village of West Moors which has a range of amenities, including cafés, pubs and a Tesco Express. Award winning beaches are just 20 minutes away and the nearby A31 provides quick access to the New Forest, Southampton and beyond for the commuter by car. The ever popular Moors Valley Country Park and Snowtrax Alpine Activity Centre are just a short distance away and for the keen golfer, several of Dorset’s premier golf clubs are nearby.
Introduction text for the mortgage calculator

Mortgage Calculator

Fill in the details below to estimate your monthly repayments:

Approximate monthly repayment:

For more information, please contact Winkworth's mortgage partner, Trinity Financial, on +44 (0)20 7267 9399 and speak to the Trinity team.

Stamp Duty Calculator

Fill in the details below to estimate your stamp duty

The above calculator above is for general interest only and should not be relied upon

6/14
Picture No. 14
Picture No. 09
Picture No. 10
Picture No. 07
Picture No. 06
Picture No. 08
Picture No. 03
Picture No. 02
Picture No. 01
Picture No. 04
Picture No. 05
Picture No. 11
Picture No. 12
Picture No. 13

Meet the Team

As one of the most experienced teams in Ferndown our recently refurbished office is found in the heart of Ferndown. Please come and talk to us about your property requirements, and get to know the team from the Winkworth Estate Agents in Ferndown.

See all team members

Got a question about this property?

This site is protected by reCAPTCHA and the Google Privacy Policy and Terms of Service apply.

More Properties like this

Golf Links Road, Ferndown, Dorset, BH22

Guide Price £1,650,000 Freehold

Golf Links Road, Ferndown, Dorset, BH22

Guide Price £1,250,000 Freehold

Under Offer

Pinewood Road, Ferndown, Dorset, BH22

Guide Price £1,075,000 Freehold

New Instruction

Chine Walk, West Parley, Ferndown, Dorset, BH22

Guide Price £1,000,000 Freehold

Furzelands Road, Three Legged Cross, Wimborne, Dorset, BH21

Guide Price £950,000 Freehold

Beaufoys Avenue, Ferndown, Dorset, BH22

Guide Price £950,000 Freehold

Online Valuations Aren’t Worth The Paper They’re Printed On.

When online valuations don’t give you the whole picture - try Winkworth’s expert service. Get a free property appraisal. Accurate valuations from our local property experts. No obligation to list with Winkworth. Choose a time convenient for you with our online booking system.

Fill in your details and someone will be in touch soon:

You have provisionally booked a valuation for . Please confirm your details below

We don't have date info available for this property, but if you fill in your details below, someone will be in touch to arrange a date soon

Please fill in the required fields below marked with *

This site is protected by reCAPTCHA and the Google Privacy Policy and Terms of Service apply.