Church Lane, Fovant, Salisbury, Wiltshire, SP3
3 bedroom house in Fovant
£520,000 Freehold
- 3
- 2
- 2
PICTURES AND VIDEOS

















KEY INFORMATION
- Tenure: Freehold
- Council Tax Band: D
Description
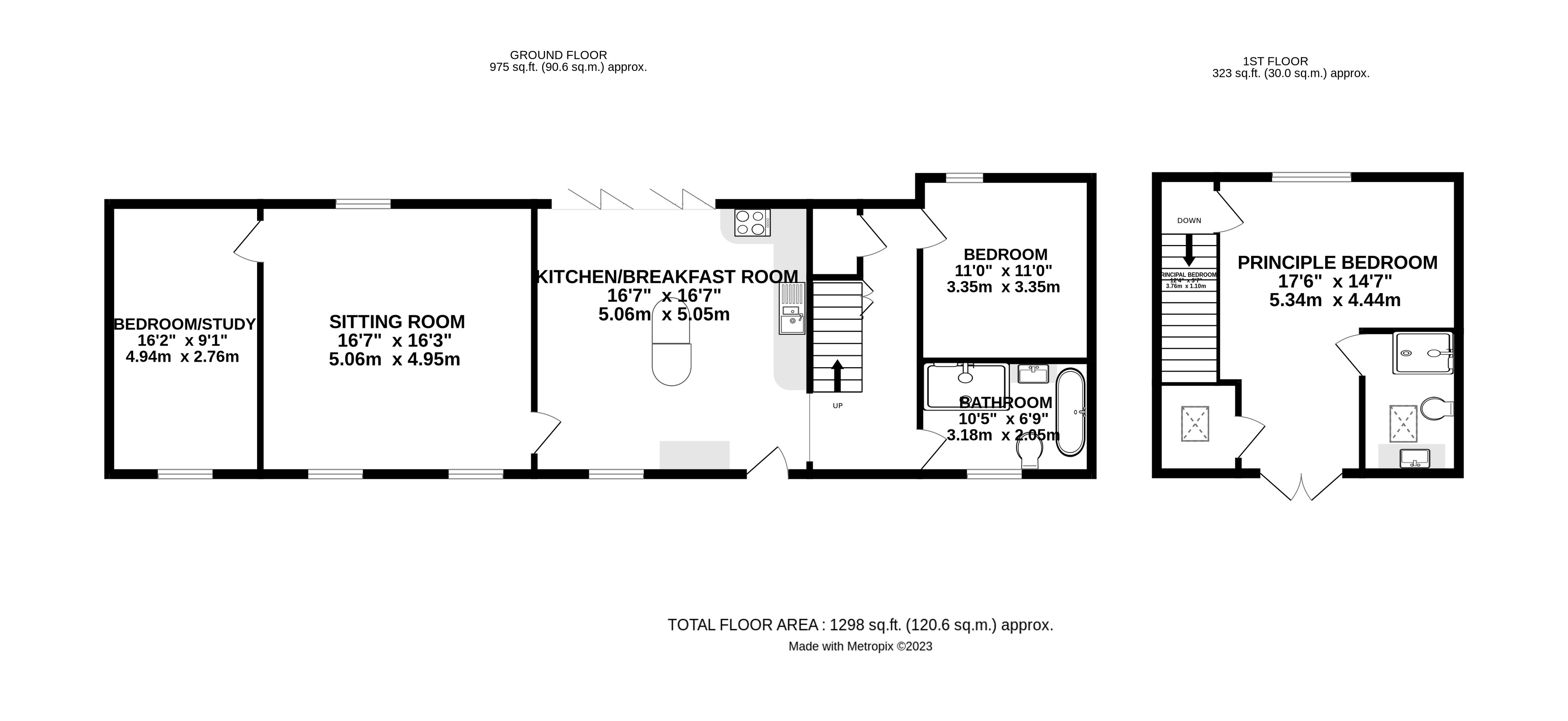
The property is the particularly generous and versatile three bedroom period barn conversion which forms part of a small development of farm buildings in this edge of village position. The accommodation has been refurbished by our client to include a substantial living kitchen/dining room with central island and bifold doors onto a generous rear garden. This rural outlook to the rear resonates throughout much of the property and in particular the covered seating and patio area that would be well suited to alfresco dining.
The ground floor includes a separate spacious sitting room, guest bedroom (used by our client is a large study) additional bedroom with adjacent ground floor bathroom. A staircase leads upstairs to a further bedroom (suitable guest bedroom) which has a well appointed shower room. The property has neutral colour schemes throughout. Viewing of this property is highly recommended.
SERVICES
Oil fired central heating
Mains drains and water
Utilities
- Electricity Supply: Mains Supply
- Water Supply: Mains Supply
- Sewerage: Mains Supply
- Heating: Electric
- Broadband: FTTP
- Mobile Coverage: Ultrafast Broadband available. Mobile coverage inside limited with O2. Mobile coverage outside likely with EE Three, O2 and Vodafone.
Rights & Restrictions
- Listed Property: No
- Restrictions: No
- Easements, servitudes or wayleaves: No
- Public right of way: No
Risks
- Flood Risk: There has not been flooding in the last 5 years
- Flood Defence: No
Location
Marketed by
Winkworth Salisbury
Properties for sale in SalisburyArrange a Viewing
Fill in the form below to arrange your property viewing.
Mortgage Calculator
Fill in the details below to estimate your monthly repayments:
Approximate monthly repayment:
For more information, please contact Winkworth's mortgage partner, Trinity Financial, on +44 (0)20 7267 9399 and speak to the Trinity team.
Stamp Duty Calculator
Fill in the details below to estimate your stamp duty
The above calculator above is for general interest only and should not be relied upon
Meet the Team
Our team at covering the Salisbury are are here to support and advise our customers when they need it most. We understand that buying, selling, letting or renting can be daunting and often emotionally meaningful. We are there, when it matters, to make the journey as stress-free as possible.
See all team members