Skip to main content

MyWinkworth

Sold

Picture No. 02
Picture No. 07
Picture No. 09
Picture No. 05
Picture No. 03
Picture No. 11
Picture No. 12
Picture No. 04
Picture No. 06
Picture No. 08
Picture No. 10
Picture No. 13
6/14

Chillingworth Road, Islington, London, N7

1 bedroom flat/apartment

£500,000 Share of Freehold

  • Bedrooms 1
  • Bathrooms 1
  • Reception rooms 1
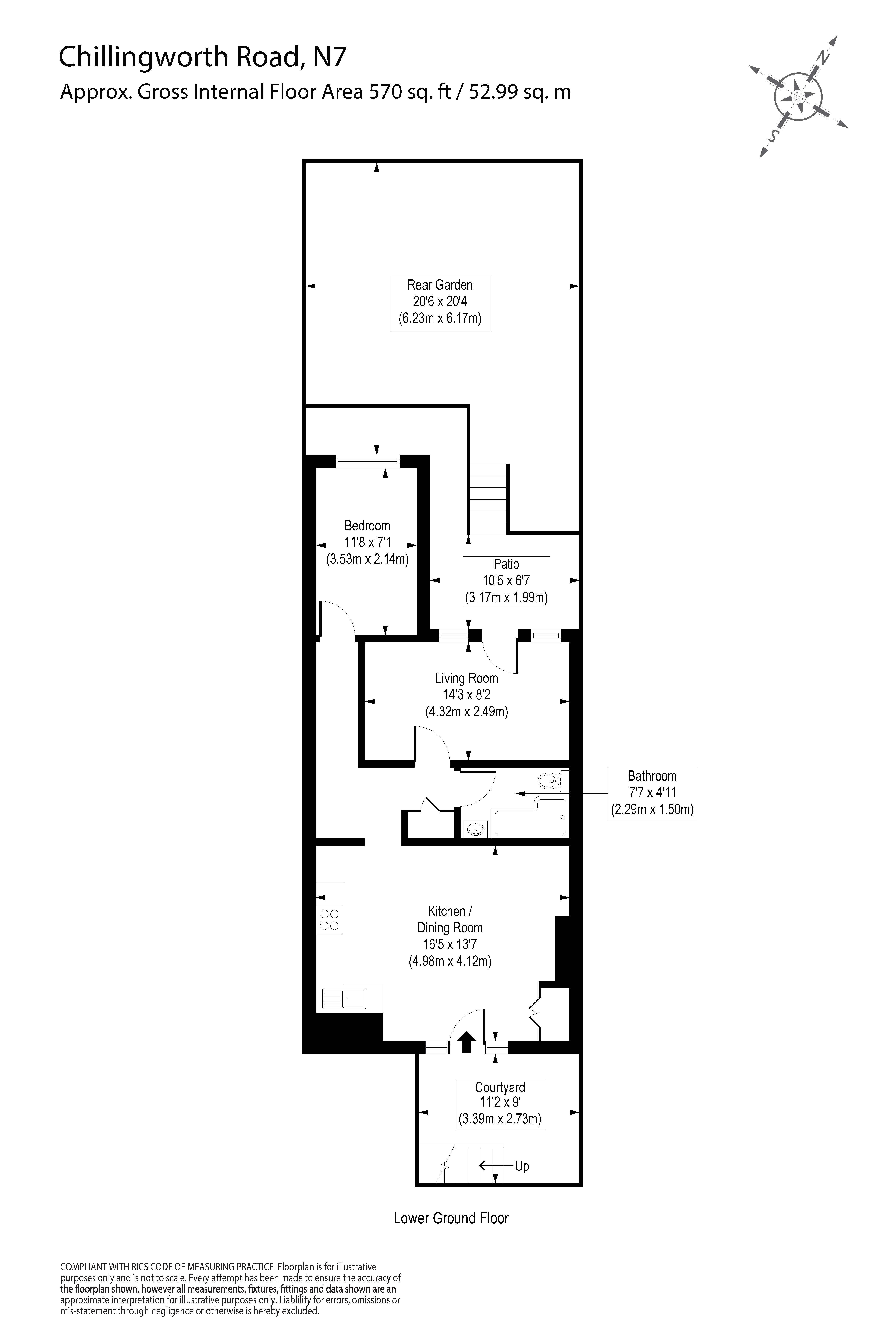
  • Floorplan

PICTURES AND VIDEOS

KEY INFORMATION

  • Tenure: Share of Freehold
  • Lease Length: 984 yrs left
  • Council Tax Band: D
  • Local Authority: Islington Council

Description

This absolutely brilliant one bedroom flat is situated on a residential street in north Barnsbury and benefits from private off street entrance and a wonderfully practical layout. The kitchen offers ample space for entertaining with room for a large dining table whilst the fitted kitchen has plenty of storage and worktop space. A family sized bathroom has been finished in a contemporary style with neutral tones and floor to ceiling tiling and quality appliances which compliment the floating sink and vanity unit. The double bedroom is located to the rear of the flat and offers a peaceful outlook over the secluded garden whilst the living room is also positioned to the rear and provides direct access to the patio which steps up to the low maintenance grassed area.
The boutique shops, restaurants and bars on Upper Street are all within easy reach as are the independent shops on Highbury Barn. A selection of fantastic transport links are on hand with Highbury and Islington providing overground and underground services on the Victoria line whilst the Piccadilly line runs from Holloway road. A weekday service from Drayton Park ensures effortless access to Moorgate whilst an array of bus routes provide effortless access across London. The open green spaces at Highbury Fields are just moments away as is Paradise Park and St Mary Magdalene Gardens.
The property comes with a share of the freehold and is being sold on a chain free basis.
Introduction text for the mortgage calculator

Mortgage Calculator

Fill in the details below to estimate your monthly repayments:

Approximate monthly repayment:

For more information, please contact Winkworth's mortgage partner, Trinity Financial, on +44 (0)20 7267 9399 and speak to the Trinity team.

Stamp Duty Calculator

Fill in the details below to estimate your stamp duty

The above calculator above is for general interest only and should not be relied upon

6/14
Picture No. 02
Picture No. 07
Picture No. 09
Picture No. 05
Picture No. 03
Picture No. 11
Picture No. 12
Picture No. 04
Picture No. 06
Picture No. 08
Picture No. 10
Picture No. 13

Meet the Team

Our knowledgeable, friendly team here at Winkworth Islington Estate Agents are on hand to help whether you're buying, selling or renting. While we favour the local approach, by working closely with our London and national network alongside dedicated Corporate Services, marketing and PR departments, we give our clients an unparalleled advantage, matching homes with buyers and tenants throughout London and the UK.

See all team members

Got a question about this property?

This site is protected by reCAPTCHA and the Google Privacy Policy and Terms of Service apply.

More Properties like this

Nile Street, London, N1

£1,400,000 Share of Freehold

Under Offer

Richmond Avenue, London, N1

Offers in excess of £1,250,000 Leasehold

Duncan Terrace, London, N1

£1,250,000 Share of Freehold

Under Offer

Penton Street, London, N1

Offers in excess of £1,100,000 Leasehold

Enfield Road, London, N1

Offers in excess of £975,000 Leasehold

Under Offer

Barnsbury Park, London, N1

£900,000 Leasehold

Online Valuations Aren’t Worth The Paper They’re Printed On.

When online valuations don’t give you the whole picture - try Winkworth’s expert service. Get a free property appraisal. Accurate valuations from our local property experts. No obligation to list with Winkworth. Choose a time convenient for you with our online booking system.

Fill in your details and someone will be in touch soon:

You have provisionally booked a valuation for . Please confirm your details below

We don't have date info available for this property, but if you fill in your details below, someone will be in touch to arrange a date soon

Please fill in the required fields below marked with *

This site is protected by reCAPTCHA and the Google Privacy Policy and Terms of Service apply.