Chevening Road, London, NW6
1 bedroom flat/apartment in London
£475,000 Share of Freehold
- 1
- 1
- 1
-
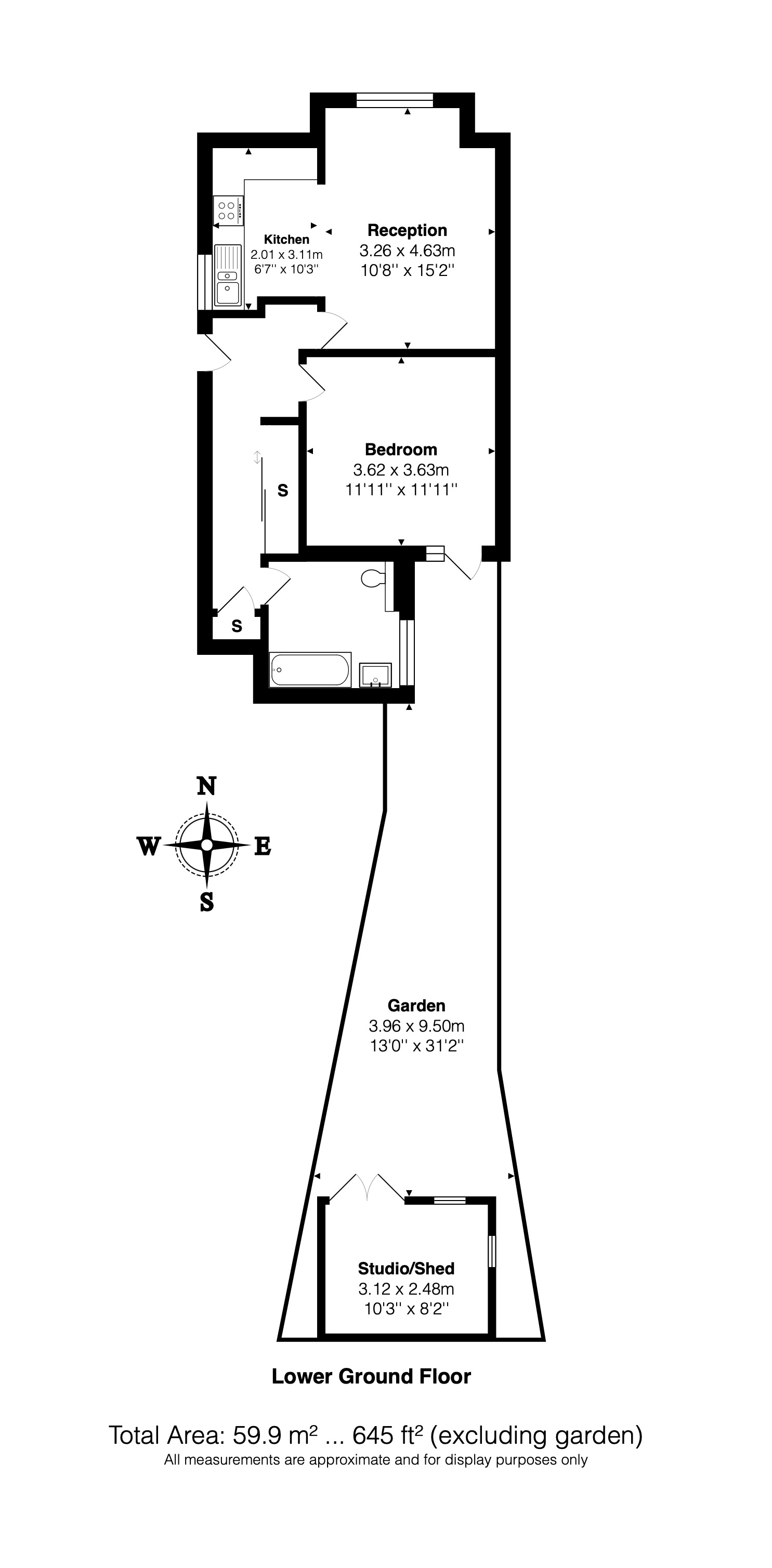
645 sq ft
59 sq m -
PICTURES AND VIDEOS









KEY FEATURES
- 645 SQFT
- PRIVATE SOUTH FACING GARDEN
- OUTBUILDING
- NO UPPER CHAIN
- SHARE OF FREEHOLD
- CLOSE TO AMENITIES & TRANSPORT LINKS
KEY INFORMATION
- Tenure: Share of Freehold
- Council Tax Band: C
Description
This wonderful garden flat is spread across 645 sq ft and features a private front entrance, with spacious open-plan kitchen, living and dining room dining area, with windows on both sides that flood the space with natural light – this is ideal for entertaining. The generously sized bedroom offers plenty of room for wardrobes and further storage, as well as providing direct access to the private rear garden. The bathroom is a well-appointed three piece suite. A wide entrance hall includes built-in utility space and ample storage.
Outside, the private rear garden is framed by mature trees and offers a perfect setting for barbecues and outdoor entertaining. Being directly south facing, it is a great sun trap. An additional outbuilding adds flexibility, ideal for use as a studio, office, or gym.
The property further benefits from no upper chain, and share of freehold.
Utilities
- Electricity Supply: Mains Supply
- Water Supply: Mains Supply
- Sewerage: Mains Supply
- Heating: Central Heating, Double Glazing, Gas Central
- Broadband: FTTP
- Mobile Coverage: Excellent
Rights & Restrictions
- Listed Property: No
- Restrictions: Yes
- Easements, servitudes or wayleaves: Yes
- Public right of way: No
Risks
- Flood Risk: There has not been flooding in the last 5 years
Location
Marketed by
Winkworth Kensal Rise & Queen's Park
Properties for sale in Kensal Rise & Queen's ParkArrange a Viewing
Fill in the form below to arrange your property viewing.
Mortgage Calculator
Fill in the details below to estimate your monthly repayments:
Approximate monthly repayment:
For more information, please contact Winkworth's mortgage partner, Trinity Financial, on +44 (0)20 7267 9399 and speak to the Trinity team.
Stamp Duty Calculator
Fill in the details below to estimate your stamp duty
The above calculator above is for general interest only and should not be relied upon
Meet the Team
Our team are here to support and advise our customers when they need it most. We understand that buying, selling, letting or renting can be daunting and often emotionally meaningful. We are there, when it matters, to make the journey as stress-free as possible.
See all team members