Skip to main content

MyWinkworth

New Instruction

Picture No. 02
Picture No. 10
Picture No. 14
Picture No. 09
Picture No. 08
Picture No. 12
Picture No. 11
Picture No. 07
Picture No. 05
Picture No. 04
Picture No. 03
Picture No. 06
Picture No. 13
Picture No. 15
Picture No. 01
6/14

Chepstow Drive, Bourne, Lincolnshire, PE10

3 bedroom house in Bourne

£220,000 Freehold

  • Bedrooms 3
  • Bathrooms 2
  • Reception rooms 2
  • Floorplan

PICTURES AND VIDEOS

KEY INFORMATION

  • Tenure: Freehold
  • Council Tax Band: B
  • Local Authority: South Kesteven

Description

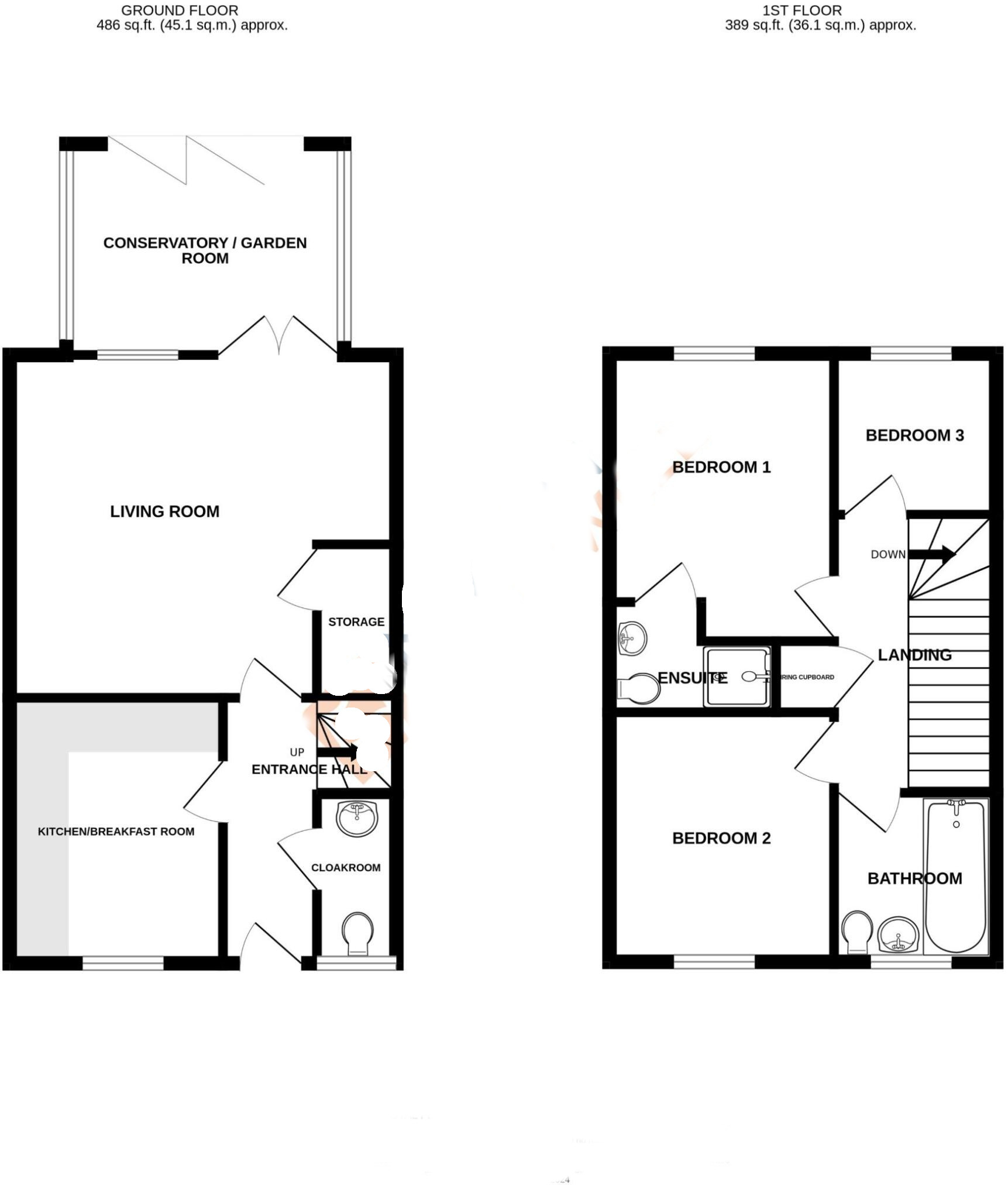
Winkworth are delighted to offer for sale this superbly presented and much improved three bedroom home with a quality garden room with bi folding doors onto the rear garden. The property is set over two floors with accommodation comprising, entrance hall, downstairs cloakroom, modern fitted kitchen/breakfast room, lounge with doors leading to the garden room. On the first floor the master bedroom benefits from a en-suite shower room, there are two further bedrooms and family bathroom. The property also benefits from upvc double glazed windows and gas central heating to radiators. Outside there is a private driveway to the side providing off road parking and to the rear a generous lawned garden with newly laid patio, timber shed and fully enclosed by fencing. Please call 01778 392807 for more information.

Rooms and Accommodations

  • Entrance Hall
  • With stairs leading to the first floor, Amtico flooring, radiator and door leading to:
  • Downstairs Cloakroom
  • With low level wc, wash hand basin, frosted window and Amtico flooring.
  • Kitchen/Breakfast Room
  • 3.28m x 2m
  • With modern fitted units comprising, one and a half bowl sink unit with cupboard below, excellent range of wall and base units, built in oven and hob with extractor above, space and plumbing for washing machine, space and plumbing for dishwasher, space for fridge freezer, wall mounted gas boiler supplying hot water and central heating, upvc double glazed window to the front, radiator and Amtico flooring.
  • Lounge
  • 4.9m x 4.24m
  • With built in storage cupboard, radiator, power points, upvc double glazed french doors and window to:
  • Garden Room
  • 3.43m x 2.6m
  • With bi folding doors onto the rear garden, Amtico flooring, radiator and power points.
  • First Floor Landing
  • With built in airing cupboard and door leading to:
  • Bedroom One
  • 3.66m x 2.82m
  • With upvc double glazed window to the rear, radiator, power points and door leading to:
  • En-Suite
  • With walk in shower cubicle, low level wc, wash hand basin, radiator and extractor fan.
  • Bedroom Two
  • 3.05m x 2.82m
  • With upvc double glazed window to the front, radiator and power points.
  • Bedroom Three
  • 2.06m x 2m
  • With upvc double glazed window to the rear, radiator and power points.
  • Bathroom
  • With panelled bath with wall mounted shower and glass screen, low level wc, wash hand basin, radiator and frosted window.
  • Outside
  • To the side there is a private driveway providing ample off road parking. There is a pathway with ornamental hedging leading to the front door. The rear garden has a newly laid patio leading onto a lawned garden with timber shed.

Marketed by

Winkworth Bourne

Properties for sale in Bourne

Arrange a Viewing

Fill in the form below to arrange your property viewing.

This site is protected by reCAPTCHA and the Google Privacy Policy and Terms of Service apply.
Introduction text for the mortgage calculator

Mortgage Calculator

Fill in the details below to estimate your monthly repayments:

Approximate monthly repayment:

For more information, please contact Winkworth's mortgage partner, Trinity Financial, on +44 (0)20 7267 9399 and speak to the Trinity team.

Stamp Duty Calculator

Fill in the details below to estimate your stamp duty

The above calculator above is for general interest only and should not be relied upon

6/14
Picture No. 02
Picture No. 10
Picture No. 14
Picture No. 09
Picture No. 08
Picture No. 12
Picture No. 11
Picture No. 07
Picture No. 05
Picture No. 04
Picture No. 03
Picture No. 06
Picture No. 13
Picture No. 15
Picture No. 01

Meet the Team

Our team are here to support and advise our customers when they need it most. We understand that buying, selling, letting or renting can be daunting and often emotionally meaningful. We are there, when it matters, to make the journey as stress-free as possible.

See all team members

Got a question about this property?

This site is protected by reCAPTCHA and the Google Privacy Policy and Terms of Service apply.

More Properties like this

Under Offer

Swallow Hill, Thurlby, Bourne, Lincolnshire, PE10

Offers in excess of £900,000 Freehold

North Road, Gedney Hill, Spalding, Lincolnshire, PE12

£695,000 Freehold

Under Offer

Clarks Close, Morton, Bourne, Lincolnshire, PE10

£695,000 Freehold

Swallow Hill, Thurlby, Bourne, Lincolnshire, PE10

£685,000 Freehold

High Street, Horbling, Sleaford, Lincolnshire, NG34

£675,000 Freehold

Saxon Way, Bourne, PE10

£550,000 Freehold

Online Valuations Aren’t Worth The Paper They’re Printed On.

When online valuations don’t give you the whole picture - try Winkworth’s expert service. Get a free property appraisal. Accurate valuations from our local property experts. No obligation to list with Winkworth. Choose a time convenient for you with our online booking system.

Fill in your details and someone will be in touch soon:

You have provisionally booked a valuation for . Please confirm your details below

We don't have date info available for this property, but if you fill in your details below, someone will be in touch to arrange a date soon

Please fill in the required fields below marked with *

This site is protected by reCAPTCHA and the Google Privacy Policy and Terms of Service apply.