New Instruction
Brenchley Gardens, London, SE23
3 bedroom house
£550,000 Freehold
- 3
- 1
- 1
PICTURES AND VIDEOS












KEY FEATURES
- Three bedrooms
- Bright front reception room
- Private, well-maintained rear garden
- Scope for personal updating and improvement
- Excellent location in SE23 near parks, schools, and transport
KEY INFORMATION
- Tenure: Freehold
- Council Tax Band: D
- Local Authority: Southwark Council
Description
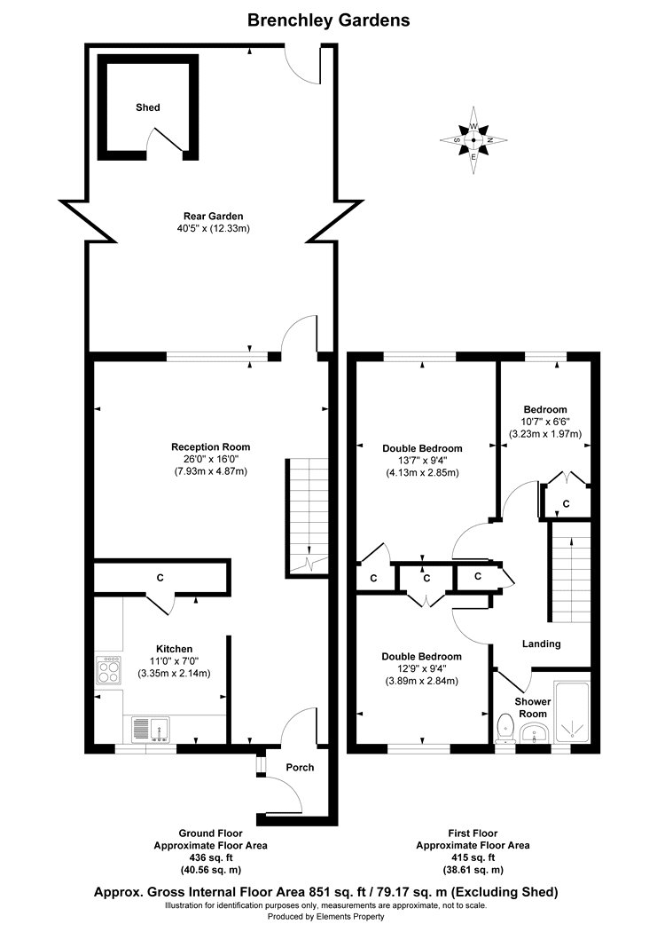
The property features a traditional layout, with a front reception room, kitchen, and bathroom on the ground floor, and three bedrooms upstairs. While the bedrooms are compact, they offer flexibility for use as sleeping space, a home office, or additional storage. With some modernisation, the home has great potential to be tailored to suit a variety of lifestyles.
One of the standout features is the well-kept private garden to the rear—an inviting space that provides a peaceful escape and plenty of scope for outdoor enjoyment throughout the year.
Perfectly positioned between the green expanses of Peckham Rye Park and One Tree Hill, the home also benefits from easy access to excellent local amenities, schools, and transport links, including Honor Oak Park station for fast connections into Central London.
Mobile phone coverage:
EE ( Good outdoor and variable in-home)
Three (Good outdoor and variable in-home)
O2 ( Good outdoor and variable in-home)
Vodaphone ( Good outdoor and variable in-home)
(Potential purchasers are advised to seek their own advice as to the suitability of the services and mobile phone coverage, the above is for guidance only.)
Available broadband: Ultrafast Broadband: FTTP
Standard Broadband: ADSL
Networks in your area: Virgin Media, Hyperoptic, Openreach
(Information supplied by Ofcom)
Flood Risk: Low risk of surface water flooding / Very low risk river and sea flooding (Information supplied by gov.uk and purchasers are advised to seek their own legal advice)
Tenure: Freehold
Local Council: Southwark / Tax Band: C
EPC Rating: C
Floor plan: Whilst every attempt has been made to ensure accuracy, all measurements are approximate and not to scale. The floor plan is for illustrative purposes only.
Marketed by
Winkworth Dulwich
Properties for sale in DulwichArrange a Viewing
Fill in the form below to arrange your property viewing.
Mortgage Calculator
Fill in the details below to estimate your monthly repayments:
Approximate monthly repayment:
For more information, please contact Winkworth's mortgage partner, Trinity Financial, on +44 (0)20 7267 9399 and speak to the Trinity team.
Stamp Duty Calculator
Fill in the details below to estimate your stamp duty
The above calculator above is for general interest only and should not be relied upon
Meet the Team
Our team at Winkworth Dulwich Estate Agents are here to support and advise our customers when they need it most. We understand that buying, selling, letting or renting can be daunting and often emotionally meaningful. We are there, when it matters, to make the journey as stress-free as possible.
See all team members