Skip to main content

MyWinkworth

Picture No. 05
Picture No. 12
Picture No. 14
Picture No. 13
Picture No. 07
Picture No. 06
Picture No. 10
Picture No. 11
Picture No. 09
Picture No. 08
Picture No. 04
6/14

Brandram Road, Lewisham, London, SE13

2 bedroom flat/apartment

Guide Price £425,000 Share of Freehold

  • Bedrooms 2
  • Bathrooms 1
  • Reception rooms 1
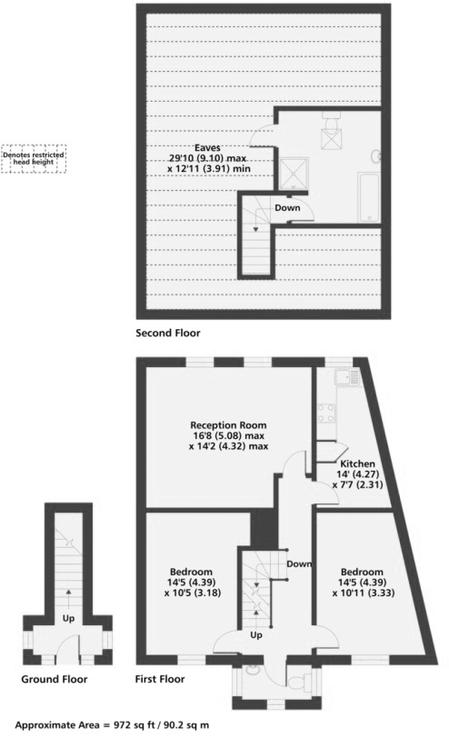
  • Floorplan

PICTURES AND VIDEOS

KEY FEATURES

  • split-level period conversion
  • two double bedrooms
  • off-street parking
  • chain-free
  • share of freehold
  • 0.4 miles to Blackheath Village
  • “House-like” layout over two floors
  • approx. 972 sq.ft + extensive eaves storage (total ~1,510 sq.ft)

KEY INFORMATION

  • Tenure: Share of Freehold
  • Lease Length: 971 yrs left
  • Ground rent: £100.00 per annum
  • Ground rent review period: 4 yrs
  • Council Tax Band: C
  • Local Authority: Lewisham

Description

Guide Price £425,000-£450,000. A bright and characterful two bedroom split-level period conversion with its own front door and off-street parking, offered chain-free and with a share in the freehold just 0.4 miles from Blackheath Village.



Ideal for buyers wishing to imprint their own style, some light modernisation would go a long way and, in our view, should be straightforward to achieve.

Inside, the first-floor landing opens to a generous reception (16'8 x 14'2 max) with stripped wood floors and double-glazed sash windows. A separate fitted kitchen sits just off the hall, keeping cooking and entertaining neatly zoned. Two well-proportioned double bedrooms provide calm, balanced spaces, complemented by a smart bathroom on the upper level and excellent built-in/eaves storage. This unique property has a “house-like” layout over two floors spanning Approx. 972 sq.ft with ample eaves storage taking the total to 1510 sq.ft.

Situated just 0.4 miles from Blackheath Village, residents enjoy easy access to an array of amenities including bars, restaurants, boutique shops, a farmers market, and a mainline station. The magnificent Royal Greenwich Park, located just 0.77 miles away, offers serene green spaces, while Greenwich town centre boasts historical landmarks such as the Royal Naval Hospital, the Royal Observatory, the National Maritime Museum, and the restored Cutty Sark. For local convenience, Manor House Gardens with its children's play park and farmers market is a mere seven-minute walk away.

Blackheath Station offers connections to London Bridge, Charing Cross, Victoria, and more. With access to the DLR, London Overground, buses, riverboats, foot tunnels, and cable cars, commuting to Canary Wharf, the City, and central London is effortless. With its convenient location, excellent transport links, and renowned schools, the area is increasingly popular among young professionals and commuters. The nearby O2 adds to the area's appeal, offering entertainment and leisure options for residents and visitors alike.

The Ofsted rated “Outstanding” St Margaret’s and John Ball primary schools are extremely close and the property sits in the catchment area for Thomas Tallis secondary school.

Share of freehold: 971 years
Ground Rent: £100 pa
Service Charges: n/a

Local Authority: Lewisham
Tax Band: C

N.B. These details have been provided by the vendor. Any interested party should have these checked by a solicitor as part of the purchase process.

Utilities

  • Electricity Supply: Mains Supply
  • Water Supply: Mains Supply
  • Sewerage: Mains Supply
  • Heating: Gas Central

Rights & Restrictions

  • Listed Property: No
  • Restrictions: No
  • Easements, servitudes or wayleaves: No
  • Public right of way: No

Risks

  • Flood Risk: There has not been flooding in the last 5 years

Marketed by

Winkworth Blackheath

Properties for sale in Blackheath

Arrange a Viewing

Fill in the form below to arrange your property viewing.

This site is protected by reCAPTCHA and the Google Privacy Policy and Terms of Service apply.
Introduction text for the mortgage calculator

Mortgage Calculator

Fill in the details below to estimate your monthly repayments:

Approximate monthly repayment:

For more information, please contact Winkworth's mortgage partner, Trinity Financial, on +44 (0)20 7267 9399 and speak to the Trinity team.

Stamp Duty Calculator

Fill in the details below to estimate your stamp duty

The above calculator above is for general interest only and should not be relied upon

6/14
Picture No. 05
Picture No. 12
Picture No. 14
Picture No. 13
Picture No. 07
Picture No. 06
Picture No. 10
Picture No. 11
Picture No. 09
Picture No. 08
Picture No. 04

Meet the Team

As one of the oldest estate agents in Blackheath, ranked no 1 for both sales and lettings, our local knowledge and expertise is second to none. Our recently refurbished flagship office is found in the heart of the Village, directly opposite Blackheath Station, where you can call in for advice seven days a week.

See all team members

Got a question about this property?

This site is protected by reCAPTCHA and the Google Privacy Policy and Terms of Service apply.

More Properties like this

Video Tour

Brooklands Park, Blackheath, London, SE3

£1,500,000 Share of Freehold

Virtual Tour

Under Offer

South Row, Blackheath, London, SE3

OIRO £900,000 Share of Freehold

Glenluce Road, Blackheath, London, SE3

£895,000 Share of Freehold

Video Tour

Under Offer

St Johns Park, Blackheath, London, SE3

£895,000 Share of Freehold

Video Tour

Under Offer

Pond Road, Blackheath, London, SE3

£875,000 Leasehold

Video Tour

Pond Road, Blackheath, London, SE3

Offers in excess of £800,000 Share of Freehold

Online Valuations Aren’t Worth The Paper They’re Printed On.

When online valuations don’t give you the whole picture - try Winkworth’s expert service. Get a free property appraisal. Accurate valuations from our local property experts. No obligation to list with Winkworth. Choose a time convenient for you with our online booking system.

Fill in your details and someone will be in touch soon:

You have provisionally booked a valuation for . Please confirm your details below

We don't have date info available for this property, but if you fill in your details below, someone will be in touch to arrange a date soon

Please fill in the required fields below marked with *

This site is protected by reCAPTCHA and the Google Privacy Policy and Terms of Service apply.