New Instruction
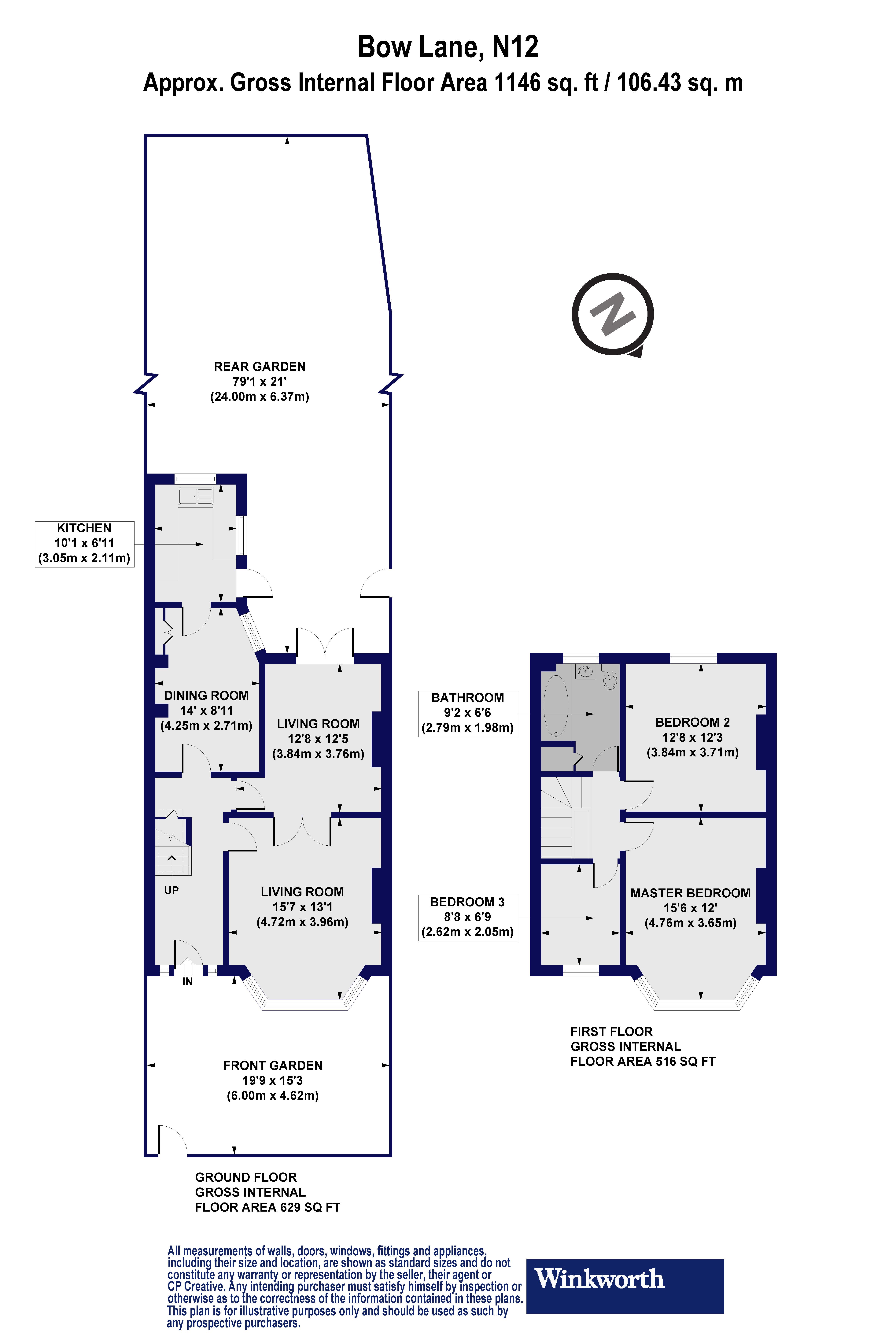
Bow Lane, Finchley, London, N12
3 bedroom house in Finchley
£775,000 Freehold
- 3
- 1
- 2
PICTURES AND VIDEOS














KEY FEATURES
- End of terrace
- Period features
- Through lounge
- Three bedrooms
- Potential to extend stpp
- Ideal for amenities, transport links & schools
KEY INFORMATION
- Tenure: Freehold
Description
Bow Lane is ideally located for transport links, with a 15min walk to West Finchley or Finchley Central underground stations and a bus route to East Finchley underground, with local amenities, recreational parkland, such as Victoria Park and a stone's throw from Finchley Memorial Grounds Open Space, as well as being in the catchment area for outstanding Ofsted rated primary schools.
An internal viewing is highly recommended.
Marketed by
Winkworth Finchley
Properties for sale in FinchleyArrange a Viewing
Fill in the form below to arrange your property viewing.
Mortgage Calculator
Fill in the details below to estimate your monthly repayments:
Approximate monthly repayment:
For more information, please contact Winkworth's mortgage partner, Trinity Financial, on +44 (0)20 7267 9399 and speak to the Trinity team.
Stamp Duty Calculator
Fill in the details below to estimate your stamp duty
The above calculator above is for general interest only and should not be relied upon
Meet the Team
Here at Winkworth Finchley Estate Agents, our local knowledge and expertise will give you the advantage. Thanks to 25 years serving the Finchley community, we know the area inside out and we always ensure our service is friendly, professional and personal from start to finish.
See all team members