New Instruction
Bloemfontein Avenue, London, W12
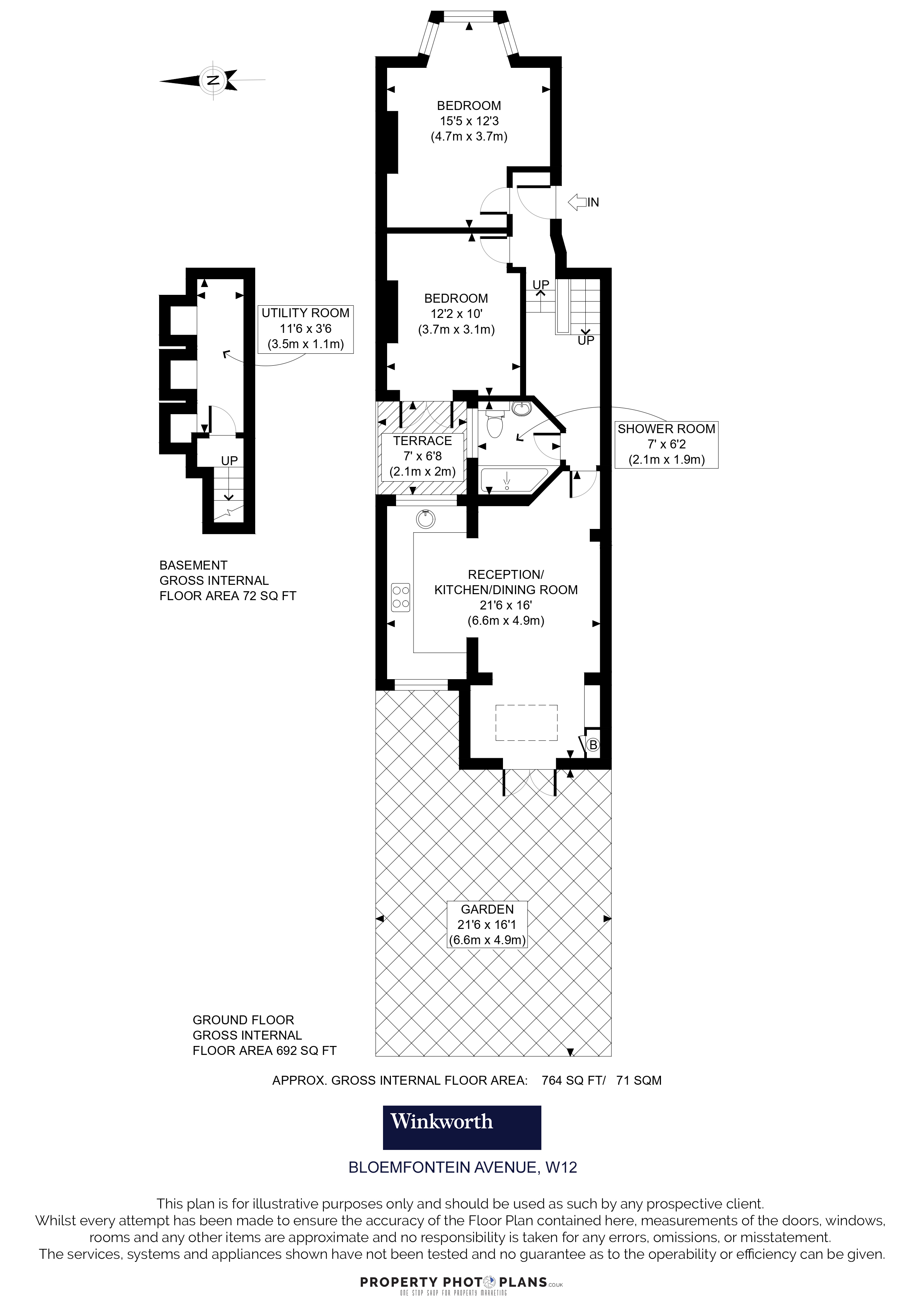
2 bedroom flat/apartment
£700,000 Leasehold
- 2
- 1
- 1
PICTURES AND VIDEOS









KEY FEATURES
- Reception Room
- Open Plan Kitchen
- 2 Bedrooms
- Bathroom
- Utility Room
- Courtyard
- Garden
- 764 Sq Ft / 71 Sq M
- Council Tax Band D
- EPC Rating Band D
KEY INFORMATION
- Tenure: Leasehold
- Lease Length: 171 yrs left
- Service charge: £400.00 per annum
- Council Tax Band: D
Description
Offered to the market in great condition is this two-double bedroom ground floor garden flat.
The property comprises, two double bedrooms, family bathroom, separate patio off one of the bedrooms and a spacious open plan kitchen/reception room with additional space for a dining area. The dining area gives direct access to a lovely private west-facing garden.
There is also a cellar in the flat, ideal for storage or use as a utility room.
The property is sold with no onward chain.
Leasehold: 189 years from 26th June 2008 (171 years remaining)
Outgoings – Building Insurance £400 p.a., all other costs on an ad hoc basis
Ground Rent:- N/A
Location
Marketed by
Winkworth Shepherds Bush & Acton
Properties for sale in Shepherds Bush & ActonArrange a Viewing
Fill in the form below to arrange your property viewing.
Mortgage Calculator
Fill in the details below to estimate your monthly repayments:
Approximate monthly repayment:
For more information, please contact Winkworth's mortgage partner, Trinity Financial, on +44 (0)20 7267 9399 and speak to the Trinity team.
Stamp Duty Calculator
Fill in the details below to estimate your stamp duty
The above calculator above is for general interest only and should not be relied upon
Meet the Team
At Winkworth Shepherds Bush Estate Agents, we pride ourselves on offering high standards and a personal service. As the longest serving agent in W12, we've been matching people with homes for over 30 years from our prominent position on Uxbridge Road. We love our area and between us, our close-knit team of 15 has over 120 years combined experience, so you'll be in safe hands.
See all team members