Skip to main content

MyWinkworth

New Instruction

Picture No. 24
Picture No. 03
Picture No. 13
Picture No. 07
Picture No. 08
Picture No. 14
Picture No. 05
Picture No. 04
Picture No. 16
Picture No. 22
Picture No. 23
Picture No. 20
Picture No. 18
Picture No. 19
Picture No. 21
Picture No. 12
Picture No. 06
Picture No. 09
Picture No. 15
Picture No. 17
Picture No. 10
Picture No. 11
6/14

Birch Close, Sonning Common, Reading, Oxfordshire, RG4

3 bedroom house in Sonning Common

Offers in excess of £500,000 Freehold

  • Bedrooms 3
  • Bathrooms 2
  • Reception rooms 1
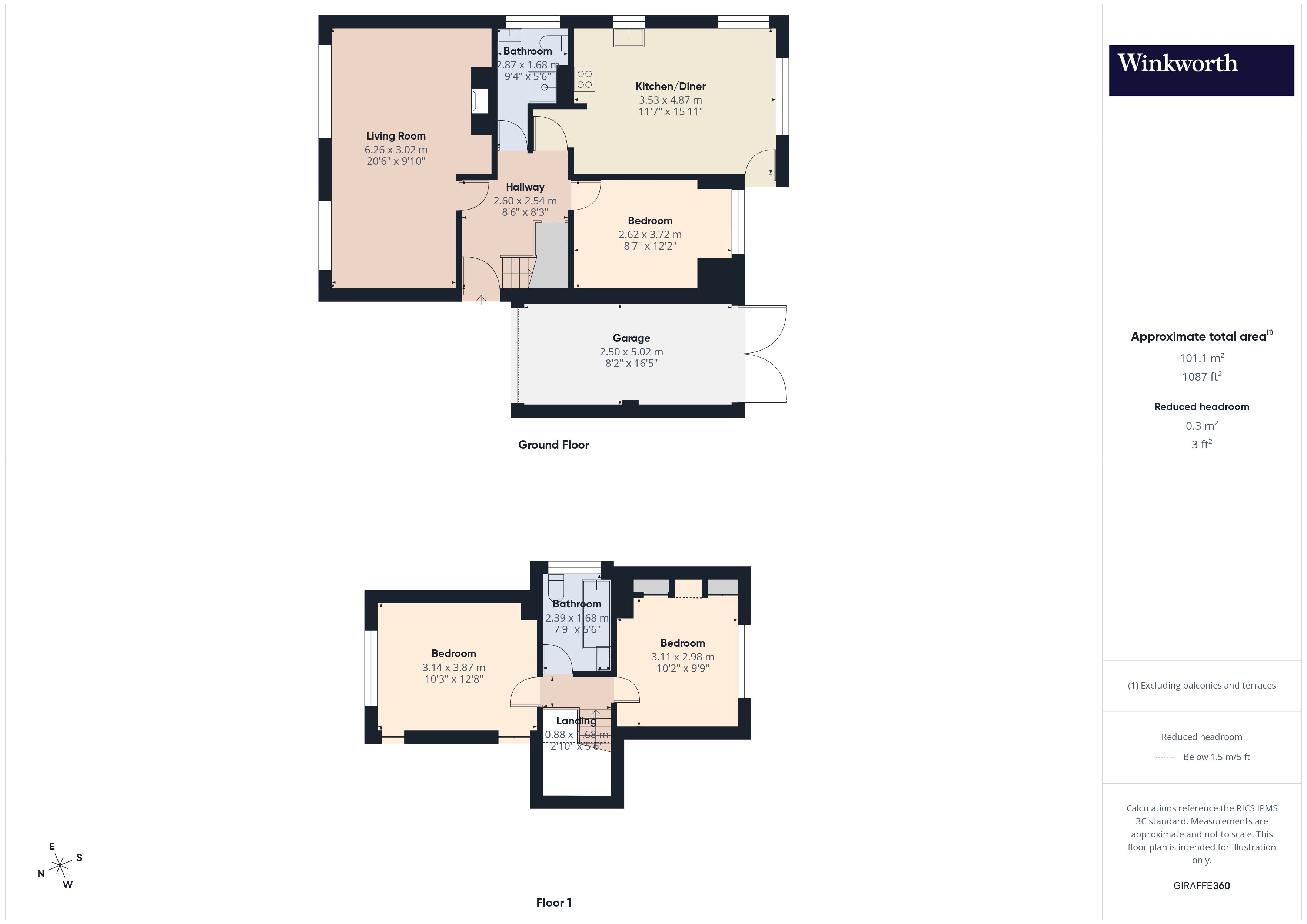
  • Floorplan

PICTURES AND VIDEOS

KEY FEATURES

  • Three Bedroom Detached Home in Village Location
  • Flexible Living Accommodation Over Two Floors
  • Two First Floor Bedrooms and Bathroom
  • Ground Floor Bedroom and Shower Room
  • Lounge & Fitted Kitchen/Diner
  • Garage with Front and Rear Access
  • Driveway Parking
  • Generous Plot With South Facing Wrap Around Garden
  • Please note this property belongs to and is being sold by a relative of a member of Winkworth staff

KEY INFORMATION

  • Tenure: Freehold
  • Council Tax Band: E
  • Local Authority: South Oxfordshire District Council

Description

Situated in a quiet close within this popular and convenient village setting, this attractive three-bedroom chalet-style bungalow occupies a generous plot on a no-through road. The property is approached via a brick-paved driveway providing ample off-road parking for several vehicles.
The accommodation is both versatile and well-proportioned. The ground floor comprises a lovely living room featuring a gas fire, a dual-aspect fitted kitchen/dining room with direct access to the garden, a ground-floor bedroom and shower room. To the first floor are two further bedrooms and a family bathroom, with both bedrooms benefiting from excellent eaves storage.
Externally, the property enjoys a delightful south-facing garden that wraps around the house, providing a private and sunny outdoor space ideal for relaxation or entertaining.
Set on the edge of the South Oxfordshire countryside, the home offers excellent transport links into central Reading by car, bicycle or via the number 25/25a bus service, which runs every half hour from the end of Westleigh Drive and reaches Reading in approximately 25 minutes. The village itself boasts a good range of local shops, a doctors’ surgery and well-regarded schools.
Offering further potential to extend, subject to the usual planning consents, this charming home would be well suited to a young family or those looking to downsize without compromising on space or location.

Location

Birch Close can be found off Westleigh Drive Which runs between Kennylands Road and Peppard Road in Sonning Common. The village of Sonning Common is located within South Oxfordshire. There is an extensive range of amenities including a supermarket, award winning health centre, dental surgery, veterinary surgery, library, restaurants and a range of shops providing day to day needs including a well-regarded butchers shop. There is a range of schooling from playgroups to Sonning Common Primary, Chiltern Edge Secondary and schools around Reading including Kendrick and Reading Grammar Schools, St Josephs College, Leighton Park, The Abbey, Blue Coats and Queen Anne’s. The nearby towns of Reading and Henley on Thames are both within 6 miles and there is good access to the motorway networks M4 and M40 and mainline train stations providing fast commuter services up to London from 30 minutes.

Marketed by

Winkworth Reading

Properties for sale in Reading

Arrange a Viewing

Fill in the form below to arrange your property viewing.

This site is protected by reCAPTCHA and the Google Privacy Policy and Terms of Service apply.
Introduction text for the mortgage calculator

Mortgage Calculator

Fill in the details below to estimate your monthly repayments:

Approximate monthly repayment:

For more information, please contact Winkworth's mortgage partner, Trinity Financial, on +44 (0)20 7267 9399 and speak to the Trinity team.

Stamp Duty Calculator

Fill in the details below to estimate your stamp duty

The above calculator above is for general interest only and should not be relied upon

6/14
Picture No. 24
Picture No. 03
Picture No. 13
Picture No. 07
Picture No. 08
Picture No. 14
Picture No. 05
Picture No. 04
Picture No. 16
Picture No. 22
Picture No. 23
Picture No. 20
Picture No. 18
Picture No. 19
Picture No. 21
Picture No. 12
Picture No. 06
Picture No. 09
Picture No. 15
Picture No. 17
Picture No. 10
Picture No. 11

Meet the Team

Located just 36 miles from Central London and 24 miles from Oxford, Reading's geographical placement is perfect for living and working or commuting. Michael and James are established professionals who have years of combined experience and local knowledge and can offer you a friendly approach and unparalleled service.

See all team members

Got a question about this property?

This site is protected by reCAPTCHA and the Google Privacy Policy and Terms of Service apply.

More Properties like this

Virtual Tour

Southend, Henley-on-Thames, Buckinghamshire, RG9

£3,750,000

Virtual Tour

Under Offer

Sulhamstead, Reading, Berkshire, RG7

Offers in excess of £1,750,000 Freehold

Virtual Tour

Ashford Hill Road, Headley, Thatcham, Hampshire, RG19

Offers in excess of £1,750,000 Freehold

Virtual Tour

Sonning Eye, Reading, Oxfordshire, RG4

£1,700,000

Video Tour

Under Offer

Part Lane, Riseley, Reading, Berkshire, RG7

Offers in excess of £1,500,000 Freehold

Virtual Tour

Dewe Lane, Burghfield, Reading, Berkshire, RG30

£1,500,000 Freehold

Online Valuations Aren’t Worth The Paper They’re Printed On.

When online valuations don’t give you the whole picture - try Winkworth’s expert service. Get a free property appraisal. Accurate valuations from our local property experts. No obligation to list with Winkworth. Choose a time convenient for you with our online booking system.

Fill in your details and someone will be in touch soon:

You have provisionally booked a valuation for . Please confirm your details below

We don't have date info available for this property, but if you fill in your details below, someone will be in touch to arrange a date soon

Please fill in the required fields below marked with *

This site is protected by reCAPTCHA and the Google Privacy Policy and Terms of Service apply.