Binswood Avenue, Leamington Spa, Warwickshire, CV32
5 bedroom house in Leamington Spa
Offers over £1,400,000 Freehold
- 5
- 3
- 3
-
3404 sq ft
316 sq m -
PICTURES AND VIDEOS







































KEY FEATURES
- Highly Desirable North Leamington Location
- 5 Double Bedrooms
- Warendorf Kitchen & Miele Appliacnes
- Formal Dining Room
- Drawing Room Leading into the Garden
- Beautiful Family Bathroom
- Two Ensuite Shower Rooms
- Private Walled Garden and Patio
- Garden Room Gym/Studio
- Cellar with Potential for Conversion
KEY INFORMATION
- Tenure: Freehold
- Council Tax Band: G
Description
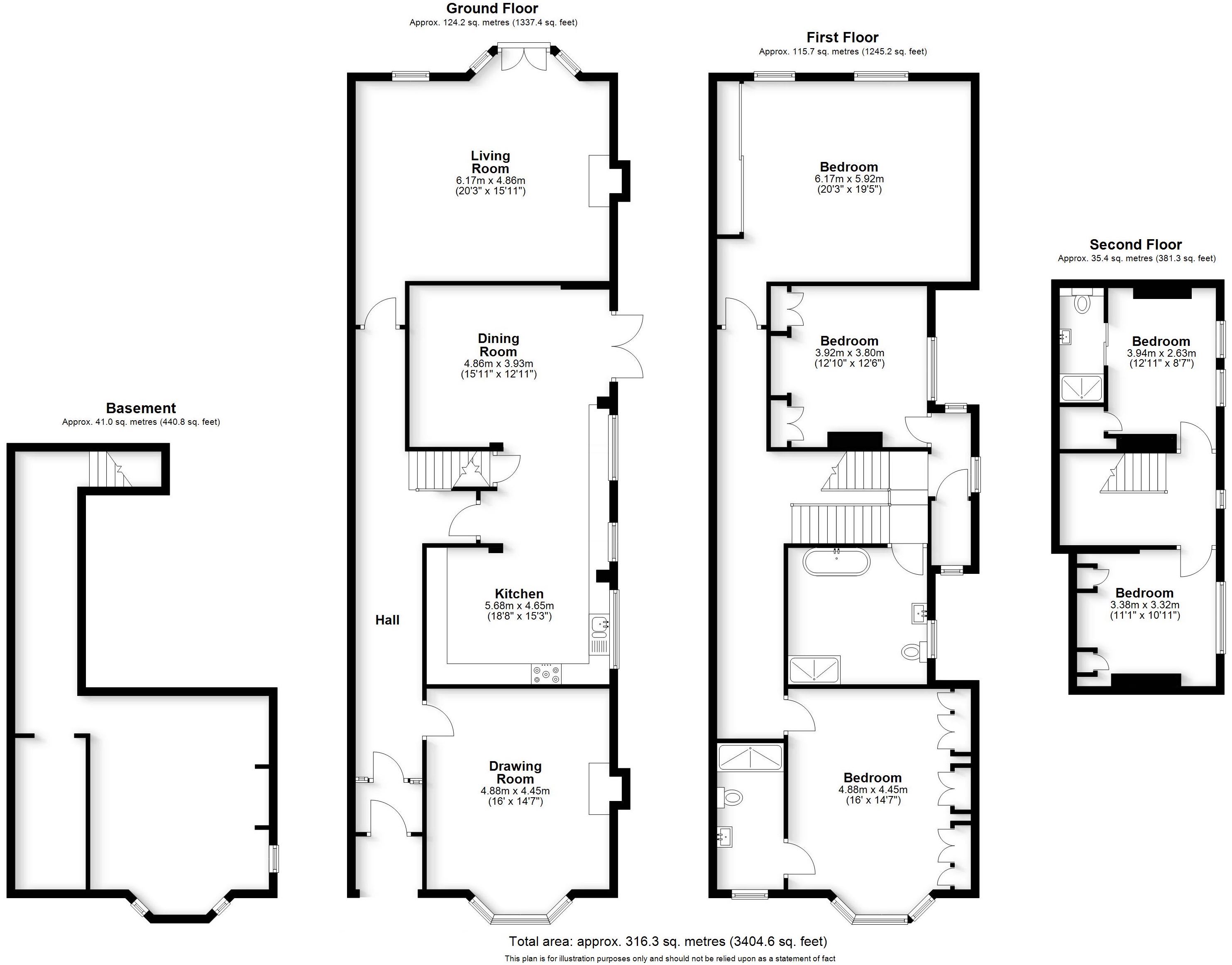
Having been tastefully modernised by the current owners while remaining sympatehtic to its historic past, this stunning family home offers flexible and elegant contemporary living and accommodation extending to approximately 3400 sq ft.
Nestled on this highly desirable, tree-lined avenue, Binswood Avenue is an imposing, five-bedroom, three-bathroom, semi-detached Victorian family home perfectly situated a stones throw from the Parade (0.4 miles) and the centre of Leamington Spa.
Offering flexible living accommodation set over four storeys, this stunning house has been tastefully modernised by the current owners, while seamlessly blending its period charm, proportions and style, to create a wonderful family home.
Upon entering Binswood Avenue an entrance vestibule with original Victorian tiles guides visitors into the generous entrance hall, with original stained glass door and double height ceilings, which spans the depth of the house and provides access to the downstairs living accommodation and stairs to the upper floors.
The formal dining room, which is currently used as an additional sitting room, is situated to the front of the property, with views across Binswood Avenue from the large, front aspect bay window. A central fireplace, original cornicing and full height ceilings provide an air of grandeur which is accentuated by the elegant interior design provided throughout the house by the popular local interior designer, Peter Staunton.
The impressive drawing room with a stunning chandelier at its centre befits a house of its nature. The current owners have replaced large bay windows at the rear with French doors that lead onto the rear terrace and gardens beyond, and provide an abundance of natural light. Custom built Neville Johnson cabinetry provides useful storage. This wonderful reception space is ideal for entertaining while remaining a peaceful and tranquil place to escape.
Located off the central hallway the luxurious kitchen and adjoining dining area are truly to be seen to be believed, incorporating the high quality materials, contrasting colouring and stunning finish synonymous with a Warendorf kitchen. This stunning space is further bolstered with high quality, integrated appliances including a 90cm Miele single oven, a Miele 45cm combi-oven, Miele 5 zone gas hobs with wok burner, Miele fridge and freezer, wine fridge and Siemens dishwasher. There is plentiful kitchen storage in the soft-closing, Hi-Gloss veneer cabinetry, and all finished off with 100mm thick Silestone countertops. The dining area is centred around a bespoke dining table and cabinetry, where visitors will find a Miele coffee machine integrated into the units. French doors provide side access to the front and rear of the property.
The storage cellar is accessed from a doorway in the kitchen.
Moving up the house, the central staircase guides visitors to a half landing which houses a generous bedroom, family bathroom and airing cupboard. The bedroom, which is currently used as a study, has bespoke Neville Johnson cabinetry and double desks, while the family bathroom is contemporary and stylish, with Villeroy & Boch WC, basin and stand alone bath, as well as a Matki shower. The airing cupboard has ample storage and houses dual Worcester Bosch boilers.
The first floor landing is spacious and provides access to the master bedroom as well as the principal guest bedroom. The sizeable master bedroom is flooded with natural light from two full height, sash windows which provide pretty views over the garden to the rear. A central fireplace adds period charm while large, bespoke wardrobes provide clothing storage. The principal guest bedroom enjoys a front aspect with large bay windows and full width, custom built wardrobes. The en-suite shower room benefits from Villeroy & Boch ceramics and a Matki shower, and is contemporary in style.
The second floor has two additional double bedrooms, one of which has a newly installed en-suite shower room, while the other has Neville Johnson cabinetry and a Murphy bed. Additional attic and eaves storage is available in the master bedroom.
Redesigned in 2019/20, the beautifully landscaped, south facing patio and rear walled garden is accessed via French doors in the drawing room as well as through kitchen doors to the side of the house. The wrap around patio has multiple seating areas and flows into a central hour-glass lawn which is flanked by mature trees, shrubs and flowerbeds. To the rear of the garden there is an additional patio where the current owners have a summer house, which would make for a wonderful studio or gym. On street, residents parking is available on Binswood Avenue, and a gate to the rear of the property provides access to Trinity Street.
**Agents Notes: This property is located within the Binswood Avenue Conservation Area.**
Material Information:
Council Tax: Band G
Local Authority: Warwick District Council Broadband: Ultrafast Broadband Available (Checked on Ofcom Apr 25)
Mobile Coverage: Limited/Likely Coverage (Checked on Ofcom Apr 25)
Heating: Gas Central Heating
Listed: No
Tenure: Freehold
Rooms and Accommodations
- Entrance Hall
- The entrance vestibule has stained glass original Victorian floor tiles.
- Kitchen
- The kitchen has been renovated to a beautiful standard with Miele and Siemens integrated appliances.
- Kitchen Dining Room
- The diner sits adjacent to the kitchen and has doors leading onto the patio garden.
- Dining Room
- The Dining Room sits to the front of the house with views across Binswood Avenue. It is currently used as an additional sitting room.
- Drawing Room
- The drawing room has doors leading onto the patio garden and is packed with original features.
- Master Bedroom
- The master bedroom has two larage sash windows overlooking the garden.
- Bedroom
- The principal guest bedroom has an en-suite shower room and built in wardrobes.
- Bedroom
- The fifth bedroom is currently used as an office and has custom-built Neville Johnson Cabintry.
- Bathroom
- The family bathroom on the first floor half-landing has Villeroy & Boch porcelain and a Mitki shower.
- Bedroom
- The fourth bedroom has an en-suit shower room and is a generous double.
- Bedroom
- The fifth bedroom features a custom built Murphy bed.
- Landing
- The landing is spacious and provides access to the first floor bedrooms.
- Ensuite Bathroom
- The en-suite shower room has been beautifully renovated.
- Cellar
- The cellar has a generous ceiling height and could be converted into additional living accommodation.
- Garden
- The garden has been re-designed in 2020 and is a tranquil place in which to relax, with mature trees and flower beds.
- Gym
- The garden room makes a phenomenal gym and creative space.
ACCESSIBILITY
- Unsuitable For Wheelchairs
Utilities
- Electricity Supply: Mains Supply
- Water Supply: Mains Supply
- Sewerage: Mains Supply
- Heating: Double Glazing, Gas Central, Under Floor Heating
- Broadband: FTTC
Rights & Restrictions
- Listed Property: No
- Restrictions: No
- Easements, servitudes or wayleaves: No
- Public right of way: No
Risks
- Flood Risk: There has not been flooding in the last 5 years
- Flood Defence: No
Location
For families the popular, independent, Kingsley School (0.1 miles) is across the square, while Arnold Lodge (0.3 miles), Warwick School (2.2 miles), Kings High School (2.6 miles) and North Leamington School (1.6 miles) are all located nearby.
There are nearby sports clubs, with the Leamington Lawn Tennis and Squash Club (0.4 miles) and Warwick Boat Club (2 miles) being particular local favourites.
The West Midlands are famed for being at the centre of the country, providing easy access nationally and Leamington Spa is no exception. Leamington Train Station (1.1 miles) provides a direct service to London Marylebone (1 hours 20 minutes) and Birmingham (33 minutes), while the M40 is accessed via multiple junctions. Birmingham International Airport (40 minutes has a wide selection of international destinations.
Marketed by
Winkworth Royal Leamington Spa
Properties for sale in Royal Leamington SpaArrange a Viewing
Fill in the form below to arrange your property viewing.
Mortgage Calculator
Fill in the details below to estimate your monthly repayments:
Approximate monthly repayment:
For more information, please contact Winkworth's mortgage partner, Trinity Financial, on +44 (0)20 7267 9399 and speak to the Trinity team.
Stamp Duty Calculator
Fill in the details below to estimate your stamp duty
The above calculator above is for general interest only and should not be relied upon