Skip to main content

MyWinkworth

Sold

Kitchen-Reception P2
Kitchen
External Part Two
Garden Part Two
Kitchen-Reception P1
External Part One
Reception Area
Bedroom One Part One
Bedroom One Part Two
Bedroom Two
Bathroom
Garden Part One
Garden Part Three
6/14

Barry Road, East Dulwich, London, SE22

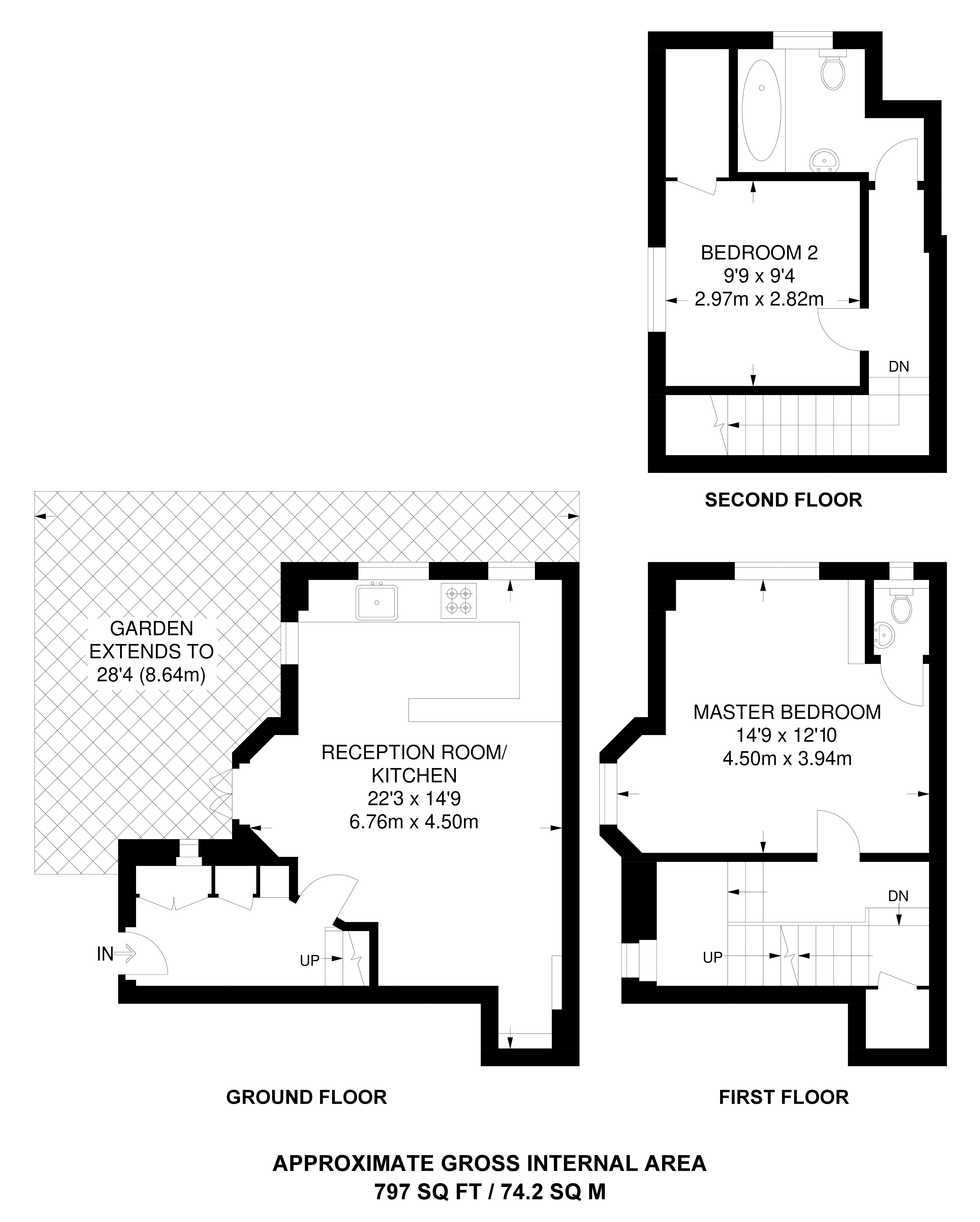
2 bedroom maisonette

Offers in excess of £600,000 Leasehold

  • Bedrooms 2
  • Bathrooms 1
  • Reception rooms 1
  • Floorplan

PICTURES AND VIDEOS

KEY FEATURES

  • Split Level Maisonette
  • Two Bedrooms
  • Reception Room/Kitchen
  • Fully Fitted Kitchen
  • Modern Bathroom
  • Private Section of the Decked Garden
  • Prime Location
  • Chain Free

KEY INFORMATION

  • Tenure: Leasehold
  • Lease Length: 128 yrs left
  • Ground rent: £150.00 per annum

Description

A stunning, characterful maisonette situated in a prime location in SE22 close to Peckham Rye Park. This charming maisonette is offered to the market chain free.

Comprising a spacious, open-plan kitchen/reception, complete with fully-fitted kitchen and French doors leading out to a private section of the decked garden. The property further comprises two spacious double bedrooms, a tastefully finished family bathroom and ensuite. The property is perfect for a first-time buyer looking to establish their roots on the local property market, a young family or buy to let investor. The location offers fantastic access to Peckham Rye Park and Denmark Hill, both situated at either end of Barry Road. Multiple bus links situated on both Barry Road and Peckham Rye allow access to Honor Oak station for the East London line or Peckham Rye for the overground. Shops, bars, and restaurants can be found on Forest Hill Road or Lordship Lane, both within a short 5-minute walk. This is a fantastic flat in a superb location and early viewings are highly advised.

Leasehold: 132 years
Service Charge: No fixed charges, as and when works are required
Ground Rent: £150/year

Council Tax Band C
Introduction text for the mortgage calculator

Mortgage Calculator

Fill in the details below to estimate your monthly repayments:

Approximate monthly repayment:

For more information, please contact Winkworth's mortgage partner, Trinity Financial, on +44 (0)20 7267 9399 and speak to the Trinity team.

Stamp Duty Calculator

Fill in the details below to estimate your stamp duty

The above calculator above is for general interest only and should not be relied upon

6/14
Kitchen-Reception P2
Kitchen
External Part Two
Garden Part Two
Kitchen-Reception P1
External Part One
Reception Area
Bedroom One Part One
Bedroom One Part Two
Bedroom Two
Bathroom
Garden Part One
Garden Part Three

Meet the Team

Our team at Winkworth Dulwich Estate Agents are here to support and advise our customers when they need it most. We understand that buying, selling, letting or renting can be daunting and often emotionally meaningful. We are there, when it matters, to make the journey as stress-free as possible.

See all team members

Got a question about this property?

This site is protected by reCAPTCHA and the Google Privacy Policy and Terms of Service apply.

More Properties like this

Lordship Lane, East Dulwich, London, SE22

Offers in excess of £800,000 Share of Freehold

Under Offer

Crystal Palace Road, East Dulwich, London, SE22

£775,000 Share of Freehold

Under Offer

Friern Road, East Dulwich, London, SE22

£750,000 Share of Freehold

East Dulwich Road, East Dulwich, London, SE22

Offers in excess of £700,000 Leasehold

Under Offer

Lordship Lane, East Dulwich, London, SE22

£650,000 Leasehold

Under Offer

Bawdale Road, East Dulwich, London, SE22

£650,000 Share of Freehold

Online Valuations Aren’t Worth The Paper They’re Printed On.

When online valuations don’t give you the whole picture - try Winkworth’s expert service. Get a free property appraisal. Accurate valuations from our local property experts. No obligation to list with Winkworth. Choose a time convenient for you with our online booking system.

Fill in your details and someone will be in touch soon:

You have provisionally booked a valuation for . Please confirm your details below

We don't have date info available for this property, but if you fill in your details below, someone will be in touch to arrange a date soon

Please fill in the required fields below marked with *

This site is protected by reCAPTCHA and the Google Privacy Policy and Terms of Service apply.