Skip to main content

MyWinkworth

Picture No. 15
Picture No. 06
Picture No. 09
Picture No. 05
Picture No. 12
Picture No. 10
Picture No. 11
Picture No. 03
Picture No. 04
Picture No. 07
Picture No. 08
Picture No. 14
6/14

Adelaide Road, London, E10

1 bedroom flat/apartment in London

£600,000 Leasehold

  • Bedrooms 1
  • Bathrooms 2
  • Reception rooms 2
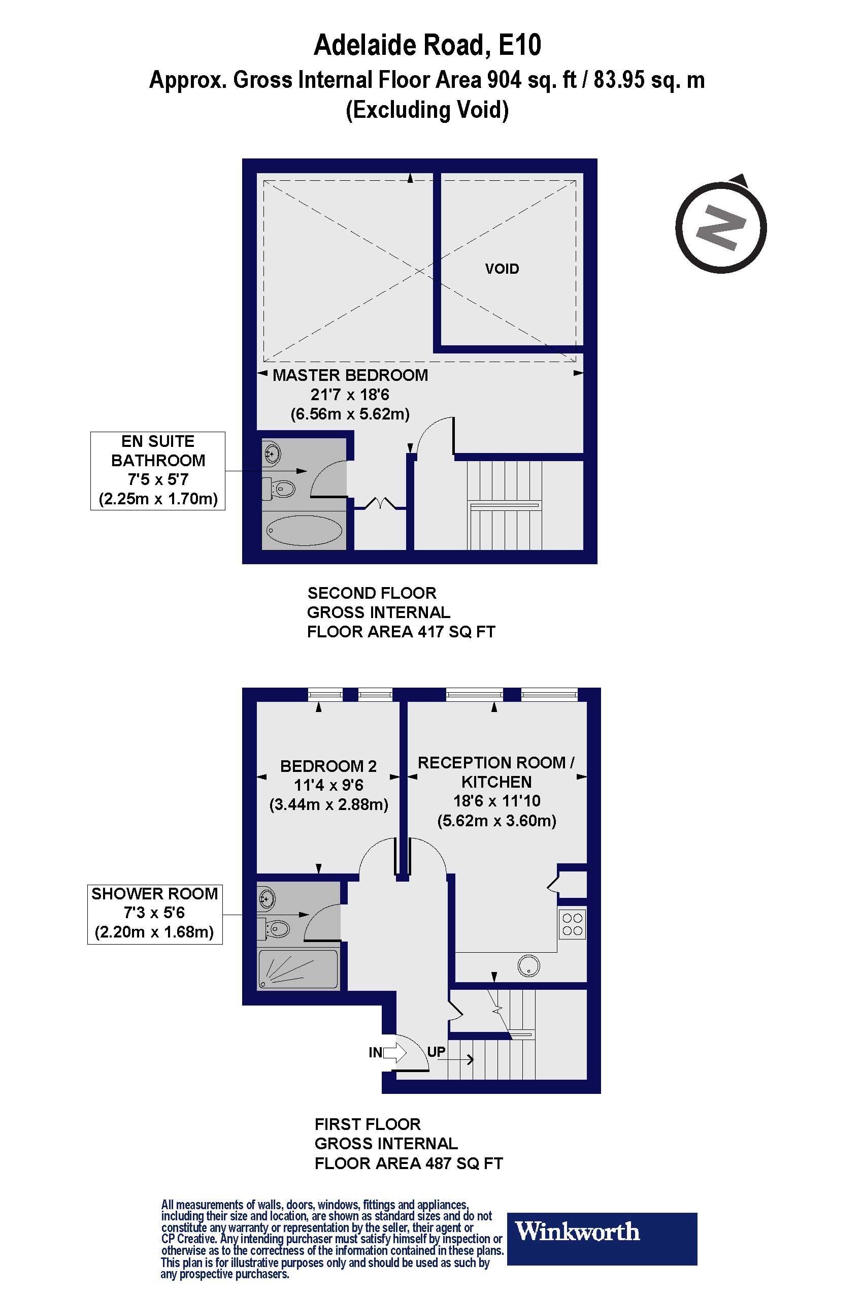
  • Dimensions 952 sq ft
    88 sq m
  • Floorplan

PICTURES AND VIDEOS

KEY INFORMATION

  • Tenure: Leasehold
  • Lease Length: 250 yrs left
  • Service charge: £3960.64 per annum
  • Council Tax Band: C

Description

A bright and characterful one-bedroom apartment set within the iconic Grade II listed Technical Institute on Adelaide Road, Leyton (E10). Spanning approximately 952 sq ft, this first-floor home blends historic charm with contemporary living in one of Leyton’s most sought-after buildings.

The apartment is defined by its loft-style proportions, including high ceilings, decorative panelling, and exposed beams, all complemented by a wall of large south-facing windows that flood the space with natural light throughout the day. The open-plan living area offers plenty of space for both lounge and dining, with a U-shaped kitchen fitted with sleek cabinetry, timber worktops, and integrated appliances.

A staircase leads to a mezzanine level, ideal as a home office, guest sleeping area, or creative space, while the double bedroom is bright and airy, benefiting from the same impressive south-facing glazing. A contemporary shower room and built-in storage complete the apartment.

Located a short walk from Leyton Underground station (Central Line), the independent cafés and shops of Francis Road, and green spaces including Coronation Gardens and the Queen Elizabeth Olympic Park, this apartment perfectly combines historic character, light-filled interiors, and a central East London location.

Rights & Restrictions

  • Listed Property: Yes

Marketed by

Winkworth Hackney

Properties for sale in Hackney

Arrange a Viewing

Fill in the form below to arrange your property viewing.

This site is protected by reCAPTCHA and the Google Privacy Policy and Terms of Service apply.
Introduction text for the mortgage calculator

Mortgage Calculator

Fill in the details below to estimate your monthly repayments:

Approximate monthly repayment:

For more information, please contact Winkworth's mortgage partner, Trinity Financial, on +44 (0)20 7267 9399 and speak to the Trinity team.

Stamp Duty Calculator

Fill in the details below to estimate your stamp duty

The above calculator above is for general interest only and should not be relied upon

6/14
Picture No. 15
Picture No. 06
Picture No. 09
Picture No. 05
Picture No. 12
Picture No. 10
Picture No. 11
Picture No. 03
Picture No. 04
Picture No. 07
Picture No. 08
Picture No. 14

Meet the Team

From our central Hackney office, our team are on hand to offer expert local knowledge. While we favour the local approach, by working closely with our national and London teams alongside a dedicated Corporate Services, marketing and PR department, we will give you an unparalleled advantage, putting your home in front of the right buyers and tenants throughout London and the UK. Whether you're looking to buy, sell, rent or let your home, we're here to help.

See all team members

Got a question about this property?

This site is protected by reCAPTCHA and the Google Privacy Policy and Terms of Service apply.

More Properties like this

Under Offer

Florfield Road, London, E8

Offers in excess of £875,000 Leasehold

Shore Road, Hackney, London, E9

£775,000 Leasehold

Cremer Street, London, E2

£750,000 Leasehold

Atkins Square, Dalston Lane, London, E8

£700,000 Leasehold

Under Offer

Blurton Road, London, E5

Offers in excess of £675,000 Share of Freehold

Under Offer

Downs Road, London, E5

Offers in excess of £660,000 Leasehold

Online Valuations Aren’t Worth The Paper They’re Printed On.

When online valuations don’t give you the whole picture - try Winkworth’s expert service. Get a free property appraisal. Accurate valuations from our local property experts. No obligation to list with Winkworth. Choose a time convenient for you with our online booking system.

Fill in your details and someone will be in touch soon:

You have provisionally booked a valuation for . Please confirm your details below

We don't have date info available for this property, but if you fill in your details below, someone will be in touch to arrange a date soon

Please fill in the required fields below marked with *

This site is protected by reCAPTCHA and the Google Privacy Policy and Terms of Service apply.