Skip to main content

MyWinkworth

New Instruction

Picture No. 39
Picture No. 33
Picture No. 04
Picture No. 13
Picture No. 40
Picture No. 41
Picture No. 30
Picture No. 19
Picture No. 14
Picture No. 07
Picture No. 20
Picture No. 06
6/14

Westbourne Road, London, N7

3 bedroom flat/apartment in London

£808 per week (£3,500 per month) Fees may apply

  • Bedrooms 3
  • Bathrooms 1
  • Reception rooms 1
  • Furnished
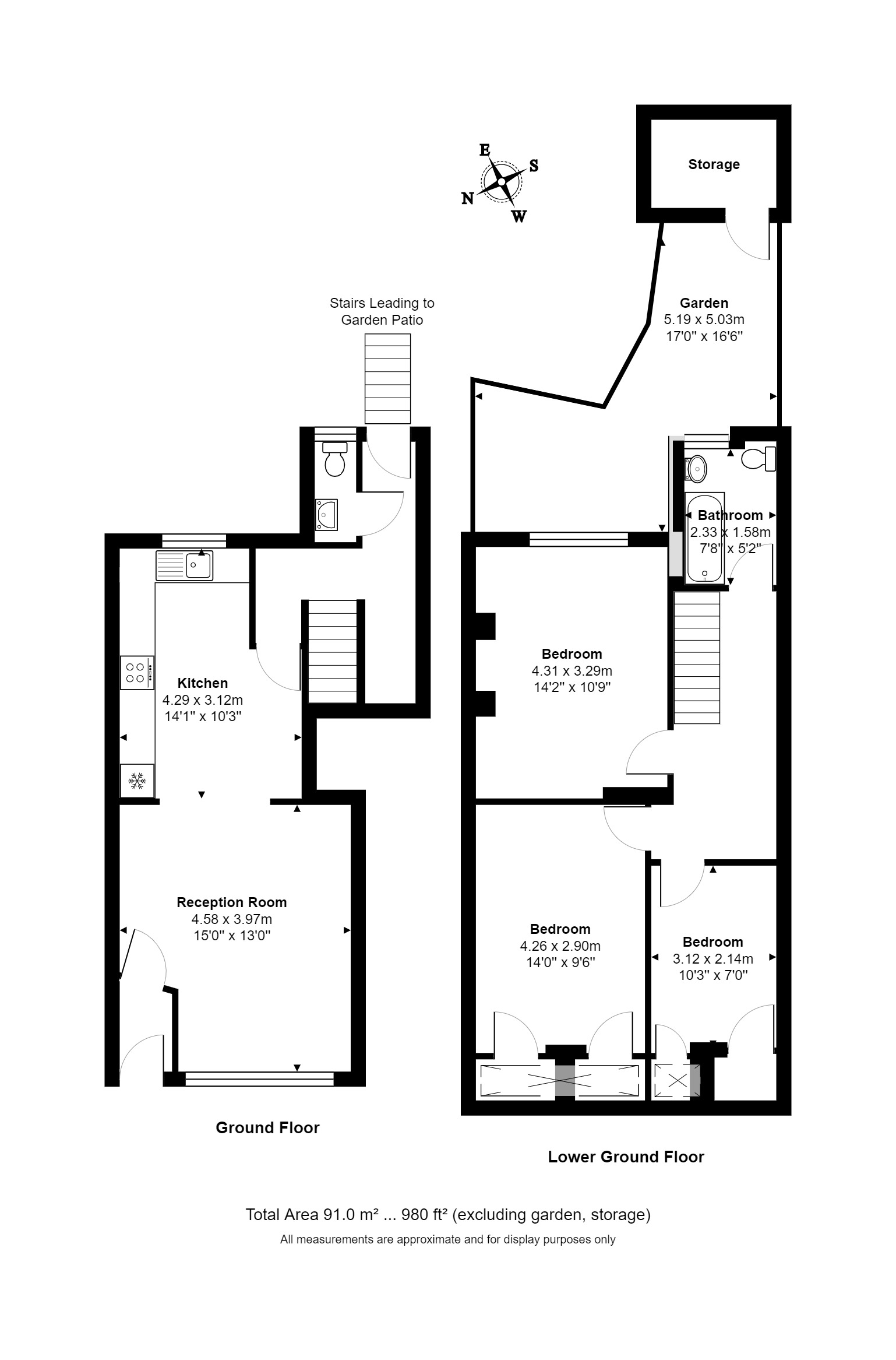
  • Dimensions 980 sq ft
    91 sq m
  • Floorplan

PICTURES AND VIDEOS

KEY FEATURES

  • EPC BAND - C
  • COUNCIL TAX BAND - E

KEY INFORMATION

  • Deposit: 5 Weeks rent
  • Council Tax Band: E

Description

Spanning 980 sqft across the ground and lower ground floors of this period building is this spacious three bedroom garden flat in Islington. Accommodation consists of a semi open plan reception room and kitchen on the ground floor, both are flooded with natural light and benefit from wonderful high ceilings and sash windows. As you move downstairs you will find a w/c on the landing as well as access to a private patio garden. On the lower level is the generous master bedroom with inbuilt storage, two further double bedrooms and a family bathroom.

The property is perfectly located on Westbourne Road and is perfectly set for the bars, restaurants and shops on Upper Street. The green spaces of St Mary Magdalene Garden and Highbury Fields are close by as are a fantastic selection of transport links. Highbury and Islington station provides the closest Underground and Overground links on the Victoria line whilst Caledonian road is serviced by the Piccadilly line. Drayton Park station is just moments away and provides a weekday service to Moorgate whilst various bus routes offer effortless links to Angel, the City and West End. Kings Cross is easily accessed as are international services from St Pancras.

Holding deposit - 1 weeks rent.

Marketed by

Winkworth Islington

Properties for rent in Islington

Arrange a Viewing

Fill in the form below to arrange your property viewing.

This site is protected by reCAPTCHA and the Google Privacy Policy and Terms of Service apply.
6/14
Picture No. 39
Picture No. 33
Picture No. 04
Picture No. 13
Picture No. 40
Picture No. 41
Picture No. 30
Picture No. 19
Picture No. 14
Picture No. 07
Picture No. 20
Picture No. 06

Meet the Team

Our knowledgeable, friendly team here at Winkworth Islington Estate Agents are on hand to help whether you're buying, selling or renting. While we favour the local approach, by working closely with our London and national network alongside dedicated Corporate Services, marketing and PR departments, we give our clients an unparalleled advantage, matching homes with buyers and tenants throughout London and the UK.

See all team members

Got a question about this property?

This site is protected by reCAPTCHA and the Google Privacy Policy and Terms of Service apply.

More Properties like this

Video Tour

Shepherdess Walk, Islington, London, N1

£1,385 per week (£6,000 per month)

Let Agreed

Canonbury Square, London, N1

£1,096 per week (£4,750 per month)

Let Agreed

Graham Street, London, N1

£837 per week (£3,625 per month)

Let Agreed

Southgate Road, De Beauvoir, N1

£790 per week (£3,423 per month)

Let Agreed

Penn Street, London, N1

£738 per week (£3,200 per month)

Caledonian Road, Islington, N1

£727 per week (£3,150 per month)

Online Valuations Aren’t Worth The Paper They’re Printed On.

When online valuations don’t give you the whole picture - try Winkworth’s expert service. Get a free property appraisal. Accurate valuations from our local property experts. No obligation to list with Winkworth. Choose a time convenient for you with our online booking system.

Fill in your details and someone will be in touch soon:

You have provisionally booked a valuation for . Please confirm your details below

We don't have date info available for this property, but if you fill in your details below, someone will be in touch to arrange a date soon

Please fill in the required fields below marked with *

This site is protected by reCAPTCHA and the Google Privacy Policy and Terms of Service apply.