Skip to main content

MyWinkworth

Picture No. 15
Picture No. 08
Picture No. 14
Picture No. 16
Picture No. 17
Picture No. 09
Picture No. 10
Picture No. 12
Picture No. 13
Picture No. 11
Picture No. 18
Picture No. 19
6/14

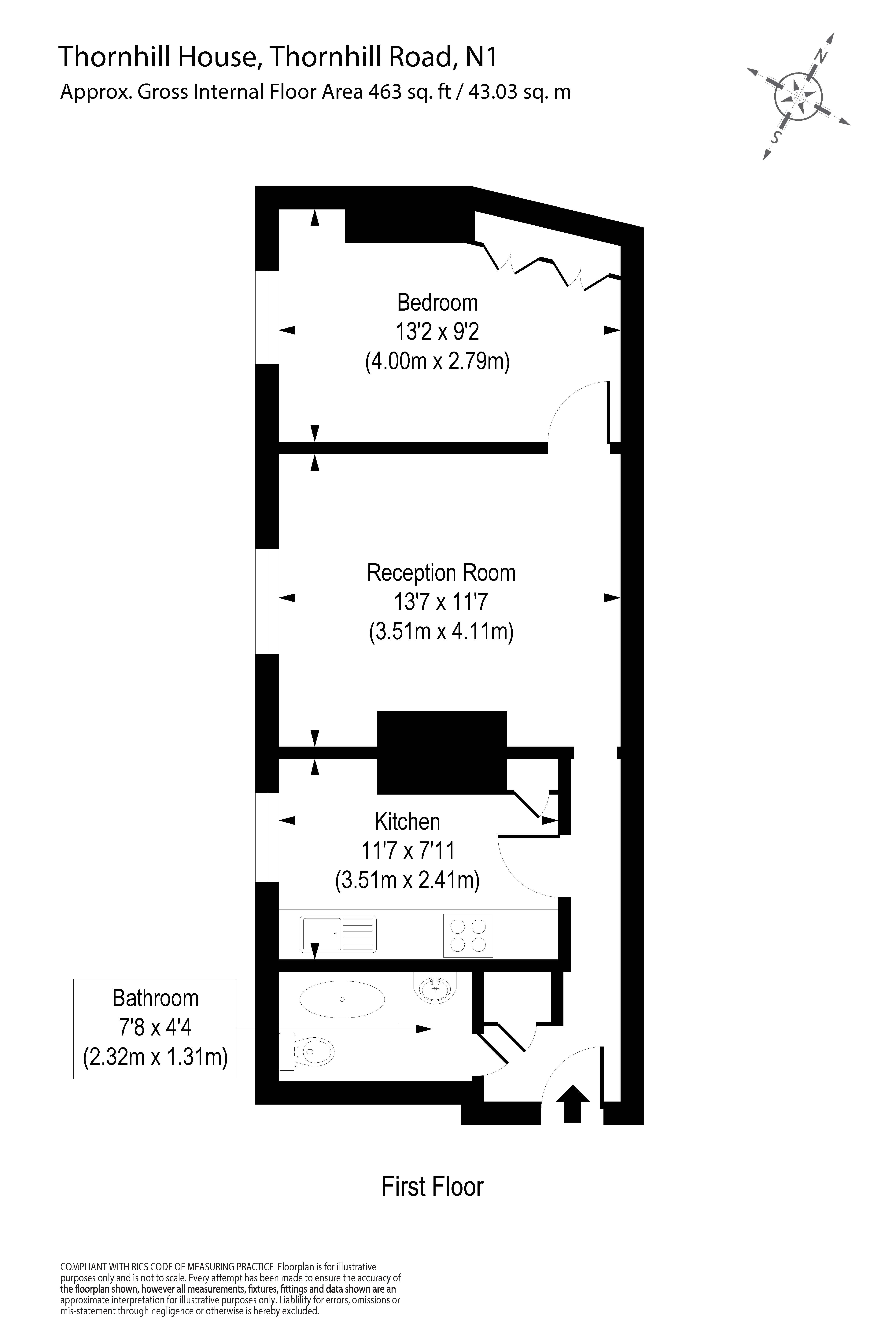
Thornhill House, Thornhill Road, London, N1

1 bedroom flat/apartment in Thornhill Road

£462 per week (£2,000 per month) Fees may apply

  • Bedrooms 1
  • Bathrooms 1
  • Reception rooms 1
  • Part-furnished
  • Dimensions 463 sq ft
    43 sq m
  • Floorplan

PICTURES AND VIDEOS

KEY FEATURES

  • EPC BAND - D
  • COUNCIL TAX BAND - C

KEY INFORMATION

  • Deposit: 5 Weeks rent

Description

This stunning one bedroom flat offers high ceilings, sleek and modern designs and stunning windows flooding the living space with natural light. The property is set on the first floor and comprises large reception room, chic kitchen, spacious double bedroom, bathroom and storage cupboard.

The property is enviably placed within the Barnsbury area, offering close access to the plethora of shops, boutiques, bars and restaurants of Upper Street. The nearest station is Highbury & Islington (Victoria Line and National Rail) and motorists benefit from easy access to the A1 and A40M road links to the North and the West.

Holding deposit - 1 weeks rent.

Marketed by

Winkworth Islington

Properties for rent in Islington

Arrange a Viewing

Fill in the form below to arrange your property viewing.

This site is protected by reCAPTCHA and the Google Privacy Policy and Terms of Service apply.
6/14
Picture No. 15
Picture No. 08
Picture No. 14
Picture No. 16
Picture No. 17
Picture No. 09
Picture No. 10
Picture No. 12
Picture No. 13
Picture No. 11
Picture No. 18
Picture No. 19

Meet the Team

Our knowledgeable, friendly team here at Winkworth Islington Estate Agents are on hand to help whether you're buying, selling or renting. While we favour the local approach, by working closely with our London and national network alongside dedicated Corporate Services, marketing and PR departments, we give our clients an unparalleled advantage, matching homes with buyers and tenants throughout London and the UK.

See all team members

Got a question about this property?

This site is protected by reCAPTCHA and the Google Privacy Policy and Terms of Service apply.

More Properties like this

Video Tour

Shepherdess Walk, Islington, London, N1

£1,327 per week (£5,750 per month)

New Instruction

Graham Street, London, N1

£865 per week (£3,750 per month)

Let Agreed

Westbourne Road, London, N7

£808 per week (£3,500 per month)

Let Agreed

Southgate Road, De Beauvoir, N1

£790 per week (£3,423 per month)

Let Agreed

Decorum Apartments, 3 Wenlock Road, London, N1

£750 per week (£3,250 per month)

Let Agreed

Melville Place, London, N1

£738 per week (£3,200 per month)

Online Valuations Aren’t Worth The Paper They’re Printed On.

When online valuations don’t give you the whole picture - try Winkworth’s expert service. Get a free property appraisal. Accurate valuations from our local property experts. No obligation to list with Winkworth. Choose a time convenient for you with our online booking system.

Fill in your details and someone will be in touch soon:

You have provisionally booked a valuation for . Please confirm your details below

We don't have date info available for this property, but if you fill in your details below, someone will be in touch to arrange a date soon

Please fill in the required fields below marked with *

This site is protected by reCAPTCHA and the Google Privacy Policy and Terms of Service apply.