The Marlowes, St John's Wood, London, NW8
4 bedroom house in St John's Wood
£2,077 per week
- 4
- 2
- 2
- Unfurnished
-
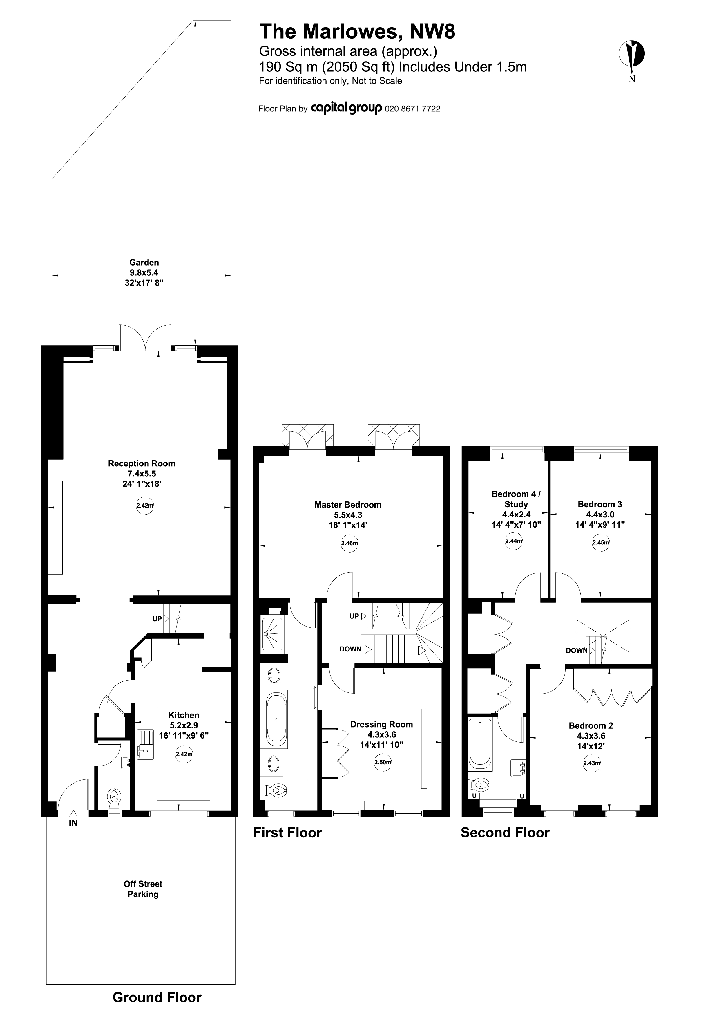
2050 sq ft
190 sq m -
PICTURES AND VIDEOS








KEY FEATURES
- Principal Bedroom with En Suite Bathroom and Dressing Room
- Three Further Bedrooms
- Family Bathroom
- Guest WC
- Double Reception Room
- Kitchen
- Off Street Parking for 2 Cars
- Rear Garden
KEY INFORMATION
- Deposit: 6 Weeks rent
- Council Tax Band: H
Description
garden which is accessed from a double reception room. The entire first floor is occupied by a principle suite incorporating a lavish bathroom and substantial dressing room
Marketed by
Winkworth St John's Wood
Properties for rent in St John's WoodArrange a Viewing
Fill in the form below to arrange your property viewing.
Meet the Team
St John's Wood is one of the most desirable neighborhoods in London, with leafy streets and a choice of homes from period villas to modern apartments. Plus there are great schools and easy links to central London, the City and Canary Wharf as well as Kings Cross St Pancras for the Eurostar.
See all team members