Skip to main content

MyWinkworth

Reception Room
Garden
Kitchen
Reception
Bedroom 1
Bedroom 1
Bathroom
Bedroom 2
Bedroom 3
Reception
Garden
Exterior
6/14

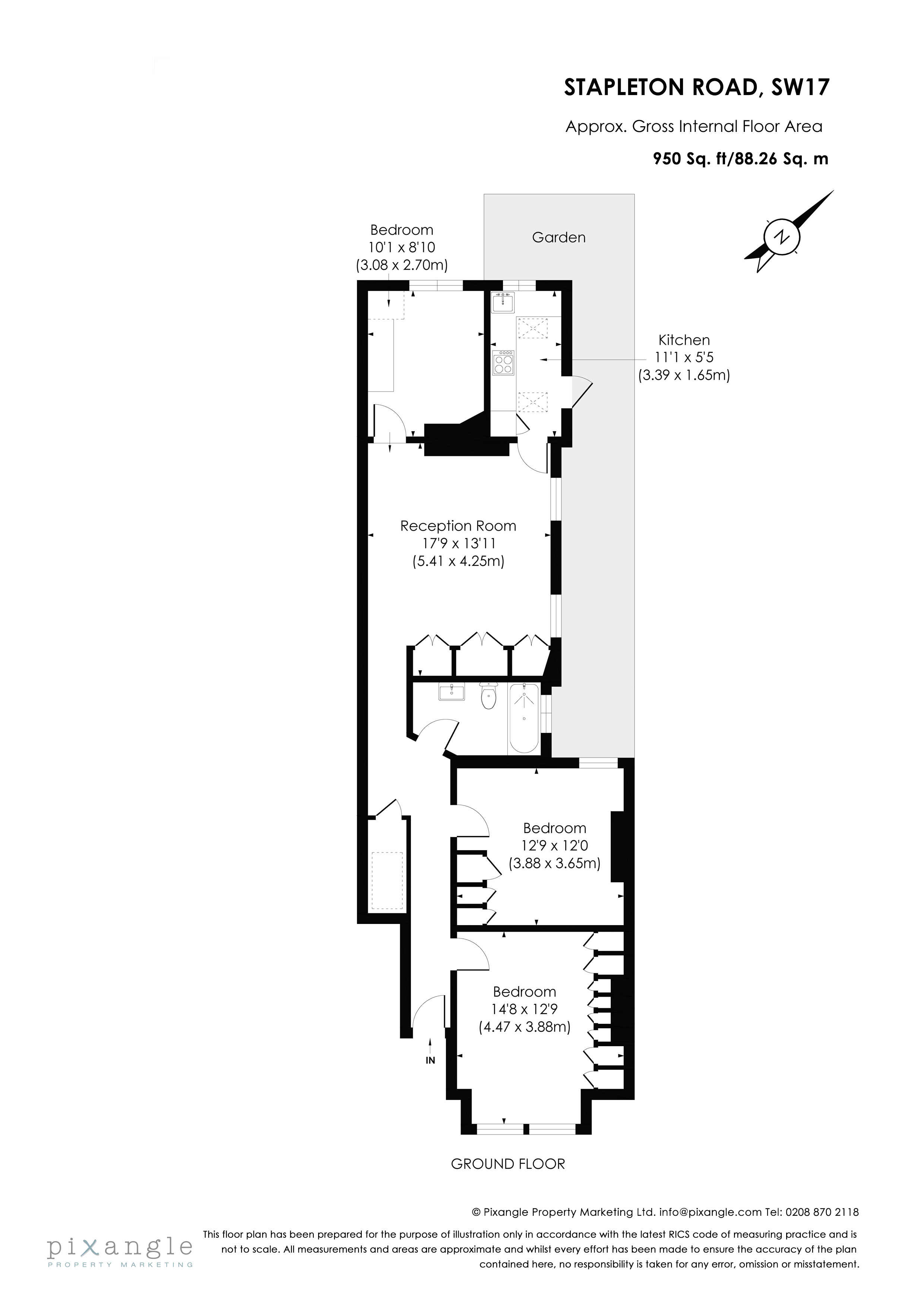
Stapleton Road, Tooting Bec, London, SW17

3 bedroom flat/apartment in Tooting Bec

£692 per week (£3,000 per month) Fees may apply

  • Bedrooms 3
  • Bathrooms 1
  • Reception rooms 1
  • Part-furnished
  • Floorplan

PICTURES AND VIDEOS

KEY FEATURES

  • Three Bedrooms Apartment
  • Large Reception Room
  • Private Rear Garden
  • Council Tax: Wandsworth Local Authority - Band D
  • Property Deposit: 5 Weeks Worth of Rent
  • Holding Deposit: 1 Weeks Worth of Rent

KEY INFORMATION

  • Deposit: 5 Weeks rent

Description

An exceptional three double bedroom ground floor apartment that has been beautifully finished to the highest standards combining both period and contemporary features to create a wonderful property.

This elegant property comprises a beautiful spacious reception room providing space for living and dining, a separate modern kitchen, a well sized master bedroom benefiting of ample storage space, further double bedroom and a single bedroom that all share a modern bathroom suite. To the rear of the property is a private easy to maintain garden accessible from the kitchen.

Stapleton Road is ideally located with excellent transport links including Tooting Bec Underground (0.4 miles) station. Balham and Wandsworth Common stations are easily accessible as are the extensive green spaces of Tooting Bec Common and many local amenities, including Tooting Market, Ritherdon Road and Hildreth Street.

Marketed by

Winkworth Tooting

Properties for rent in Tooting

Arrange a Viewing

Fill in the form below to arrange your property viewing.

This site is protected by reCAPTCHA and the Google Privacy Policy and Terms of Service apply.
6/14
Reception Room
Garden
Kitchen
Reception
Bedroom 1
Bedroom 1
Bathroom
Bedroom 2
Bedroom 3
Reception
Garden
Exterior

Meet the Team

Our team at Winkworth Tooting Estate Agents are here to support and advise our customers when they need it most. We understand that buying, selling, letting or renting can be daunting and often emotionally meaningful. We are there, when it matters, to make the journey as stress-free as possible.

See all team members

Got a question about this property?

This site is protected by reCAPTCHA and the Google Privacy Policy and Terms of Service apply.

More Properties like this

Cannon Hill Lane, London, SW20

£808 per week (£3,500 per month)

Let Agreed

Coverton Road, London, SW17

£681 per week (£2,950 per month)

Let Agreed

Foulser Road, London, SW17

£669 per week (£2,900 per month)

Credenhill Street, London, SW16

£646 per week (£2,800 per month)

Let Agreed

Cannon Hill Lane, London, SW20

£635 per week (£2,750 per month)

Novum Court, 141-145 Cannon Hill Lane, London, SW20

£577 per week (£2,500 per month)

Online Valuations Aren’t Worth The Paper They’re Printed On.

When online valuations don’t give you the whole picture - try Winkworth’s expert service. Get a free property appraisal. Accurate valuations from our local property experts. No obligation to list with Winkworth. Choose a time convenient for you with our online booking system.

Fill in your details and someone will be in touch soon:

You have provisionally booked a valuation for . Please confirm your details below

We don't have date info available for this property, but if you fill in your details below, someone will be in touch to arrange a date soon

Please fill in the required fields below marked with *

This site is protected by reCAPTCHA and the Google Privacy Policy and Terms of Service apply.