Skip to main content

MyWinkworth

Picture No. 17
Picture No. 13
Picture No. 02
Picture No. 08
Picture No. 07
Picture No. 15
Picture No. 03
Picture No. 04
Picture No. 05
Picture No. 06
Picture No. 10
Picture No. 12
Picture No. 14
Picture No. 16
Picture No. 01
6/14

Southview Drive, Westcliff-on-Sea, Essex, SS0

5 bedroom house in Westcliff-on-Sea

£415 per week (£1,800 per month) Fees may apply

  • Bedrooms 5
  • Bathrooms 2
  • Reception rooms 2
  • Unfurnished
  • Floorplan

PICTURES AND VIDEOS

KEY FEATURES

  • Five Bedrooms
  • Accommodation Over Three Floors
  • Open Plan Lounge/Dining Room
  • Separate Conservatory Leading to Garden
  • Large Modern Kitchen Overlooking Garden
  • Fully Tiled Four Piece Bathroom
  • Low-Maintenance Garden w/ Patio And Faux Grass
  • Excellent Location Close to Grammar Schools & Southend Hospital

KEY INFORMATION

  • Deposit: 5 Weeks rent
  • Council Tax Band: C

Description

**Email to Enquire Please**

Beautiful five-bedroom family home ideally located in a popular Westcliff-on-Sea residential area, close to Chalkwell Park, local schools, and excellent transport links. The ground floor features an expansive open-plan lounge and diner, a large modern kitchen, and a bright conservatory leading to a low-maintenance garden with a paved patio. Upstairs, the first floor hosts three bedrooms and a contemporary four-piece bathroom, while the second floor provides two additional bedrooms. Although there is no private driveway, the property benefits from ample on-street parking and easy access to nearby supermarkets and Southend University Hospital.

**Email to Enquire Please**

Winkworth is pleased to offer this beautiful five-bedroom family home, perfectly situated in a popular residential area of Westcliff-on-Sea.

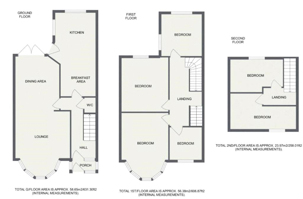
The ground floor offers an abundance of living space, featuring a generous open-plan lounge and diner alongside a large, modern kitchen. A separate conservatory provides a bright additional reception area with views over the garden, complemented by a convenient guest cloakroom.

The first floor comprises of two well-proportioned double bedrooms & a single bedroom, and the contemporary family bathroom, which boasts both a bath and a separate large walk-in shower. The second floor provides two further bedrooms, making this an ideal residence for a family. To the rear, the low-maintenance garden is designed for year-round use with artificial lawn and a paved patio area. While the property does not have a private driveway, there is ample on-street parking available directly to the front.

This home is perfectly located for easy access to local shops such as Aldi supermarket, the beautiful green spaces of Chalkwell Park, Southend University Hospital, and excellent transport links with the A13 London Road bus routes, C2C Chalkwell & Westcliff trainlines. Local primary and secondary schools are also within easy reach making mornings easier for families.

Approx. Room Sizes:
Lounge: 14' 4'' x 11' 9''
Dining Room: 12' 9'' x 9' 5''
Kitchen: 18' 7'' x 8' 3''
Bedroom One: 15' 5'' (into Bay) x 11' 5''
Bedroom Two: 12' 8'' x 11' 6''
Bedroom Three: 7' 2'' x 6' 4''
Bathroom: 11' 7'' x 8' 4''
Bedroom Four: 17' 4'' x 6' 8'' (Eaves roof)
Bedroom Five: 11' 4'' x 9' 8''

Agents Notes:-

Council Tax Band – C - Southend Borough Council

Floor Area - 1528 ft 2 / 142 m 2

Electricity Supply – Mains standard

Gas Supply – Mains standard

Water Supply – Mains standard

Sewerage – Mains standard

Heating – Gas central heating

Broadband
• Standard 13 Mbps
• Superfast 77 Mbps
• Ultrafast 1800 Mbps

Satellite / Fibre Availability
• BT Yes
• Sky Yes
• Virgin Yes

Marketed by

Winkworth Leigh-on-Sea

Properties for rent in Leigh-on-Sea

Arrange a Viewing

Fill in the form below to arrange your property viewing.

This site is protected by reCAPTCHA and the Google Privacy Policy and Terms of Service apply.
6/14
Picture No. 17
Picture No. 13
Picture No. 02
Picture No. 08
Picture No. 07
Picture No. 15
Picture No. 03
Picture No. 04
Picture No. 05
Picture No. 06
Picture No. 10
Picture No. 12
Picture No. 14
Picture No. 16
Picture No. 01

Meet the Team

Our team at Winkworth Leigh-on-Sea Estate Agents are here to support and advise our customers when they need it most. We understand that buying, selling, letting or renting can be daunting and often emotionally meaningful. We are there, when it matters, to make the journey as stress-free as possible.

See all team members

Got a question about this property?

This site is protected by reCAPTCHA and the Google Privacy Policy and Terms of Service apply.

More Properties like this

Let Agreed

Vernon Road, Leigh-on-Sea, Essex, SS9

£808 per week (£3,500 per month)

Let Agreed

Chalkwell Avenue, Westcliff-on-Sea, Essex, SS0

£691 per week (£2,995 per month)

Let Agreed

Olive Avenue, Leigh-on-Sea, Essex, SS9

£577 per week (£2,500 per month)

Let Agreed

Galton Road, Westcliff-on-Sea, Essex, SS0

£531 per week (£2,300 per month)

Let Agreed

Woodcote Road, Leigh-on-Sea, SS9

£531 per week (£2,300 per month)

Let Agreed

Leigh Hill, Leigh-on-Sea, SS9

£519 per week (£2,250 per month)

Online Valuations Aren’t Worth The Paper They’re Printed On.

When online valuations don’t give you the whole picture - try Winkworth’s expert service. Get a free property appraisal. Accurate valuations from our local property experts. No obligation to list with Winkworth. Choose a time convenient for you with our online booking system.

Fill in your details and someone will be in touch soon:

You have provisionally booked a valuation for . Please confirm your details below

We don't have date info available for this property, but if you fill in your details below, someone will be in touch to arrange a date soon

Please fill in the required fields below marked with *

This site is protected by reCAPTCHA and the Google Privacy Policy and Terms of Service apply.