Skip to main content

MyWinkworth

Let

Reception Detail
In/Out Living
Open-Plan Living
Exterior Front
Principal Bedroom
Contemporary Garden
Bedroom/Reception
Bedroom/Gym
Bedroom Two
Detail Shot
Kitchen
Open-Plan Living
Bedroom Three
En-Suite Shower Room
Garden
Upper Landing
Family Bathroom
Detail Shot/Bedroom
Bedroom/Reception
Detail
6/14

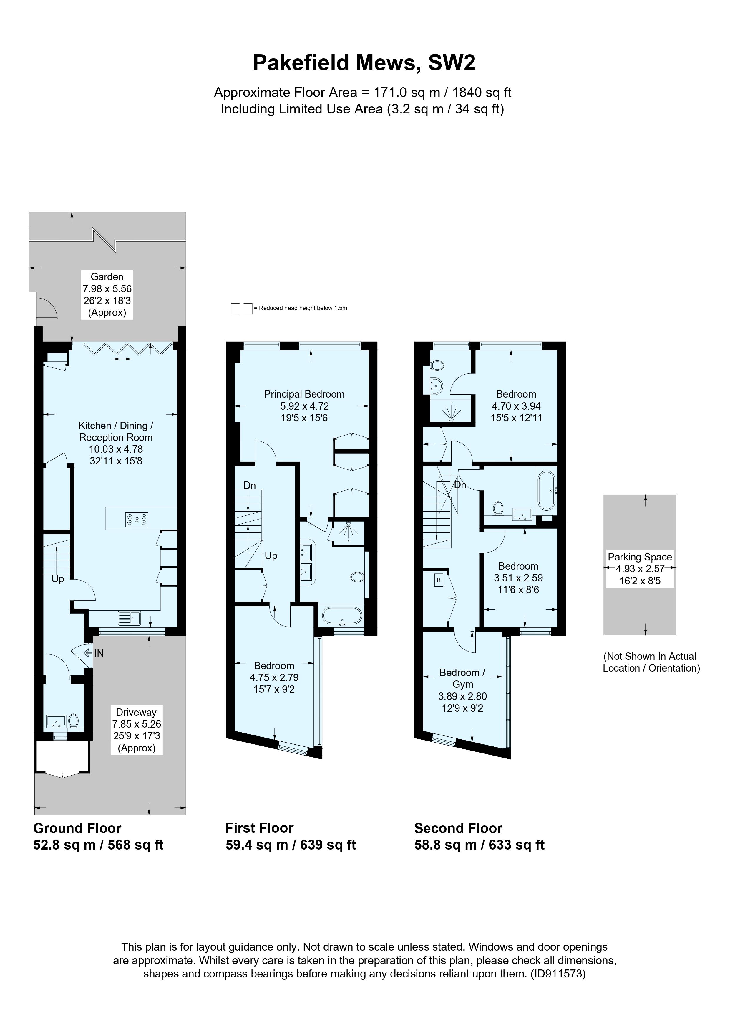
Pakefield Mews, London, SW2

5 bedroom house in London

£850 per week (£3,683 per month) Fees may apply

  • Bedrooms 5
  • Bathrooms 3
  • Reception rooms 2
  • Unfurnished
  • Dimensions 1840 sq ft
    170 sq m
  • Floorplan

PICTURES AND VIDEOS

KEY FEATURES

  • Town House
  • Large Open Reception, Kitchen and Dining Room
  • Five Bedrooms
  • En-Suite Room
  • Smart Modern Family Bathroom
  • Guest WC/Cloakroom
  • In/out Living Space
  • Contemporary Gardens
  • Off Street Parking Space
  • Unfurnished
  • Available Now
  • Lambeth Council Tax Band: F
  • No HMO Licence

KEY INFORMATION

  • Council Tax Band: F
  • Local Authority: Lambeth

Description

Located in sought-after Streatham Hill in the gateway to the Leigham Hall conservation neighbourhood and close to Clapham, Balham and Brixton. This attractive, bright and airy Town house is exceptionally well laid-out, offering in excess of 1,800 sq. ft.

We are delighted to offer to let this most attractive modern town house with off-street parking in a sought-after location by Streatham Hill. The entrance hall opens to the beautifully co-ordinated living space bosting underfloor heating. The open plan kitchen-reception room has parquet wooden floors throughout and a large double-glazed bi-folding door to the rear which seamlessly interconnects with the contemporary-style rear garden, which is perfect for in/out living and summer entertaining. This stunning, bespoke kitchen is complete with a range of high quality fitted appliances. Practical features on this level also include a guest WC and a under stairs storage cupboard.

Upstairs on the first floor there are two double bedrooms (one principal room with an en-suite bath and dressing area.) Three further double bedrooms and a smart modern family bathroom comprise the second floor as well as an additional storge cupboard.

Further benefiting from being extremely energy efficient aided by solar panels. The garden extends approximately 26ft. The house is located on a private mews just off Wavertree Road which is accessed via an automatic barrier and is very popular, especially with families because of the easy access to the excellent local schools. Commuting into central London from Streatham Hill station or Brixton Tube is easy and there is great local shopping and restaurant/bars/cafes just at the bottom of the road.

Offered unfurnished this property is available to families, a couple or two professional sharers ONLY - Non HMO.

Location

Streatham Hill
6/14
Reception Detail
In/Out Living
Open-Plan Living
Exterior Front
Principal Bedroom
Contemporary Garden
Bedroom/Reception
Bedroom/Gym
Bedroom Two
Detail Shot
Kitchen
Open-Plan Living
Bedroom Three
En-Suite Shower Room
Garden
Upper Landing
Family Bathroom
Detail Shot/Bedroom
Bedroom/Reception
Detail

Meet the Team

Our team at Winkworth Streatham Estate Agents are here to support and advise our customers when they need it most. We understand that buying, selling, letting or renting can be daunting and often emotionally meaningful. We are there, when it matters, to make the journey as stress-free as possible.

See all team members

Got a question about this property?

This site is protected by reCAPTCHA and the Google Privacy Policy and Terms of Service apply.

More Properties like this

Let Agreed

Beechdale Road, London, SW2

£1,269 per week (£5,500 per month)

Let Agreed

Beechdale Road, London, SW2

£1,038 per week (£4,500 per month)

Let Agreed

Hydethorpe Road, London, SW12

£1,015 per week (£4,400 per month)

Let Agreed

Pakefield Mews, London, SW2

£923 per week (£4,000 per month)

Greyhound Lane, London, SW16

£877 per week (£3,800 per month)

Let Agreed

Pakefield Mews, London, SW2

£877 per week (£3,800 per month)

Online Valuations Aren’t Worth The Paper They’re Printed On.

When online valuations don’t give you the whole picture - try Winkworth’s expert service. Get a free property appraisal. Accurate valuations from our local property experts. No obligation to list with Winkworth. Choose a time convenient for you with our online booking system.

Fill in your details and someone will be in touch soon:

You have provisionally booked a valuation for . Please confirm your details below

We don't have date info available for this property, but if you fill in your details below, someone will be in touch to arrange a date soon

Please fill in the required fields below marked with *

This site is protected by reCAPTCHA and the Google Privacy Policy and Terms of Service apply.