Skip to main content

MyWinkworth

New Instruction

Picture No. 07
Picture No. 09
Picture No. 03
Picture No. 19
Picture No. 02
Picture No. 05
Picture No. 04
Picture No. 06
Picture No. 08
Picture No. 18
Picture No. 11
Picture No. 12
Picture No. 10
6/14

Lubbock Close, Norwich, Norfolk, NR2

1 bedroom house in Norwich

£121 per week (£525 per month) Fees may apply

  • Bedrooms 1
  • Bathrooms 2
  • Reception rooms 1
  • Furnished
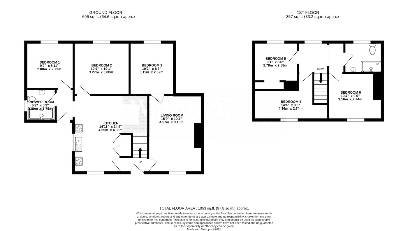
  • Dimensions 1053 sq ft
    97 sq m
  • Floorplan

PICTURES AND VIDEOS

KEY FEATURES

  • Bills included!
  • Fully refurbished six bedroom house
  • Ideal for professional sharers or students
  • Brand new, spacious fitted kitchen
  • Two large fridge freezers and new appliances
  • Comfortable communal living room with TV
  • Two brand new modern shower rooms
  • Generous communal space inside and out
  • Well located for amenities and transport links
  • High quality shared accommodation

KEY INFORMATION

  • Deposit: Fixed £484.00

Description

This fully refurbished six bedroom house offers high quality, modern accommodation ideal for professional sharers or students, with individual rooms available to rent. Finished to an excellent standard throughout, the property provides generous communal space, contemporary interiors and well balanced facilities designed for comfortable shared living.

Tenants benefit from a brand new, spacious shared kitchen, fitted with modern units offering ample storage and a full range of new appliances. The kitchen includes two large fridge freezers, making it especially practical for shared use, and provides plenty of space for cooking without feeling crowded.

The house also features a stylish communal living room, furnished with comfortable sofas and a TV, creating a welcoming space to relax or socialise with housemates. Both internal and external communal areas are available, offering a good balance between shared living and private space.

The available room is fully furnished, providing comfortable accommodation with essential furnishings in place. The property benefits from two brand new modern shower rooms, finished to a high standard and designed to support the needs of a busy household.

Bills are included, offering a convenient and hassle free living arrangement. Well located and offering excellent communal facilities, this is an ideal opportunity to secure a high quality room in a well presented shared home. Early viewing is highly recommended.

Agents Note: Some of the photos used have been enhanced using AI. Specifically the addition of bedding.

Deposit – £484
Holding Deposit – £121
Council Tax Band – B
Local Authority - Norwich City Council
EPC - C

We have been advised the property is connected to mains water, gas, electricity and drainage.

Winkworth wishes to inform prospective buyers and tenants that these particulars are a guide and act as information only. All our details are given in good faith and believed to be correct at the time of printing but they don’t form part of an offer or contract. No Winkworth employee has authority to make or give any representation or warranty in relation to this property. All fixtures and fittings, whether fitted or not are deemed removable by the vendor unless stated otherwise and room sizes are measured between internal wall surfaces, including furnishings. The services, systems and appliances have not been tested, and no guarantee as to their operability or efficiency can be given.

Marketed by

Winkworth Eaton

Properties for rent in Eaton

Arrange a Viewing

Fill in the form below to arrange your property viewing.

This site is protected by reCAPTCHA and the Google Privacy Policy and Terms of Service apply.
6/14
Picture No. 07
Picture No. 09
Picture No. 03
Picture No. 19
Picture No. 02
Picture No. 05
Picture No. 04
Picture No. 06
Picture No. 08
Picture No. 18
Picture No. 11
Picture No. 12
Picture No. 10

Meet the Team

Our knowledgeable, friendly team are on hand to help whether you're buying, selling or renting. While we favour the local approach, by working closely with our London and national network alongside dedicated Corporate Services, marketing and PR departments, we give our clients an unparalleled advantage, matching homes with buyers and tenants throughout London and the UK.

See all team members

Got a question about this property?

This site is protected by reCAPTCHA and the Google Privacy Policy and Terms of Service apply.

More Properties like this

Friends Road, Norwich, Norfolk, NR5

£865 per week (£3,750 per month)

Friends Road, Norwich, Norfolk, NR5

£842 per week (£3,650 per month)

Peterkin Road, Norwich, Norfolk, NR4

£623 per week (£2,700 per month)

Fountains Road, Norwich, Norfolk, NR4

£600 per week (£2,600 per month)

Barnesdale Road, Norwich, Norfolk, NR4

£600 per week (£2,600 per month)

Peckover Road, Norwich, Norfolk, NR4

£577 per week (£2,500 per month)

Online Valuations Aren’t Worth The Paper They’re Printed On.

When online valuations don’t give you the whole picture - try Winkworth’s expert service. Get a free property appraisal. Accurate valuations from our local property experts. No obligation to list with Winkworth. Choose a time convenient for you with our online booking system.

Fill in your details and someone will be in touch soon:

You have provisionally booked a valuation for . Please confirm your details below

We don't have date info available for this property, but if you fill in your details below, someone will be in touch to arrange a date soon

Please fill in the required fields below marked with *

This site is protected by reCAPTCHA and the Google Privacy Policy and Terms of Service apply.