New Instruction
Ladbroke Square, London, W11
1 bedroom flat/apartment in London
£475 per week
- 1
- 1
- Furnished
-
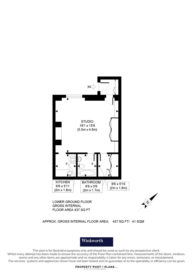
437 sq ft
40 sq m -
PICTURES AND VIDEOS








KEY INFORMATION
- Deposit: Fixed £2,375.00
- Council Tax Band: H
- Local Authority: Royal Borough Of Kensington & Chelsea
Description
. The property comprises: Separate entrance, spacious living room with wood floors, separate fitted kitchen and fantastic walk in storage area.
The flat further benefits to apply for the highly sought after Ladbroke Square communal gardens (charges may apply). The property is available on a furnished basis and viewings are highly recommended.
Utilities:
Electricity – Mains
Water – Mains
Sewerage – Mains
Heating – Gas
Broadband https://checker.ofcom.org.uk/en-gb/broadband-coverage
Mobile Coverage https://checker.ofcom.org.uk/en-gb/mobile-coverage
Location
Marketed by
Winkworth Notting Hill
Properties for rent in Notting HillArrange a Viewing
Fill in the form below to arrange your property viewing.
Meet the Team
The Winkworth Notting Hill office has had an excellent reputation built on over 30 years’ experience, making them one of the area's longest standing servants. They are a hard-working, diligent and eager to please bunch, who will at all times seek to secure the best deal for their client, whilst hoping to always be a pleasure to work with.
See all team members