New Instruction
Endymion Road, London, N4
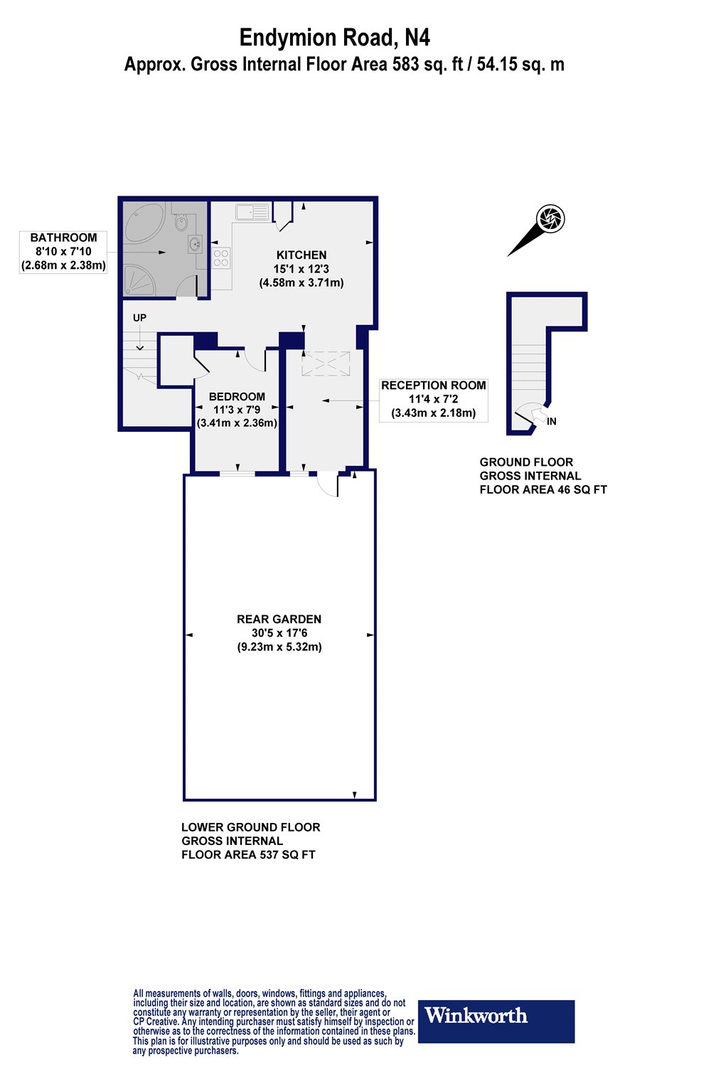
1 bedroom flat/apartment
£462 per week
- 1
- 1
- 1
- Unfurnished
PICTURES AND VIDEOS
KEY FEATURES
- 1 Bedroom
- Basement
- Victorian Conversion
- 30 Ft Rear Garden
- Reception Room / Kitchen Area
- Modern Bathroom
- Period Features
- Unfurnished
- Council Tax Band B
- EPC - C Rating
KEY INFORMATION
- Deposit: 1 Months rent
Description
Set on the ground floor of this Handsome Victorian building is this spacious one bedroom apartment finished to an extremely high standard throughout.
An inviting hall takes you to an expansive open plan kitchen / reception room with hard wood floors with french doors leading to a stunning private 30 Ft. rear garden. There is also a great sized bedroom with access to a huge walking wardrobe / storage cupboard, all serviced by an oversized bathroom which has a bath and separate shower cubicle. The apartment benefits from its unique position on the road allowing undisturbed views to the front of Finsbury Park
Endymion Road is set in the popular Finsbury Park area known for its village atmosphere and fine tree lined roads.
The property is located within walking distance to a number of local restaurant's and coffee shops as well as Sainsbury's superstore.
For the outdoor enthusiast there are a number of sporting options nearby with Finsbury Park and Clissold Park offering wonderful spaces for recreation.
Transport links are amongst some of the best in London with the Finsbury Park hub (Victoria and Piccadilly lines) and over ground train and Manor House Underground Station.(Piccadilly Line) substantial bus network offering speedy access to Upper Street, the City, the West End, and international rail services at Kings Cross St Pancras.
Please contact the lettings team at Winkworth Harringay office to arrange an appointment to view 020 8800 5151- [email protected]
Winkworth.co.uk
Your local independently owned property agency with a network of London offices.
Est 1835
Marketed by
Winkworth Harringay
Properties for rent in HarringayArrange a Viewing
Fill in the form below to arrange your property viewing.
Meet the Team
At Winkworth Harringay Estate Agents, we have a comprehensive team of knowledgeable and personable property experts who are excited about the local area. So whether you're buying, selling, renting or letting or simply need some advice, pop into our office on Green Lanes for the experience and the local knowledge you need.
See all team members