Skip to main content

MyWinkworth

New Instruction

Picture No. 04
Picture No. 11
Picture No. 10
Picture No. 08
Picture No. 02
Picture No. 05
Picture No. 06
Picture No. 01
Picture No. 07
Picture No. 09
Picture No. 03
Picture No. 12
6/14

Delorme Street, London, W6

2 bedroom flat/apartment in London

£542 per week (£2,350 per month) Fees may apply

  • Bedrooms 2
  • Bathrooms 1
  • Reception rooms 1
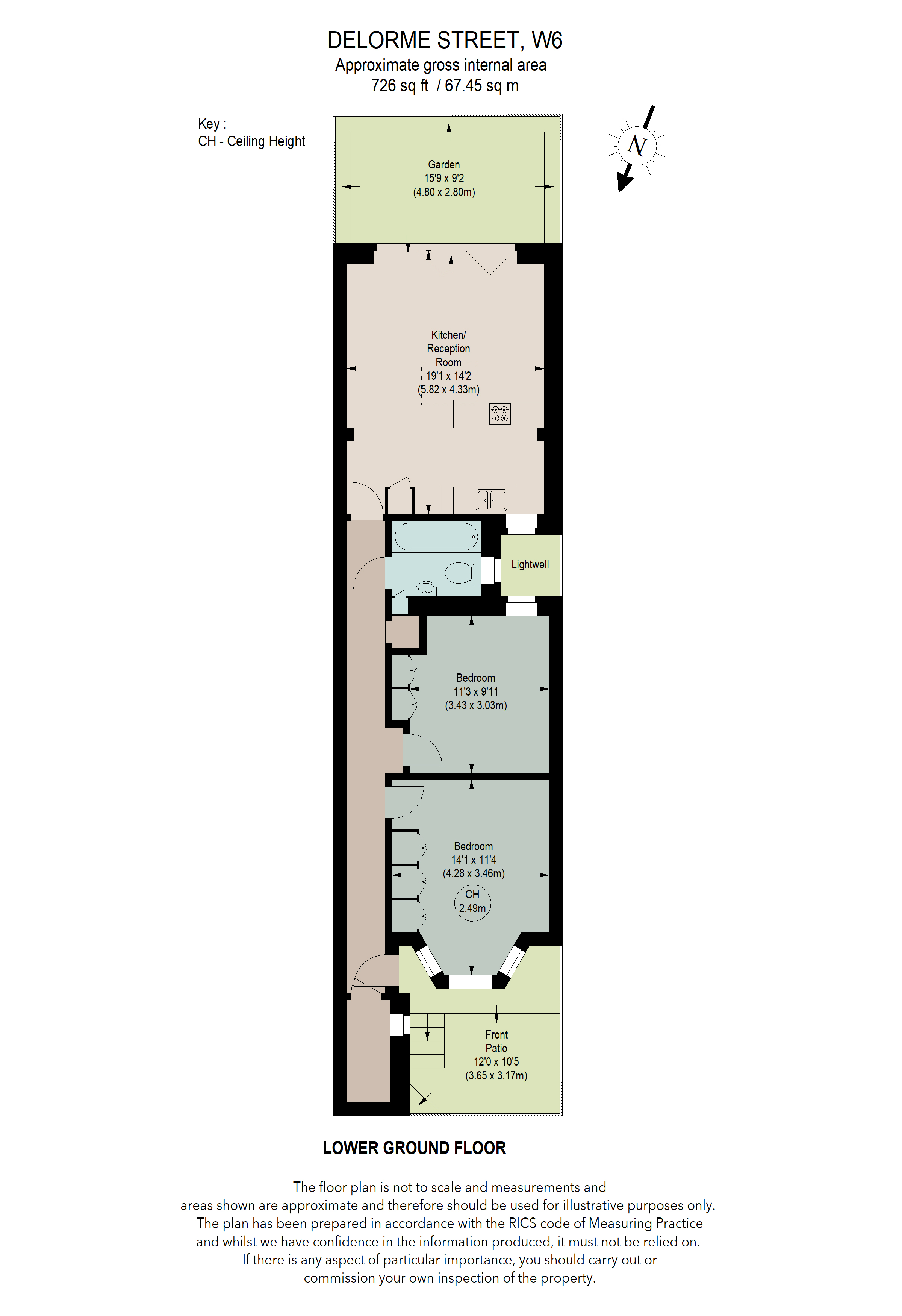
  • Dimensions 726 sq ft
    67 sq m
  • Floorplan

PICTURES AND VIDEOS

KEY INFORMATION

  • Deposit: 5 Weeks rent

Description

Nestled on a charming residential street in the heart of Hammersmith, this beautifully designed two-bedroom lower-ground-floor flat offers a perfect blend of contemporary living and urban convenience.


Spanning approximately 726 sq ft (67.45 sq m), the property boasts a bright and spacious layout, complete with a private front patio and rear garden.
The flat features a generously proportioned open-plan kitchen and reception room, providing a modern fitted kitchen, ample dining and entertaining space, and direct access to the private garden. Natural light floods the room through skylights and full-height glass doors, creating a bright and inviting atmosphere. The master bedroom is a tranquil retreat with generous storage and elegant proportions, while the second bedroom offers flexibility as a guest room, home office, or nursery. The bedrooms are served by a contemporary family bathroom.
Conveniently located close to the amenities of Hammersmith, the property benefits from excellent transport links via Hammersmith Underground Station (District, Piccadilly, Hammersmith & City, and Circle lines). The area also offers an array of shops, cafes, and restaurants, along with easy access to the River Thames.

Marketed by

Winkworth Fulham & Parsons Green

Properties for rent in Fulham & Parsons Green

Arrange a Viewing

Fill in the form below to arrange your property viewing.

This site is protected by reCAPTCHA and the Google Privacy Policy and Terms of Service apply.
6/14
Picture No. 04
Picture No. 11
Picture No. 10
Picture No. 08
Picture No. 02
Picture No. 05
Picture No. 06
Picture No. 01
Picture No. 07
Picture No. 09
Picture No. 03
Picture No. 12

Meet the Team

Our knowledgeable, friendly team are on hand to help whether you're buying, selling or renting. While we favour the local approach, by working closely with our London and national network alongside dedicated Corporate Services, marketing and PR departments, we give our clients an unparalleled advantage, matching homes with buyers and tenants throughout London and the UK. Please come and talk to us about your property requirements, and get to know the team from the Winkworth Estate Agents in Fulham.

See all team members

Got a question about this property?

This site is protected by reCAPTCHA and the Google Privacy Policy and Terms of Service apply.

More Properties like this

Wandsworth Bridge Road, London, SW6

£865 per week (£3,750 per month)

Brompton Park Crescent, London, SW6

£715 per week (£3,098 per month)

Under Offer

Parsons Green, London, SW6

£681 per week (£2,950 per month)

Under Offer

Crondace Road, London, SW6

£635 per week (£2,750 per month)

Under Offer

Perrymead Street, London, SW6

£612 per week (£2,650 per month)

New Instruction

Peterborough Road, London, SW6

£612 per week (£2,650 per month)

Online Valuations Aren’t Worth The Paper They’re Printed On.

When online valuations don’t give you the whole picture - try Winkworth’s expert service. Get a free property appraisal. Accurate valuations from our local property experts. No obligation to list with Winkworth. Choose a time convenient for you with our online booking system.

Fill in your details and someone will be in touch soon:

You have provisionally booked a valuation for . Please confirm your details below

We don't have date info available for this property, but if you fill in your details below, someone will be in touch to arrange a date soon

Please fill in the required fields below marked with *

This site is protected by reCAPTCHA and the Google Privacy Policy and Terms of Service apply.