Skip to main content

MyWinkworth

New Instruction

Picture No. 05
Picture No. 19
Picture No. 01
Picture No. 14
Picture No. 17
Picture No. 04
Picture No. 07
Picture No. 03
Picture No. 09
6/14

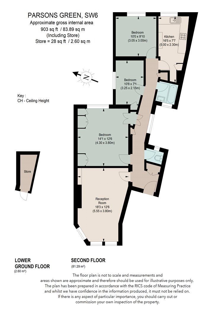
Parsons Green, London, SW6

3 bedroom flat/apartment in London

£681 per week (£2,950 per month) Fees may apply

  • Bedrooms 3
  • Bathrooms 1
  • Reception rooms 1
  • Furnished
  • Dimensions 903 sq ft
    83 sq m
  • Floorplan

PICTURES AND VIDEOS

KEY INFORMATION

  • Deposit: 5 Weeks rent

Description

A three bedroom, top floor flat, situated in a prime location, overlooking Parsons Green and spanning 903 sq. ft.

This well configured flat offers a large, light and bright reception room and space for a dining table with a separate galley kitchen.

There are three good sized double bedrooms; two of which benefit from built in storage and are served by a bathroom and seperate WC.

The property is well-presented and would work perfectly for three professional sharers.

Ideally situated on Parsons Green itself the property benefits fantastic views and immediate proximity to the tube station, local restaurants and shops as well as being well linked to neighbouring Chelsea by the 22 bus route.

Location

The first floor flat is also available for any investors who may want to purchase both flats. With a similar layout, this well configured flat which is in need of updating, offers a large, light and bright reception room with high ceilings and space for a dining table with a separate galley kitchen. There are three good size double bedrooms all benefiting from built in storage which are served by a bathroom. The flat is being offered to the market with a long lease and no onward chain.

Ideally situated on Parsons Green itself the property benefits fantastic views and immediate proximity to the tube station, local restaurants and shops as well as being well linked to neighbouring Chelsea by the 22 bus route.

Marketed by

Winkworth Fulham & Parsons Green

Properties for rent in Fulham & Parsons Green

Arrange a Viewing

Fill in the form below to arrange your property viewing.

This site is protected by reCAPTCHA and the Google Privacy Policy and Terms of Service apply.
6/14
Picture No. 05
Picture No. 19
Picture No. 01
Picture No. 14
Picture No. 17
Picture No. 04
Picture No. 07
Picture No. 03
Picture No. 09

Meet the Team

Our knowledgeable, friendly team are on hand to help whether you're buying, selling or renting. While we favour the local approach, by working closely with our London and national network alongside dedicated Corporate Services, marketing and PR departments, we give our clients an unparalleled advantage, matching homes with buyers and tenants throughout London and the UK. Please come and talk to us about your property requirements, and get to know the team from the Winkworth Estate Agents in Fulham.

See all team members

Got a question about this property?

This site is protected by reCAPTCHA and the Google Privacy Policy and Terms of Service apply.

More Properties like this

Wandsworth Bridge Road, London, SW6

£912 per week (£3,950 per month)

New Instruction

Brompton Park Crescent, London, SW6

£715 per week (£3,098 per month)

Crondace Road, London, SW6

£635 per week (£2,750 per month)

Under Offer

Perrymead Street, London, SW6

£612 per week (£2,650 per month)

Let Agreed

Parsons Green, Fulham, SW6

£575 per week (£2,492 per month)

Under Offer

Rosebank, Holyport Road, London, SW6

£575 per week (£2,492 per month)

Online Valuations Aren’t Worth The Paper They’re Printed On.

When online valuations don’t give you the whole picture - try Winkworth’s expert service. Get a free property appraisal. Accurate valuations from our local property experts. No obligation to list with Winkworth. Choose a time convenient for you with our online booking system.

Fill in your details and someone will be in touch soon:

You have provisionally booked a valuation for . Please confirm your details below

We don't have date info available for this property, but if you fill in your details below, someone will be in touch to arrange a date soon

Please fill in the required fields below marked with *

This site is protected by reCAPTCHA and the Google Privacy Policy and Terms of Service apply.