Skip to main content

MyWinkworth

Exterior
Picture No. 17
Picture No. 15
Picture No. 16
Communal Garden
Picture No. 20
Picture No. 21
Picture No. 18
Picture No. 19
6/14

Coopers House, 14 Brewery Court, Theale, Reading, RG7

2 bedroom flat/apartment in 14 Brewery Court

£358 per week (£1,550 per month) Fees may apply

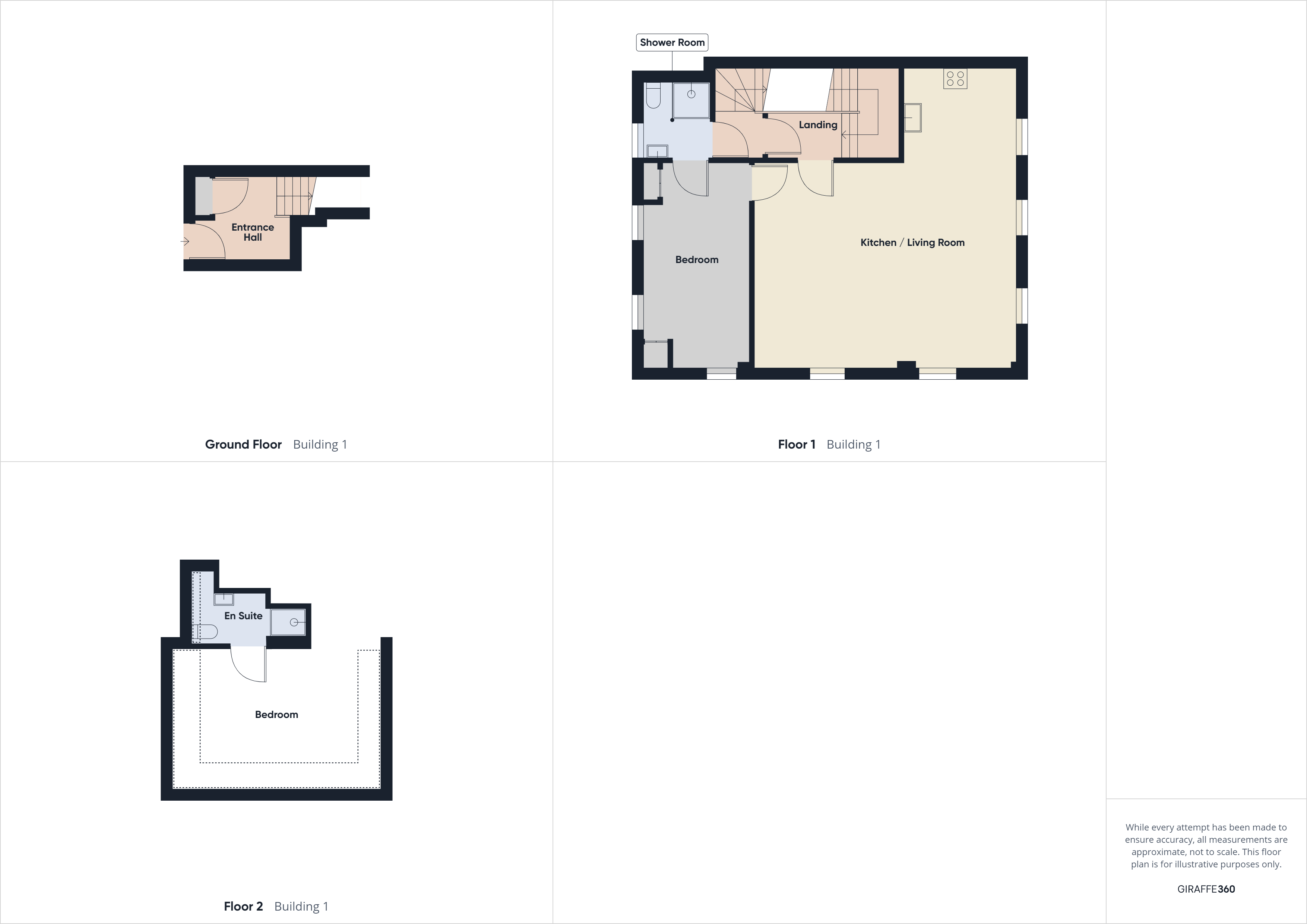
  • Bedrooms 2
  • Bathrooms 2
  • Reception rooms 1
  • Unfurnished
  • Floorplan

PICTURES AND VIDEOS

KEY FEATURES

  • Located in the heart of Theale
  • Two double bedrooms
  • Two bathrooms
  • Council tax band C
  • Two allocated parking spaces
  • Available 13th February
  • Unfurnished

KEY INFORMATION

  • Deposit: 5 Weeks rent
  • Council Tax Band: C
  • Local Authority: West Berkshire Council

Description

Beautiful two bedroom split level first floor apartment, set within private grounds in the heart of Theale village. The property comprises large open plan living area, modern kitchen with fitted appliances, two double bedrooms and two shower rooms. Benefits also include two allocated parking spaces, eaves storage and use of a communal garden. Located within walking distance of Theale railway station offering access to London Paddington in just 40 minutes and less than 10 minutes to Reading station and has easy access to J12 of the M4. Available 13th February 2026. Unfurnished.

Location

Theale, Berkshire is a highly regarded village offering an attractive blend of countryside charm and excellent commuter connections. Situated just west of Reading, Theale is particularly popular with professionals and families seeking a well-connected yet peaceful location.

The village benefits from a strong local community and a range of everyday amenities, including independent shops, cafés, supermarkets, restaurants, and traditional pubs. Theale High Street provides convenient local services, while nearby Reading offers extensive shopping, dining, and leisure facilities, including the Oracle Shopping Centre.

Transport links are a key attraction. Theale railway station provides regular direct services to Reading, London Paddington, and the wider Thames Valley, making it ideal for commuters. Road connections are equally convenient, with easy access to the M4 (Junction 12), linking residents quickly to London, Heathrow Airport, and the wider motorway network.

Theale is surrounded by attractive green spaces, with the Kennet & Avon Canal, open countryside, and nearby parks offering excellent opportunities for walking, cycling, and outdoor recreation. The area is also well served by a range of reputable schools, both primary and secondary.

Marketed by

Winkworth Reading

Properties for rent in Reading

Arrange a Viewing

Fill in the form below to arrange your property viewing.

This site is protected by reCAPTCHA and the Google Privacy Policy and Terms of Service apply.
6/14
Exterior
Picture No. 17
Picture No. 15
Picture No. 16
Communal Garden
Picture No. 20
Picture No. 21
Picture No. 18
Picture No. 19

Meet the Team

Located just 36 miles from Central London and 24 miles from Oxford, Reading's geographical placement is perfect for living and working or commuting. Michael and James are established professionals who have years of combined experience and local knowledge and can offer you a friendly approach and unparalleled service.

See all team members

Got a question about this property?

This site is protected by reCAPTCHA and the Google Privacy Policy and Terms of Service apply.

More Properties like this

Sussex House, The Forbury, Reading, Berkshire, RG1

£1,085 per week (£4,700 per month)

Bond House, Oxford Road, Reading, RG1

£1,073 per week (£4,650 per month)

Bond House, Oxford Road, Reading, RG1

£1,004 per week (£4,350 per month)

Wellington House, London Street, Reading, RG1

£969 per week (£4,200 per month)

Bond House, Oxford Road, Reading, Berkshire, RG1

£831 per week (£3,600 per month)

Sussex House, The Forbury, Reading, RG1

£831 per week (£3,600 per month)

Online Valuations Aren’t Worth The Paper They’re Printed On.

When online valuations don’t give you the whole picture - try Winkworth’s expert service. Get a free property appraisal. Accurate valuations from our local property experts. No obligation to list with Winkworth. Choose a time convenient for you with our online booking system.

Fill in your details and someone will be in touch soon:

You have provisionally booked a valuation for . Please confirm your details below

We don't have date info available for this property, but if you fill in your details below, someone will be in touch to arrange a date soon

Please fill in the required fields below marked with *

This site is protected by reCAPTCHA and the Google Privacy Policy and Terms of Service apply.