Skip to main content

MyWinkworth

Front Elevation
Sitting Room
Kitchen
Dining Room
Dining Room
Sitting Room
Shower Room
Bathroom
Bedroom 1
Bedroom 2
Bedroom 3
1st Floor Rear View
6/14

Catherington, Waterlooville, Hampshire, PO8

3 bedroom house in Waterlooville

£462 per week (£2,000 per month) Fees may apply

  • Bedrooms 3
  • Bathrooms 2
  • Reception rooms 2
  • Unfurnished
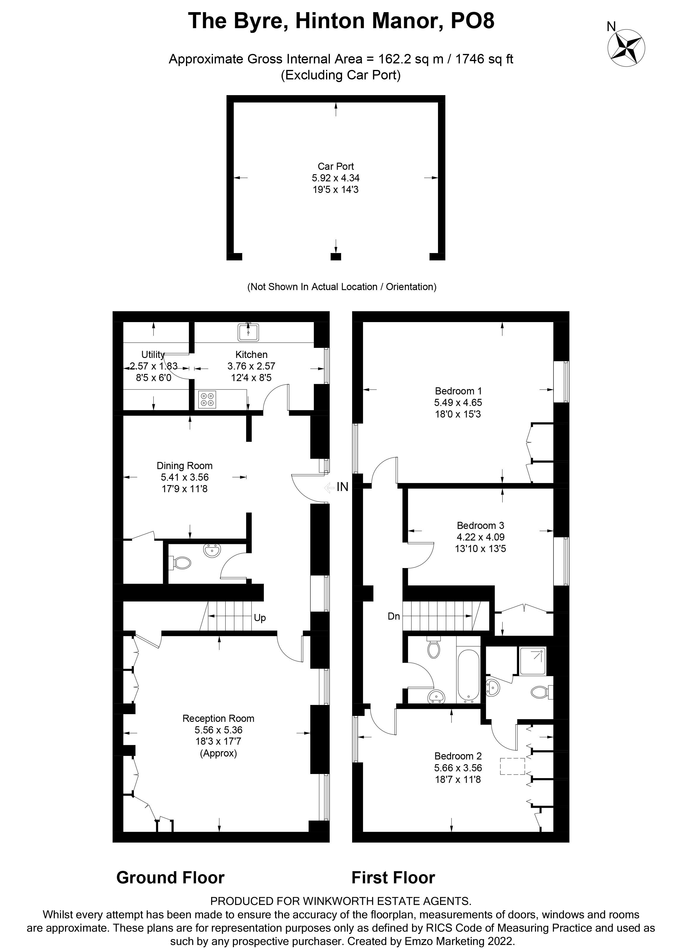
  • Floorplan

PICTURES AND VIDEOS

KEY FEATURES

  • Available w/c 29th September
  • Semi-rural location
  • Three double bedrooms
  • Two reception rooms
  • Courtyard garden
  • Carport

KEY INFORMATION

  • Deposit: 5 Weeks rent
  • Council Tax Band: E
  • Local Authority: East Hampshire District Council

Description

A fantastic opportunity to rent a stunning barn in a gorgeous location.

A wonderful opportunity to rent a spacious semi-detached barn, situated in a gorgeous, semi-rural location. With three double bedrooms, one with en suite shower room, two great reception rooms, kitchen, utility room and cloakroom, there is plenty of space to enjoy this fantastic property. To the front a private courtyard and there is a great communal area of garden that can be used for a variety of activities. The property also has the use of two carports within the courtyard.

Location

The property is situated in a gorgeous, semi-rural location, close to the villages of Clanfield and Lovedean, which boast a number of amenities including pubs, general convenience stores, church, village hall and a number of takeaway restaurants. More extensive amenities can be found in Petersfield, approximately 6 miles to the north where there's a train station providing a direct line to London Waterloo in a little over an hour. The village lies just beyond the boundary of The South Downs National Park which is renowned for its unspoilt countryside and outdoor activities. Further leisure pursuits in the area include golf available at Petersfield and Waterlooville, horse and motor racing at Goodwood, polo at Cowdray Park and sailing along the South Coast. There are many popular schools in the area including Churcher's College, Bedales, Ditcham Park, The Petersfield School and Portsmouth Grammar School.

Services: Mains water, electricity, oil fired heating and private drainage.

Ref: MD/220159/1

Marketed by

Winkworth Petersfield

Properties for rent in Petersfield

Arrange a Viewing

Fill in the form below to arrange your property viewing.

This site is protected by reCAPTCHA and the Google Privacy Policy and Terms of Service apply.
6/14
Front Elevation
Sitting Room
Kitchen
Dining Room
Dining Room
Sitting Room
Shower Room
Bathroom
Bedroom 1
Bedroom 2
Bedroom 3
1st Floor Rear View

Meet the Team

Our team at Winkworth Petersfield Estate Agents are here to support and advise our customers when they need it most. We understand that buying, selling, letting or renting can be daunting and often emotionally meaningful. We are there, when it matters, to make the journey as stress-free as possible.

See all team members

Got a question about this property?

This site is protected by reCAPTCHA and the Google Privacy Policy and Terms of Service apply.

More Properties like this

Cranford Road, Petersfield, Hampshire, GU32

£450 per week (£1,950 per month)

Let Agreed

Ridge Common Lane, Stroud, Petersfield, Hampshire, GU32

£404 per week (£1,750 per month)

Online Valuations Aren’t Worth The Paper They’re Printed On.

When online valuations don’t give you the whole picture - try Winkworth’s expert service. Get a free property appraisal. Accurate valuations from our local property experts. No obligation to list with Winkworth. Choose a time convenient for you with our online booking system.

Fill in your details and someone will be in touch soon:

You have provisionally booked a valuation for . Please confirm your details below

We don't have date info available for this property, but if you fill in your details below, someone will be in touch to arrange a date soon

Please fill in the required fields below marked with *

This site is protected by reCAPTCHA and the Google Privacy Policy and Terms of Service apply.