New Instruction
Burrows Road, London, NW10
2 bedroom flat/apartment in London
£554 per week
- 2
- 1
- 1
- Unfurnished
-
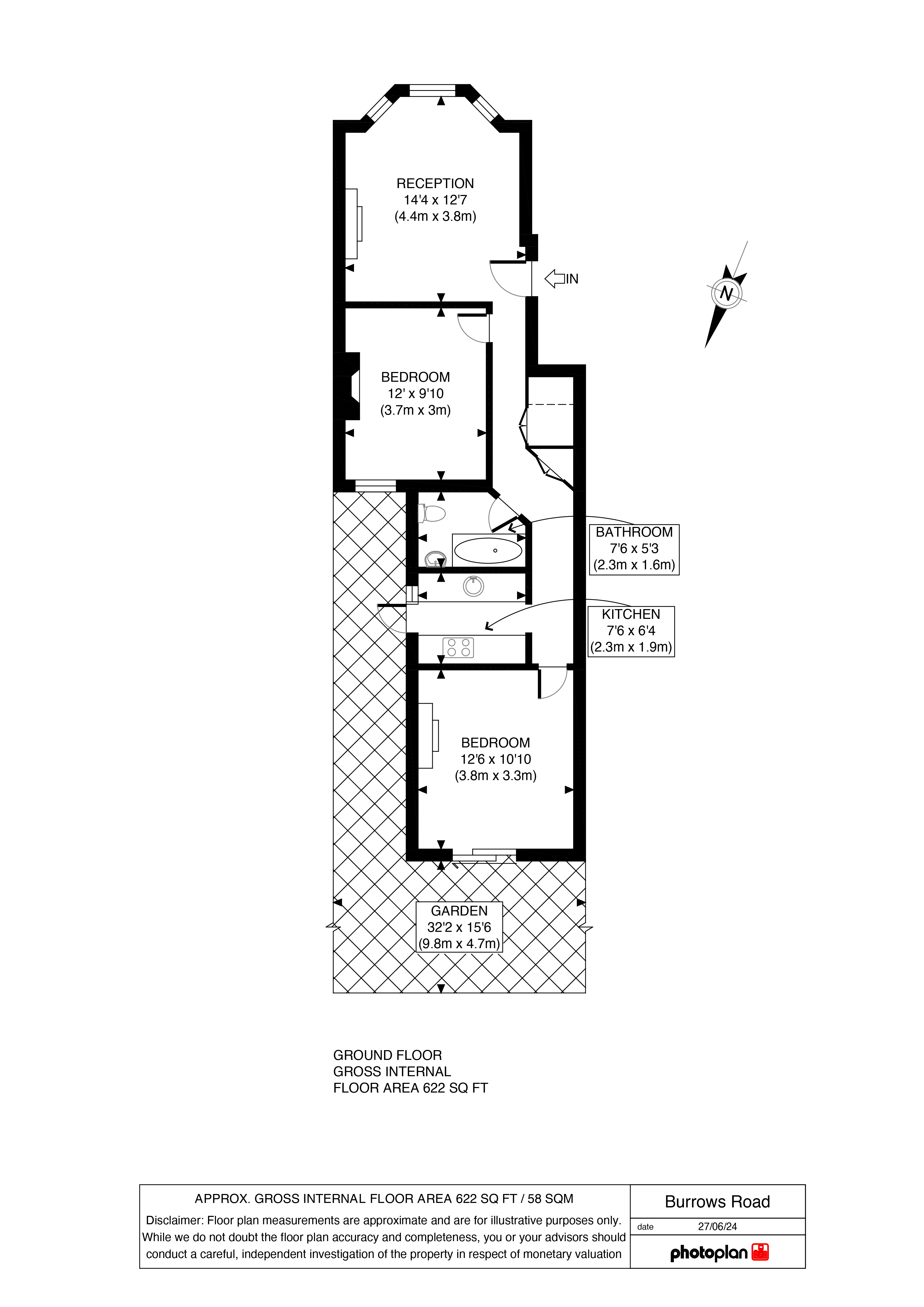
622 sq ft
57 sq m -
PICTURES AND VIDEOS









KEY FEATURES
- Two Double Bedroom
- Separate Kitchen
- Wooden Flooring Throughout
- Ground Floor – Garden Apartment
- Available 01/11/25
- Offered Unfurnished (some items can be purchased if required)
- 0.2 mil From Kensal Green Station
- 0.4 mil From Kensal Rise Station
KEY INFORMATION
- Deposit: 5 Weeks rent
- Council Tax Band: C
Description
This lovely garden flat has two good sized bedrooms, separate kitchen which provides direct access to the garden, a three piece family bathroom and a beautiful, bright and airy formal reception room to the front of the building with feature fireplace and large sash bay window.
The property is in excellent condition overall.
The garden is completely private and has been designed for ease of maintenance with patio area for outdoor furniture.
Unfurnished other than mirrors in the reception room.
Location
Transport links are great from either Queens Park or Kensal Green Underground Station (which also has London Overground) or Kensal Rise Overground which is a short walk from the front door.
The property is also a short walk from Chamberlayne Road and College Road with all the coffee shops, gastropubs and independent shops.
Marketed by
Winkworth Kensal Rise & Queen's Park
Properties for rent in Kensal Rise & Queen's ParkArrange a Viewing
Fill in the form below to arrange your property viewing.
Meet the Team
Our team are here to support and advise our customers when they need it most. We understand that buying, selling, letting or renting can be daunting and often emotionally meaningful. We are there, when it matters, to make the journey as stress-free as possible.
See all team members