Skip to main content

MyWinkworth

Picture No. 08
Picture No. 02
Picture No. 06
Picture No. 07
Picture No. 04
Picture No. 03
Picture No. 05
6/14

Woollaston Road, London, N4

1 bedroom flat/apartment in London

Guide Price £450,000 Leasehold

  • Bedrooms 1
  • Bathrooms 1
  • Reception rooms 1
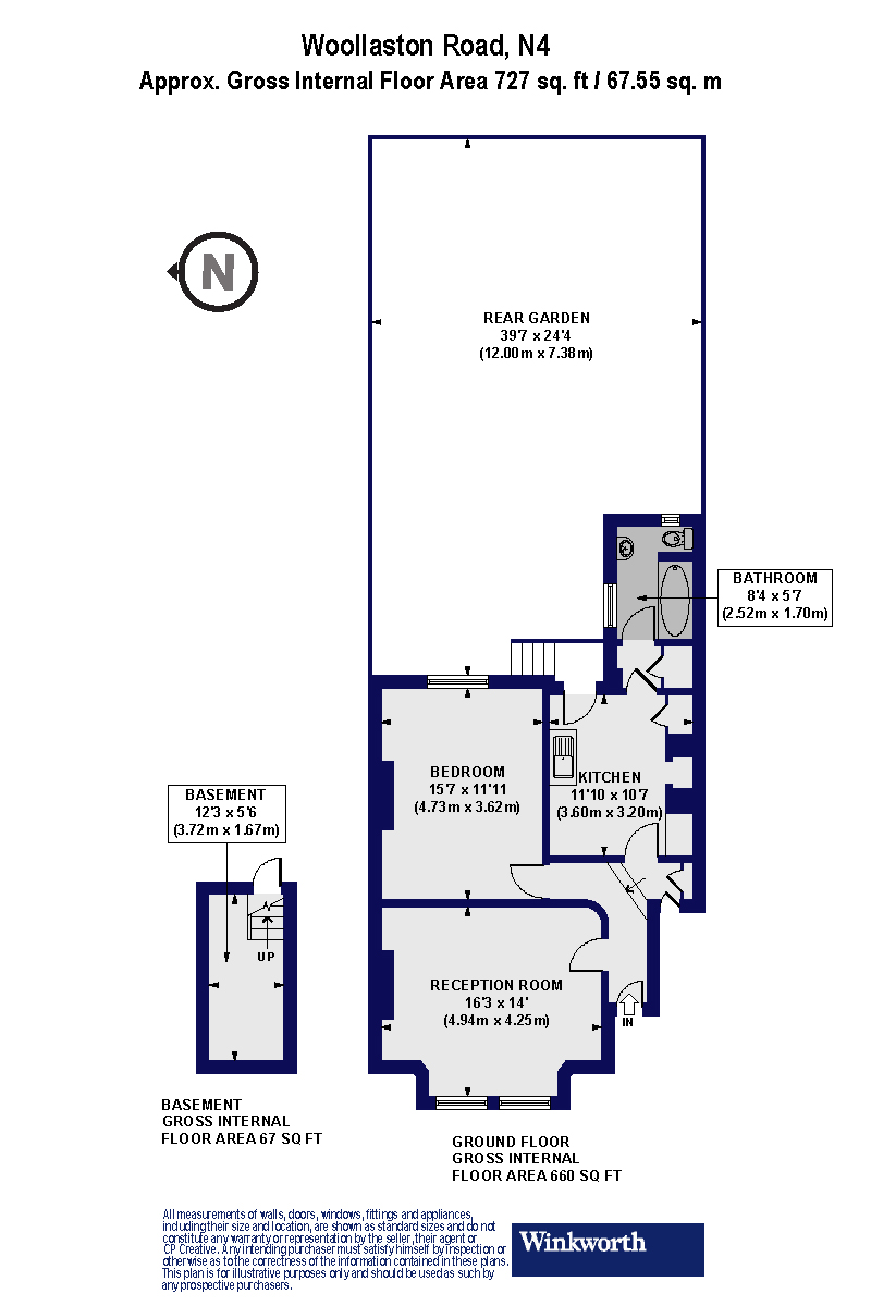
  • Floorplan

PICTURES AND VIDEOS

KEY FEATURES

  • 727 sq ft
  • One Double Bedroom
  • Garden
  • Needs Modernising
  • Period Conversion
  • Close to Finsbury Park Zone 2
  • Lease 125 Years from 27th April 1987
  • Chain-Free

KEY INFORMATION

  • Tenure: Leasehold

Description

Large one bedroom garden flat with period features in need of a complete renovation, converted from the entire ground floor of a Victorian terrace house. A 5 minute walk to the entrance of Finsbury Park.

Sole Agent.

Character one bedroom garden flat in need of a complete renovation. Converted from the ground floor of a Victorian House. Within a short walk of Finsbury Park. Chain-Free

This period home offers scope for investment purposes, or for those looking to stamp their own personal touch to a fine Victorian apartment.

The property occupies 727 sq ft of living space and comprises: a spacious lounge, basement, kitchen, double bedroom, bathroom/wc and a 39 ft approx rear garden.

Located on a quiet residential turning on the sought-after Harringay Ladder, less than 5 minutes walk to the nearest entrance of Finsbury Park and close to the New River Path and Railway Fields Nature Reserve.

Harringay station is just a few minutes walk away for frequent trains to Moorgate in 16 minutes. Manor House Underground Station (Piccadilly Line Zone 2) and Harringay Green Lanes Overground Station are also close by; both are only one stop from Finsbury Park where you can switch to the Victoria Line in 2 minutes. Alternatively you can walk through the park to the Victoria and Piccadilly line tube station at Finsbury Park.

Ideally located close to the vibrant Green Lanes shops, restaurants, cafes and bars, and the nearby Stroud Green, Finsbury Park and Crouch End.

Marketed by

Winkworth Harringay

Properties for sale in Harringay

Arrange a Viewing

Fill in the form below to arrange your property viewing.

This site is protected by reCAPTCHA and the Google Privacy Policy and Terms of Service apply.
Introduction text for the mortgage calculator

Mortgage Calculator

Fill in the details below to estimate your monthly repayments:

Approximate monthly repayment:

For more information, please contact Winkworth's mortgage partner, Trinity Financial, on +44 (0)20 7267 9399 and speak to the Trinity team.

Stamp Duty Calculator

Fill in the details below to estimate your stamp duty

The above calculator above is for general interest only and should not be relied upon

6/14
Picture No. 08
Picture No. 02
Picture No. 06
Picture No. 07
Picture No. 04
Picture No. 03
Picture No. 05

Meet the Team

At Winkworth Harringay Estate Agents, we have a comprehensive team of knowledgeable and personable property experts who are excited about the local area. So whether you're buying, selling, renting or letting or simply need some advice, pop into our office on Green Lanes for the experience and the local knowledge you need.

See all team members

Got a question about this property?

This site is protected by reCAPTCHA and the Google Privacy Policy and Terms of Service apply.

More Properties like this

Under Offer

Green Lanes, London, N4

£750,000 Share of Freehold

Under Offer

Burgoyne Road, London, N4

Guide Price £735,000 Share of Freehold

Under Offer

Sydney Road, London, N8

Guide Price £725,000 Share of Freehold

New Instruction

Wightman Road, London, N4

Guide Price £650,000 Leasehold

Under Offer

Duckett Road, London, Haringey, N4

Guide Price £635,000 Share of Freehold

Hermitage Road, London, N4

£625,000 Leasehold

Online Valuations Aren’t Worth The Paper They’re Printed On.

When online valuations don’t give you the whole picture - try Winkworth’s expert service. Get a free property appraisal. Accurate valuations from our local property experts. No obligation to list with Winkworth. Choose a time convenient for you with our online booking system.

Fill in your details and someone will be in touch soon:

You have provisionally booked a valuation for . Please confirm your details below

We don't have date info available for this property, but if you fill in your details below, someone will be in touch to arrange a date soon

Please fill in the required fields below marked with *

This site is protected by reCAPTCHA and the Google Privacy Policy and Terms of Service apply.