Skip to main content

MyWinkworth

Picture No. 20
Picture No. 04
Picture No. 21
Picture No. 03
Picture No. 02
Picture No. 05
Picture No. 13
Picture No. 22
Picture No. 14
Picture No. 17
Picture No. 12
Picture No. 07
Picture No. 08
Picture No. 09
Picture No. 11
Picture No. 19
Picture No. 22
Picture No. 23
Picture No. 24
Picture No. 25
Picture No. 24
Picture No. 28
Picture No. 29
6/14

Woodside Gardens, London, N17

3 bedroom house in London

£775,000 Freehold

  • Bedrooms 3
  • Bathrooms 1
  • Reception rooms 2
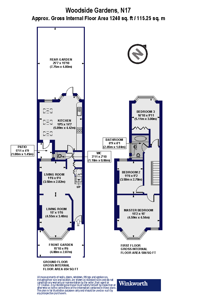
  • Dimensions 1240 sq ft
    115 sq m
  • Floorplan

PICTURES AND VIDEOS

KEY FEATURES

  • Three Bedrooms
  • Side Return Extended
  • 26ft Double Reception Room
  • Downstairs WC
  • Modern Family Bathroom
  • Low Maintenance Rear Garden
  • Great Transport Links

KEY INFORMATION

  • Tenure: Freehold

Description

This stunning Victorian terrace has been thoughtfully extended to create a spacious and inviting home that blends classic character with modern living.

This impressive late Victorian house is designed to create a spacious contemporary family home by skilfully blending its original period features with modern living. Offering approximately 1,240 square feet across two floors it also features a generous side extension to the kitchen which opens the heart of the house.

It is not often that such an elegantly appointed house becomes available in this much sought after area.

Through the smart forecourt a tiled path leads to the smoky blue front door.

On the ground floor the kitchen extension perfectly balances light, space, and privacy, transforming the kitchen/dining area into a bright and generous multi-functional space that stretches nearly 20 feet. It is filled with natural light from full height glazing and skylights. The bespoke kitchen includes sleek cabinetry and premium appliances. There is also additional ample storage space provided. It is ideal for both everyday family life and entertaining.

The kitchen opens onto an architectural, southwest facing garden, constructed on two levels. It is fitted with outside lights plus power points affording further ambient lighting, ideal for al fresco dining.

Period charm shines through the ground floor areas which flow seamlessly into each other, creating versatile spaces.

The double reception room has been cleverly opened making it into an expansive space that suits growing families and is perfect for entertaining. It is fitted throughout with immaculate American oak flooring and is flooded with natural light from the bay window on the one side and the internal courtyard on the other.

Upstairs, three double bedrooms continue to impress, each finished to a high standard, and all fitted with top quality pure wool carpets. The front bedroom is supplied with custom-made hand painted wooden blinds while the back bedroom features bespoke fitted storage. The luxurious family bathroom is fitted with quality fixtures, Victorian glazed blue tiles, and underfloor heating.

There is a spacious loft area already fitted with wiring and plumbing for possible future conversion.

A rare find in N17, this beautiful house strikes the perfect balance between timeless character, modern updates, and a superb location.

Woodside Gardens is part of a sought-after residential enclave in Tottenham, just off Bruce Grove. This peaceful pocket is lined with attractive period homes and sits close to the 16th-century Bruce Castle and Park.

Transport links are excellent. Bruce Grove Station provides fast rail services into Liverpool Street, while Tottenham Hale ( for the Stansted Express) and Seven Sisters stations are also close by, offering the Victoria Line into central London. A network of frequent busses and the Cycle Superhighway (SC1) are easily accessed from the nearby high road.

Whether commuting or exploring, the location combines convenience with the charm of a well-established neighbourhood, and this home benefits from a strong sense of community and excellent local amenities, including popular schools nearby.

Marketed by

Winkworth Harringay

Properties for sale in Harringay

Arrange a Viewing

Fill in the form below to arrange your property viewing.

This site is protected by reCAPTCHA and the Google Privacy Policy and Terms of Service apply.
Introduction text for the mortgage calculator

Mortgage Calculator

Fill in the details below to estimate your monthly repayments:

Approximate monthly repayment:

For more information, please contact Winkworth's mortgage partner, Trinity Financial, on +44 (0)20 7267 9399 and speak to the Trinity team.

Stamp Duty Calculator

Fill in the details below to estimate your stamp duty

The above calculator above is for general interest only and should not be relied upon

6/14
Picture No. 20
Picture No. 04
Picture No. 21
Picture No. 03
Picture No. 02
Picture No. 05
Picture No. 13
Picture No. 22
Picture No. 14
Picture No. 17
Picture No. 12
Picture No. 07
Picture No. 08
Picture No. 09
Picture No. 11
Picture No. 19
Picture No. 22
Picture No. 23
Picture No. 24
Picture No. 25
Picture No. 24
Picture No. 28
Picture No. 29

Meet the Team

At Winkworth Harringay Estate Agents, we have a comprehensive team of knowledgeable and personable property experts who are excited about the local area. So whether you're buying, selling, renting or letting or simply need some advice, pop into our office on Green Lanes for the experience and the local knowledge you need.

See all team members

Got a question about this property?

This site is protected by reCAPTCHA and the Google Privacy Policy and Terms of Service apply.

More Properties like this

Under Offer

Warham Road, London, N4

Guide Price £1,275,000 Freehold

Under Offer

Atterbury Road, Finsbury Park, N4

Guide Price £1,275,000 Freehold

Under Offer

Sydney Road, London, N8

Guide Price £1,150,000 Freehold

Under Offer

Lausanne Road, London, N8

Guide Price £1,050,000 Freehold

Under Offer

Hewitt Road, London, N8

£975,000 Freehold

Keston Road, London, N17

Guide Price £965,000 Freehold

Online Valuations Aren’t Worth The Paper They’re Printed On.

When online valuations don’t give you the whole picture - try Winkworth’s expert service. Get a free property appraisal. Accurate valuations from our local property experts. No obligation to list with Winkworth. Choose a time convenient for you with our online booking system.

Fill in your details and someone will be in touch soon:

You have provisionally booked a valuation for . Please confirm your details below

We don't have date info available for this property, but if you fill in your details below, someone will be in touch to arrange a date soon

Please fill in the required fields below marked with *

This site is protected by reCAPTCHA and the Google Privacy Policy and Terms of Service apply.