New Instruction
Woodlands Park Road, London, N15
1 bedroom flat/apartment in London
£395,000 Leasehold
- 1
- 1
- 1
PICTURES AND VIDEOS










KEY FEATURES
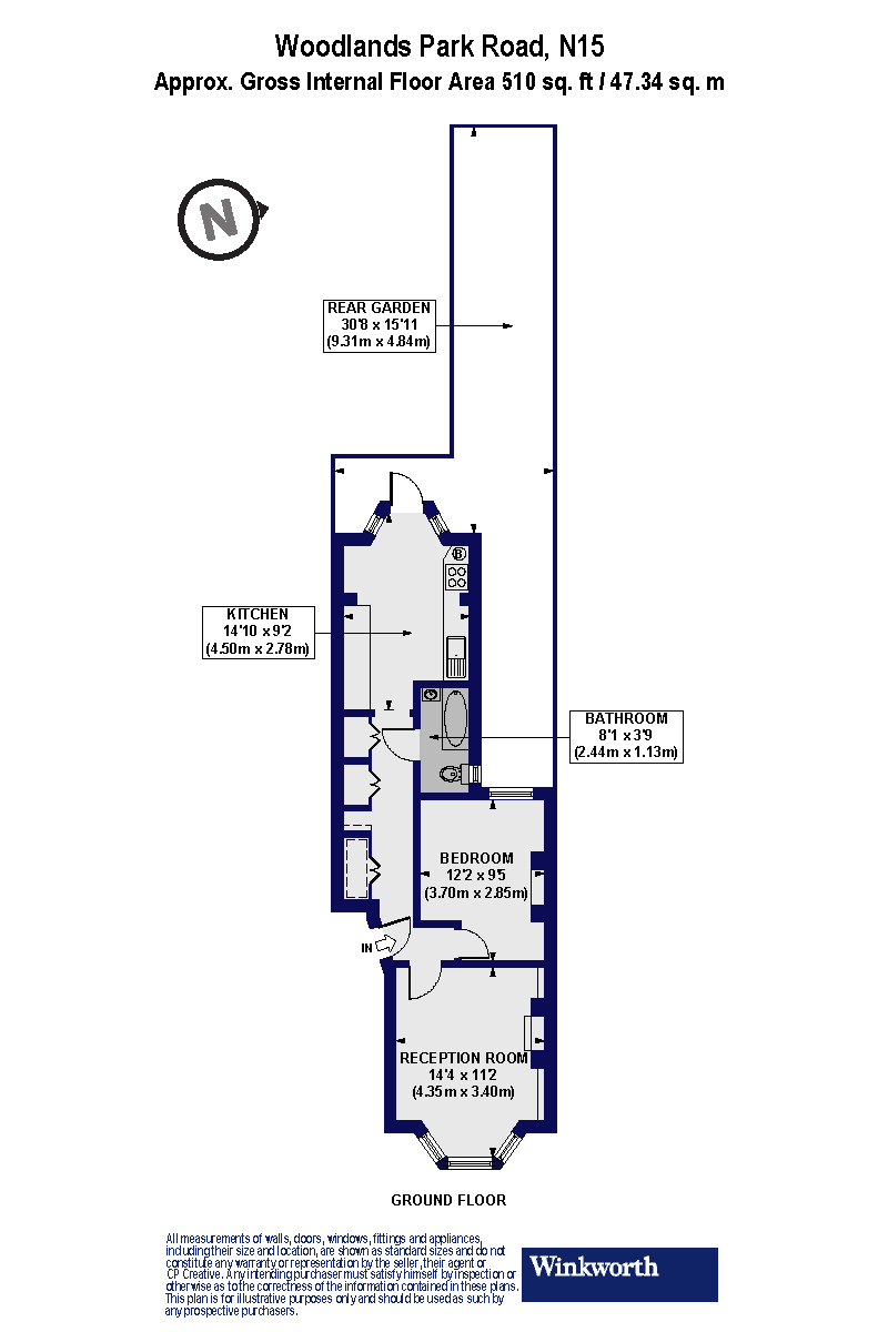
- One-bedroom Victorian garden flat
- Spacious reception with bay window and fireplace
- Large kitchen with dining space
- Peaceful double bedroom
- Private 30ft garden
- Near Green Lanes, Crouch End and Turnpike Lane Tube
- Chain Free
- Long Lease
KEY INFORMATION
- Tenure: Leasehold
Description
A shared entrance opens into a bright hallway leading through to the main reception room, a welcoming, well-proportioned space with high ceilings, original floorboards and a large bay window that fills the room with natural light. Thoughtfully styled, it offers plenty of room for both living and working areas, with built-in shelving and a feature fireplace adding warmth and character.
The double bedroom sits quietly off the hallway, featuring simple décor, natural wood floors and a lovely rear aspect. Adjacent, the bathroom is finished in white tiling and includes a full-size bath with overhead shower.
At the rear, the kitchen is a standout. Generous in size and full of light, with wooden worktops, checkerboard tiling and room for a dining table by the bay window. French doors open directly onto a long, private garden, offering a peaceful retreat and great potential for further landscaping or entertaining.
Woodlands Park Road is a quiet, tree-lined street in one of the area’s most sought-after pockets, just a short walk from both Green Lanes and Crouch End’s independent cafés, shops and restaurants. Harringay Green Lanes Overground and Turnpike Lane Underground (Piccadilly Line) are close by, making commuting into the City and West End quick and convenient.
Please contact the Sales department at Winkworth Harringay office to arrange an appointment to view 020 8800 [email protected]
Winkworth.co.uk
Your local independently owned property agency with a network of London offices.
Est 1835
Marketed by
Winkworth Harringay
Properties for sale in HarringayArrange a Viewing
Fill in the form below to arrange your property viewing.
Mortgage Calculator
Fill in the details below to estimate your monthly repayments:
Approximate monthly repayment:
For more information, please contact Winkworth's mortgage partner, Trinity Financial, on +44 (0)20 7267 9399 and speak to the Trinity team.
Stamp Duty Calculator
Fill in the details below to estimate your stamp duty
The above calculator above is for general interest only and should not be relied upon
Meet the Team
At Winkworth Harringay Estate Agents, we have a comprehensive team of knowledgeable and personable property experts who are excited about the local area. So whether you're buying, selling, renting or letting or simply need some advice, pop into our office on Green Lanes for the experience and the local knowledge you need.
See all team members