Skip to main content

MyWinkworth

Sold

Picture No. 11
Picture No. 08
Picture No. 10
Picture No. 04
Picture No. 09
Picture No. 03
Picture No. 05
Picture No. 07
Picture No. 06
6/14

Witherington Road, London, N5

1 bedroom flat/apartment in London

Offers in excess of £435,000 Leasehold

  • Bedrooms 1
  • Bathrooms 1
  • Reception rooms 1
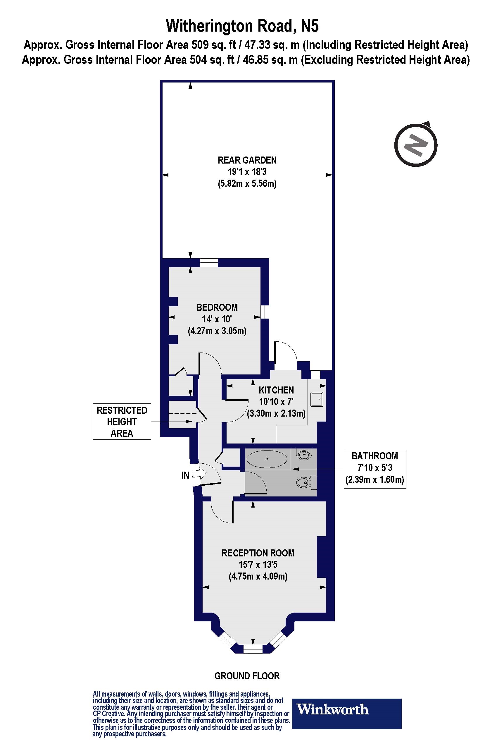
  • Floorplan

PICTURES AND VIDEOS

KEY INFORMATION

  • Tenure: Leasehold
  • Ground rent: £250.00 per annum
  • Council Tax Band: D

Description

Set on a beautiful tree lined street in Highbury is this one double bedroom, ground floor, period conversion. Offering over 500sq ft of internal space, to the front of the house is a good-sized living room complete with a gorgeous south facing bay window. Overlooking the 349 sq ft private garden is a well-proportioned double bedroom and separate kitchen. The property is in need of renovation and would be the perfect opportunity to put your own stamp on creating a phenomenal ground floor, garden apartment.
Witherington Road is wonderfully quiet, tree lined street conveniently located just off Highbury Fields and moments from a variety of transport links including Highbury and Islington station (Victoria and East London Lines), Drayton Park over ground station and Arsenal underground station. Numerous bus routes are also on offer and international transport is facilitated from St Pancras. Upper Street is within easy reach and provides an assortment of bars and restaurants alongside an array of boutique shops.
Introduction text for the mortgage calculator

Mortgage Calculator

Fill in the details below to estimate your monthly repayments:

Approximate monthly repayment:

For more information, please contact Winkworth's mortgage partner, Trinity Financial, on +44 (0)20 7267 9399 and speak to the Trinity team.

Stamp Duty Calculator

Fill in the details below to estimate your stamp duty

The above calculator above is for general interest only and should not be relied upon

6/14
Picture No. 11
Picture No. 08
Picture No. 10
Picture No. 04
Picture No. 09
Picture No. 03
Picture No. 05
Picture No. 07
Picture No. 06

Meet the Team

From our office on Highbury Park, we pride ourselves on our unrivalled local knowledge. Many of the team here at Winkworth Highbury Estate Agents live locally and whether it's sales, lettings or property management, we're always striving to provide an unparalleled service and tailor it to your exacting needs.

See all team members

Got a question about this property?

This site is protected by reCAPTCHA and the Google Privacy Policy and Terms of Service apply.

More Properties like this

Under Offer

Petherton Road, London, N5

£1,000,000 Leasehold

Under Offer

Finsbury Park Road, London, N4

£950,000 Leasehold

Under Offer

Highbury Hill, London, N5

£950,000 Share of Freehold

Under Offer

Aberdeen Road, London, N5

Offers in excess of £895,000 Share of Freehold

Under Offer

Poets Road, London, N5

Offers in excess of £850,000 Leasehold

Highbury Park, London, N5

Guide Price £850,000 Share of Freehold

Online Valuations Aren’t Worth The Paper They’re Printed On.

When online valuations don’t give you the whole picture - try Winkworth’s expert service. Get a free property appraisal. Accurate valuations from our local property experts. No obligation to list with Winkworth. Choose a time convenient for you with our online booking system.

Fill in your details and someone will be in touch soon:

You have provisionally booked a valuation for . Please confirm your details below

We don't have date info available for this property, but if you fill in your details below, someone will be in touch to arrange a date soon

Please fill in the required fields below marked with *

This site is protected by reCAPTCHA and the Google Privacy Policy and Terms of Service apply.