Skip to main content

MyWinkworth

Sold

Picture No. 13
Picture No. 01
Picture No. 02
Picture No. 05
Picture No. 04
Picture No. 08
Picture No. 03
Picture No. 09
Picture No. 11
Picture No. 12
Picture No. 10
Picture No. 07
6/14

Stavordale Road, London, N5

2 bedroom flat/apartment in London

£800,000 Share of Freehold

  • Bedrooms 2
  • Bathrooms 1
  • Reception rooms 1
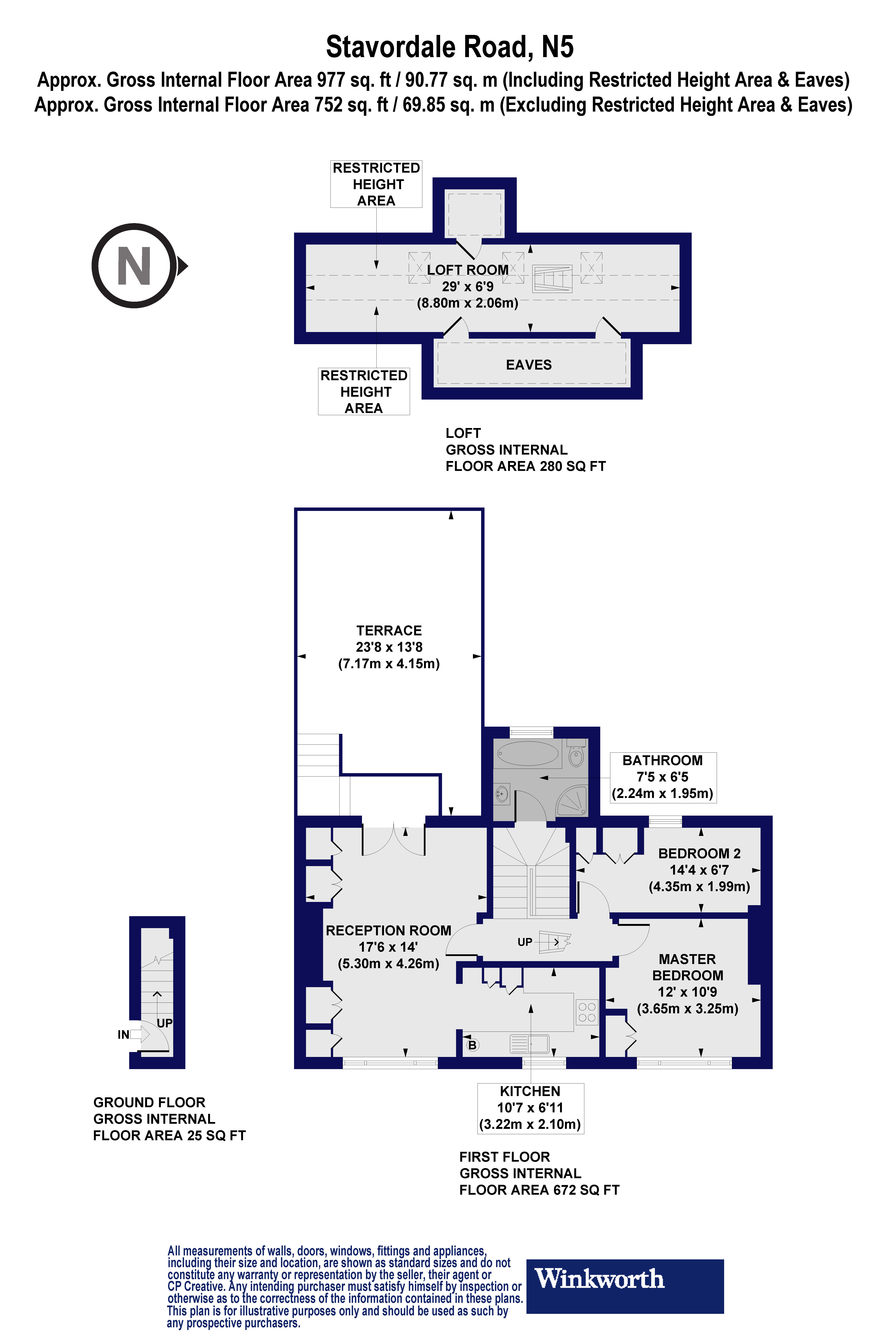
  • Floorplan

PICTURES AND VIDEOS

KEY INFORMATION

  • Tenure: Share of Freehold
  • Council Tax Band: E
  • Local Authority: Islington Council

Description

A substantial, two double bedroom apartment positioned across the top floor of this handsome, double fronted Victorian building in Highbury. Standing in excess of 970 sqft, the property offers wonderfully bright rooms throughout from an east to west facing aspect. Accommodation comprises of a spacious reception room with ample alcove storage space, which opens out into a fully equipped kitchen. Leading off from the reception room is a stunning roof terrace facing directly west, perfect for those summer evenings. Both bedrooms positioned at the other end of the building with both benefitting from built in storage. The loft room at the top of the house has significant potential to extend, subject to necessary planning permission. The property is completed with a modern family bathroom and is offered to the market on a chain free basis.
Stavordale Road is a calm and peaceful residential street set off Drayton Park and is perfectly situated for a multitude of transport links providing easy access across London. It is within a short distance of many of the excellent nearby schools and the green open spaces of Highbury Fields. Highbury Barn is also moments away and offers a renowned selection of local amenities, including La Fromagerie, Bournes fishmongers, Godfrey’s Butchers and Highbury Vintners, all of which are hugely popular with locals as well as drawing those from further afield.
Arsenal underground station (Piccadilly Line) is just a few moments and Drayton Park operates an overground service to Moorgate. Highbury & Islington station is also in close proximity (Victoria Line and Overground). An array of bus routes can also be found nearby offering easy access to the City, the West End and London in general.
Introduction text for the mortgage calculator

Mortgage Calculator

Fill in the details below to estimate your monthly repayments:

Approximate monthly repayment:

For more information, please contact Winkworth's mortgage partner, Trinity Financial, on +44 (0)20 7267 9399 and speak to the Trinity team.

Stamp Duty Calculator

Fill in the details below to estimate your stamp duty

The above calculator above is for general interest only and should not be relied upon

6/14
Picture No. 13
Picture No. 01
Picture No. 02
Picture No. 05
Picture No. 04
Picture No. 08
Picture No. 03
Picture No. 09
Picture No. 11
Picture No. 12
Picture No. 10
Picture No. 07

Meet the Team

From our office on Highbury Park, we pride ourselves on our unrivalled local knowledge. Many of the team here at Winkworth Highbury Estate Agents live locally and whether it's sales, lettings or property management, we're always striving to provide an unparalleled service and tailor it to your exacting needs.

See all team members

Got a question about this property?

This site is protected by reCAPTCHA and the Google Privacy Policy and Terms of Service apply.

More Properties like this

Under Offer

Petherton Road, London, N5

£1,000,000 Leasehold

Under Offer

Finsbury Park Road, London, N4

£950,000 Leasehold

Under Offer

Highbury Hill, London, N5

£950,000 Share of Freehold

Under Offer

Aberdeen Road, London, N5

Offers in excess of £895,000 Share of Freehold

Under Offer

Poets Road, London, N5

Offers in excess of £850,000 Leasehold

Highbury Park, London, N5

Guide Price £850,000 Share of Freehold

Online Valuations Aren’t Worth The Paper They’re Printed On.

When online valuations don’t give you the whole picture - try Winkworth’s expert service. Get a free property appraisal. Accurate valuations from our local property experts. No obligation to list with Winkworth. Choose a time convenient for you with our online booking system.

Fill in your details and someone will be in touch soon:

You have provisionally booked a valuation for . Please confirm your details below

We don't have date info available for this property, but if you fill in your details below, someone will be in touch to arrange a date soon

Please fill in the required fields below marked with *

This site is protected by reCAPTCHA and the Google Privacy Policy and Terms of Service apply.