Sold
Winforton Street, Greenwich, SE10
3 bedroom house
£750,000 Freehold
- 3
- 2
- 2
-
1069 sq ft
99 sq m -
PICTURES AND VIDEOS














KEY FEATURES
- three bedroom house
- excellent condition
- circa 1069 sq ft
- extended to rear
- pretty 46 ft rear garden
- two bathrooms
- quiet road
- west Greenwich location
- very close to town ctr
- close to mainline rail and DLR
KEY INFORMATION
- Tenure: Freehold
Description
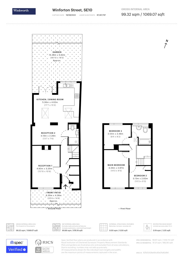
In good order throughout the property comprises of a front reception room on the ground floor. As mentioned the kitchen to rear has been heavily extended giving further reception space, along with a lovely 17ft kitchen diner. This room, in turn, leads on to a 46ft rear garden. There is also a small shower room off the kitchen. Upstairs there are three bedrooms and a family bathroom. The property also has a good sized front garden and ample storage.
Winforton Street is a pretty and quiet road located in West Greenwich, just off Royal Hill. It is arguably one of the best locations within the area and is highly sought after. The town centre is just a short walk away, giving access to a wide variety of shops and restaurants, along with mainline rail, riverboat service and DLR. The Royal Park with its Observatory is also just a short walk.
Mortgage Calculator
Fill in the details below to estimate your monthly repayments:
Approximate monthly repayment:
For more information, please contact Winkworth's mortgage partner, Trinity Financial, on +44 (0)20 7267 9399 and speak to the Trinity team.
Stamp Duty Calculator
Fill in the details below to estimate your stamp duty
The above calculator above is for general interest only and should not be relied upon
Meet the Team
At Winkworth Greenwich Estate Agents our local know-how and expertise is second to none and we love being part of this vibrant area. Having worked in property for many years in Greenwich, our team of experts are well placed to help you with all your property needs seven days a week.
See all team members