Skip to main content

MyWinkworth

Sold

Picture No. 05
Picture No. 09
Picture No. 14
Picture No. 04
Picture No. 06
Picture No. 12
Picture No. 13
Picture No. 11
Picture No. 07
Picture No. 08
Picture No. 10
6/14

Westbury Avenue, London, N22

2 bedroom flat/apartment in London

Guide Price £450,000 Leasehold

  • Bedrooms 2
  • Bathrooms 1
  • Reception rooms 1
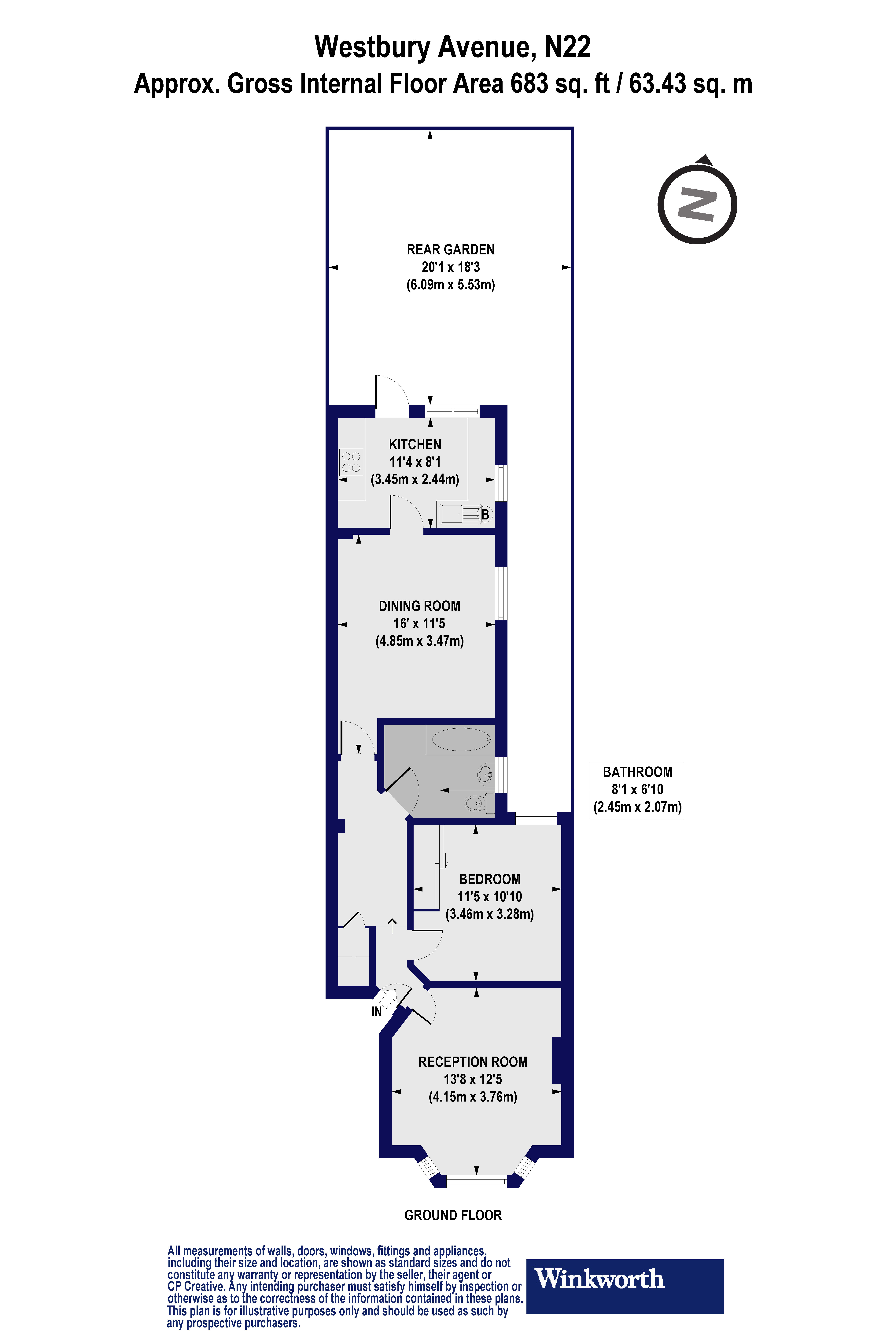
  • Floorplan

PICTURES AND VIDEOS

KEY FEATURES

  • Two Bedrooms
  • Reception Room
  • Modern Bathroom
  • Modern Kitchen
  • Close To Transport Links
  • Long Leasehold

KEY INFORMATION

  • Tenure: Leasehold
  • Council Tax Band: D

Description

Occupying the entire ground floor of an attractive Victorian terrace house, this spacious two-bedroom flat enjoys exclusive access to the rear garden.

Sole Agent

Occupying the entire ground floor of an attractive Victorian terrace house, this spacious two-bedroom flat enjoys exclusive access to the rear garden.

Crisp, white decor enhances the welcoming atmosphere upon entering this roomy 683 sq.ft apartment.

At the front, the first of the two double bedrooms, currently utilized as a versatile space by our clients, offers flexibility due to the flat's layout. Further down the hall is the second double bedroom, overlooking the side return and garden.

The spacious living area and modern kitchen are located at the rear. The kitchen offers direct access to the low-maintenance rear garden, providing a private retreat backing onto the park. The flat holds potential for extension to the rear and into the side return, pending the usual planning consents.

This property is in a superb location. Piccadilly Line Zone 3 Underground Station at Turnpike Lane is just half a mile down the road. On the way, you'll pass the Westbury Pub with its fine selection of craft beers and IPA’s - so please go and sample, as it will be your local. Want some fresh air or want to walk the dog? The property backs on to Russell Park, and for even wider open spaces, Lordship recreation park is only 5/10 minutes away.


Please contact the sales department at Winkworth Harringay to arrange an appointment to view 020 8800 5151.

Winkworth.co.uk

Your local independently owned property agency with a network of 61 London offices.

Est 1835

Follow us on Instagram @winkworthharringay
Introduction text for the mortgage calculator

Mortgage Calculator

Fill in the details below to estimate your monthly repayments:

Approximate monthly repayment:

For more information, please contact Winkworth's mortgage partner, Trinity Financial, on +44 (0)20 7267 9399 and speak to the Trinity team.

Stamp Duty Calculator

Fill in the details below to estimate your stamp duty

The above calculator above is for general interest only and should not be relied upon

6/14
Picture No. 05
Picture No. 09
Picture No. 14
Picture No. 04
Picture No. 06
Picture No. 12
Picture No. 13
Picture No. 11
Picture No. 07
Picture No. 08
Picture No. 10

Meet the Team

At Winkworth Harringay Estate Agents, we have a comprehensive team of knowledgeable and personable property experts who are excited about the local area. So whether you're buying, selling, renting or letting or simply need some advice, pop into our office on Green Lanes for the experience and the local knowledge you need.

See all team members

Got a question about this property?

This site is protected by reCAPTCHA and the Google Privacy Policy and Terms of Service apply.

More Properties like this

Under Offer

Green Lanes, London, N4

£750,000 Share of Freehold

Under Offer

Burgoyne Road, London, N4

Guide Price £735,000 Share of Freehold

Under Offer

Sydney Road, London, N8

Guide Price £725,000 Share of Freehold

Lausanne Road, London, N8

£675,000 Leasehold

Under Offer

Duckett Road, London, Haringey, N4

Guide Price £635,000 Share of Freehold

Hermitage Road, London, N4

£625,000 Leasehold

Online Valuations Aren’t Worth The Paper They’re Printed On.

When online valuations don’t give you the whole picture - try Winkworth’s expert service. Get a free property appraisal. Accurate valuations from our local property experts. No obligation to list with Winkworth. Choose a time convenient for you with our online booking system.

Fill in your details and someone will be in touch soon:

You have provisionally booked a valuation for . Please confirm your details below

We don't have date info available for this property, but if you fill in your details below, someone will be in touch to arrange a date soon

Please fill in the required fields below marked with *

This site is protected by reCAPTCHA and the Google Privacy Policy and Terms of Service apply.