West Street, Bourne, Lincolnshire, PE10
3 bedroom bungalow in Bourne
£175,000 Freehold
- 3
- 1
- 1
PICTURES AND VIDEOS














KEY INFORMATION
- Tenure: Freehold
- Council Tax Band: A
- Local Authority: South Kesteven District Council
Description
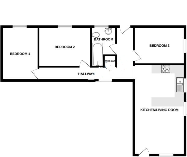
Rooms and Accommodations
- Kitchen/Living Room
- 6.5m x 3.66m
- Being open plan with modern fitted units comprising, sink with cupboard below, excellent range of wall and base units, built in oven and hob with extractor above, space for fridge, space and plumbing for washing machine, space and plumbing for dishwasher, part tiled walls, upvc double glazed windows to the front and side, wall mounted electric heaters and door to:
- Inner Hall
- With doors leading to the three bedrooms and bathroom, door to the rear garden.
- Bedroom One
- 3.89m x 2.64m
- With upvc double window to the rear, power points and wall mounted electric heater.
- Bedroom Two
- 3.76m x 2.72m
- With upvc double window to the rear, power points and wall mounted electric heater.
- Bedroom Three
- 3.58m x 2.7m
- With upvc double window to the side, power points and wall mounted electric heater.
- Bathroom
- With panelled bath, low level wc, wash hand basin, part tiled walls and upvc double glazed frosted window.
- Outside
- The rear garden is fully enclosed with a paved patio leading to a lawned garden with shrub and tree boarders.
Marketed by
Winkworth Bourne
Properties for sale in BourneArrange a Viewing
Fill in the form below to arrange your property viewing.
Mortgage Calculator
Fill in the details below to estimate your monthly repayments:
Approximate monthly repayment:
For more information, please contact Winkworth's mortgage partner, Trinity Financial, on +44 (0)20 7267 9399 and speak to the Trinity team.
Stamp Duty Calculator
Fill in the details below to estimate your stamp duty
The above calculator above is for general interest only and should not be relied upon
Meet the Team
Our team are here to support and advise our customers when they need it most. We understand that buying, selling, letting or renting can be daunting and often emotionally meaningful. We are there, when it matters, to make the journey as stress-free as possible.
See all team members