Skip to main content

MyWinkworth

Sold

Picture No. 12
Picture No. 15
Picture No. 23
Picture No. 10
Picture No. 13
Picture No. 32
Picture No. 21
Picture No. 33
Picture No. 18
Picture No. 19
Picture No. 20
Picture No. 22
Picture No. 09
Picture No. 08
Picture No. 11
Picture No. 24
Picture No. 25
Picture No. 27
Picture No. 26
Picture No. 28
Picture No. 14
Picture No. 29
Picture No. 30
Picture No. 31
Picture No. 34
6/14

Wayside Close, Milford On Sea, Lymington, SO41

3 bedroom house in Milford On Sea

Guide Price £1,000,000 Freehold

  • Bedrooms 3
  • Bathrooms 3
  • Reception rooms 2
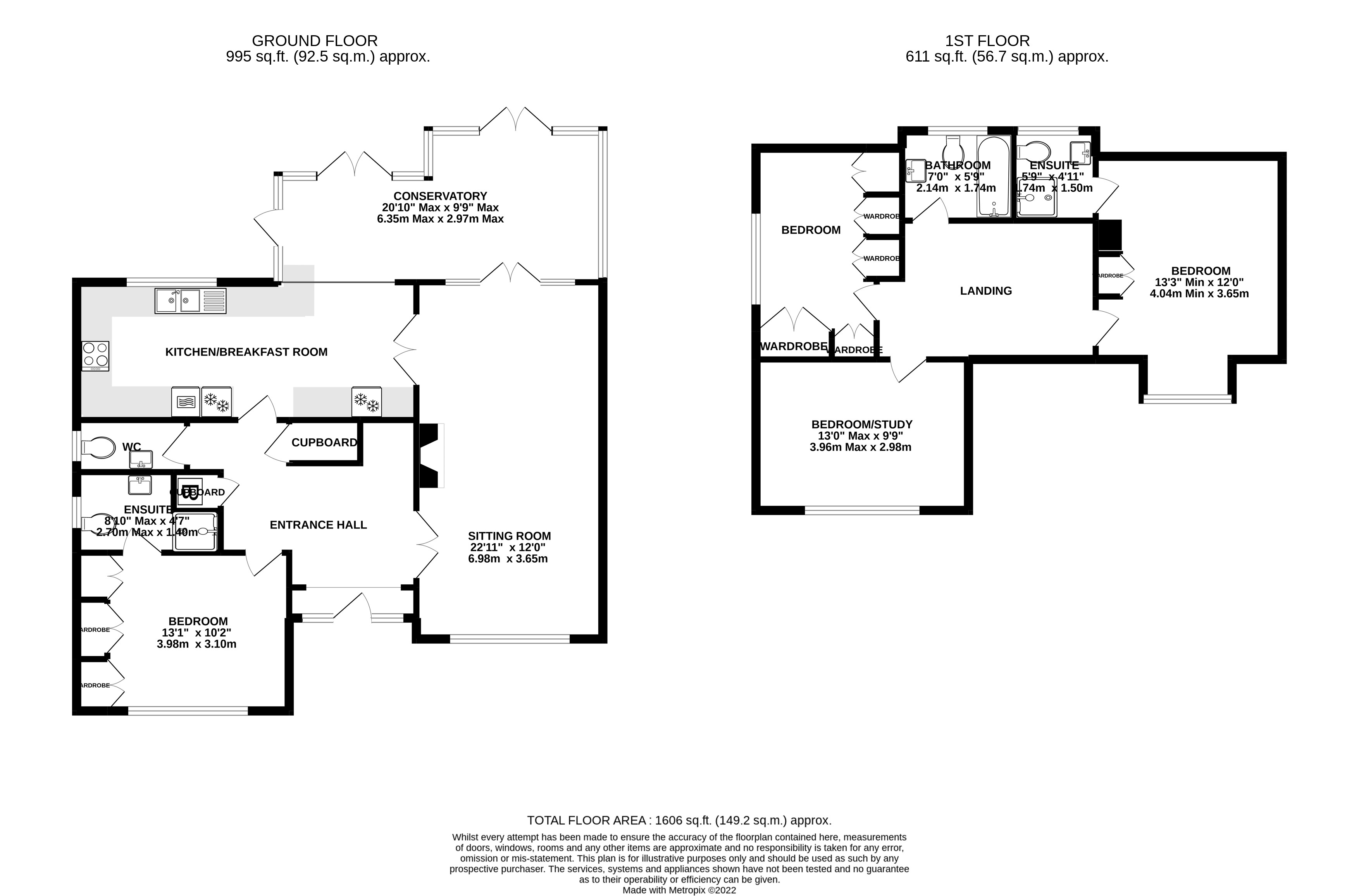
  • Floorplan

PICTURES AND VIDEOS

KEY FEATURES

  • Exclusive Location
  • High Specification
  • Four Bedroom
  • Two En-Suites
  • Beautiful Kitchen/Breakfast Room

KEY INFORMATION

  • Tenure: Freehold

Description

SOLD BEFORE ONLINE MARKETING - Set in an exclusive location close to The Village Centre. This home has great social space and versatile accommodation. The characteristic apex first floor window offers great sunsets.

Covered entrance porch with patio steps and outside courtesy light and obscure double glazed front door with matching side screens provides access to:

Entrance Hallway

Stairs to the first floor landing and accommodation with a single door under stairs storage cupboard, further single door built-in storage cupboard with wall mounted Glow-worm gas heating and hot water boiler. Single radiator.

Doors off to all ground floor accommodation including double doors to the:

Sitting Room

A dual aspect room with double glazed windows to the front and further double glazed double opening French style doors which give access out onto the rear sun lounge. Open fire with marble hearth with two double radiators, wall light points, television aerial points and further double doors which give access to the well fitted kitchen breakfast room.

Kitchen/Breakfast Room

Double glazed window to the rear. Work surface in part to four walls with a range of base and drawer units below and further wall mounted units over. One-and-a-half bowl sink and drainer
inset to the work surface with mono tap above. Four ring Neff hob with extractor fan and light above and matching larder style unit incorporating Neff electric double oven. Integrally fitted fridge freezer and further integrally fitted wine store. Ceramic tiled flooring. A further matching integral fridge freezer (giving the room its second fridge freezer unit) and integrally fitted
dishwasher. Power points.

Sun Lounge/ Dining Room

A plastered archway provides access to the rear sun lounge/dining room with an ‘orangery style’ pitched triple glazed roof with further double glazed doors and windows to both side and rear of the property with two sets of double opening doors giving access out onto the rear garden and patio area. Underfloor heating throughout.

Ground Floor Bedroom

A double bedroom with double glazed window to the front, a single radiator and door to the en-suite shower room.

En-suite Shower Room

Obscure double glazed window to the side with a matching suite comprising low-level WC, vanity wash hand basin with mono tap over and fitted double drawers below. A walk-in shower
cubicle with wall mounted shower. Ladder style radiator. Ceramic tiled flooring with further tiling to all visible wall space.

Ground Floor Cloakroom

Obscure double glazed window to the side with a matching suite comprising low-level WC, vanity wash hand basin with mono tap over and fitted drawer below. Ceramic tiled flooring and a wall
mounted ladder style radiator.

Dog leg stairs from the entrance hallway provide access to the bright and galleried first floor landing.

First Floor Landing

Ceiling light points with a double glazed Velux window to the front and inset loft hatch giving access to the roof space and storage area. Single radiator near to a range of fitted storage cupboards including a double door built-in storage cupboard with adjacent further storage.

Doors off to all first floor accommodation including door to the:

Bedroom One

A double glazed window to the front with a single radiator and double door built-in wardrobe with further single door access to the eaves storage area, which has been mainly boarded. Wall light points with door off to the:

En-suite Shower Room

Obscure double glazed window to the rear with a matching suite comprising low-level WC and wall mounted vanity wash hand basin with mono tap over and drawer pack below. Walkin shower cubicle with wall mounted electric shower. Ladder
style radiator. Ceramic tiled flooring and further tiling to all visible wall space.

Bedroom Three

Apex style plastered ceiling with matching double glazed apex window to the front.

Bedroom Four

Double glazed window to the side with a full range of fitted bedroom furniture including double and single doored wardrobes all with hanging rails and separate storage shelving.

Family Bathroom

Obscure double glazed window to the rear with a matching suite comprising low-level WC, panelled bath with mono tap and shower attachment over, a vanity wash hand basin with mono tap above and fitted double drawer below. Ladder style radiator. Ceramic tiled flooring and further tiling to all visible wall space.

Outside

The front of the property is accessed via a block paved driveway which provides off-road parking and turning for a number of cars, it is enclosed to both front and side by brick built walling with the remainder of the front being laid mainly to lawn while surrounded by earth dug borders containing an array of mature shrubs and bushes.
There is a detached single garage which is accessed via a metal electric up and over door and has the benefit of both power and lighting.

The Rear Garden

The rear garden is a particular feature of the property and is enclosed to both sides and rear by timber fencing. The garden has been landscaped to offer many different areas, with a patio area and path direct to the back of the property, a further lawned area which is again surrounded by earth dug borders containing mature shrubs and bushes. There is a wooden
pergola to the side with coloured stones which provide a delightful eating area. The garden has the benefit of cold water tap and security lighting.

Train Station – 3.7 miles (New Milton)

International Airports –
13 miles (Bournemouth)
19 miles (Southampton)

Isle of Wight – 3.4 miles (Ferry Port)

On request Classical Feng Shui Measurements are available for this property.
Introduction text for the mortgage calculator

Mortgage Calculator

Fill in the details below to estimate your monthly repayments:

Approximate monthly repayment:

For more information, please contact Winkworth's mortgage partner, Trinity Financial, on +44 (0)20 7267 9399 and speak to the Trinity team.

Stamp Duty Calculator

Fill in the details below to estimate your stamp duty

The above calculator above is for general interest only and should not be relied upon

6/14
Picture No. 12
Picture No. 15
Picture No. 23
Picture No. 10
Picture No. 13
Picture No. 32
Picture No. 21
Picture No. 33
Picture No. 18
Picture No. 19
Picture No. 20
Picture No. 22
Picture No. 09
Picture No. 08
Picture No. 11
Picture No. 24
Picture No. 25
Picture No. 27
Picture No. 26
Picture No. 28
Picture No. 14
Picture No. 29
Picture No. 30
Picture No. 31
Picture No. 34

Meet the Team

Our team are here to support and advise our customers when they need it most. We understand that buying, selling, letting or renting can be daunting and often emotionally meaningful. We are there, when it matters, to make the journey as stress-free as possible.

See all team members

Got a question about this property?

This site is protected by reCAPTCHA and the Google Privacy Policy and Terms of Service apply.

More Properties like this

Under Offer

Kivernell Road, Milford on Sea, Lymington, Hampshire, SO41

OIRO £2,000,000 Freehold

Blackbush Road, Milford on Sea, Lymington, Hampshire, SO41

Guide Price £1,625,000 Freehold

Kitwalls Lane, Milford on Sea, Lymington, Hampshire, SO41

£1,495,000 Freehold

Manor Road, Milford On Sea, Lymington, Hampshire, SO41

Guide Price £1,150,000

Under Offer

Marley Mount, Sway, Lymington, Hampshire, SO41

£995,000 Freehold

Video Tour

Church Hill, Milford on Sea, Lymington, Hampshire, SO41

Guide Price £795,000 Share of Freehold

Online Valuations Aren’t Worth The Paper They’re Printed On.

When online valuations don’t give you the whole picture - try Winkworth’s expert service. Get a free property appraisal. Accurate valuations from our local property experts. No obligation to list with Winkworth. Choose a time convenient for you with our online booking system.

Fill in your details and someone will be in touch soon:

You have provisionally booked a valuation for . Please confirm your details below

We don't have date info available for this property, but if you fill in your details below, someone will be in touch to arrange a date soon

Please fill in the required fields below marked with *

This site is protected by reCAPTCHA and the Google Privacy Policy and Terms of Service apply.