Skip to main content

MyWinkworth

New Instruction

Picture No. 63
Picture No. 23
Picture No. 60
Picture No. 25
Picture No. 45
Picture No. 34
Picture No. 54
Picture No. 35
Picture No. 56
Picture No. 61
Picture No. 64
Picture No. 26
Picture No. 07
Picture No. 04
Picture No. 50
Picture No. 19
Picture No. 32
Picture No. 29
Picture No. 36
Picture No. 30
Picture No. 38
6/14

Blackbush Road, Milford on Sea, Lymington, Hampshire, SO41

4 bedroom house in Milford on Sea

£1,625,000 Freehold

  • Bedrooms 4
  • Bathrooms 3
  • Reception rooms 4
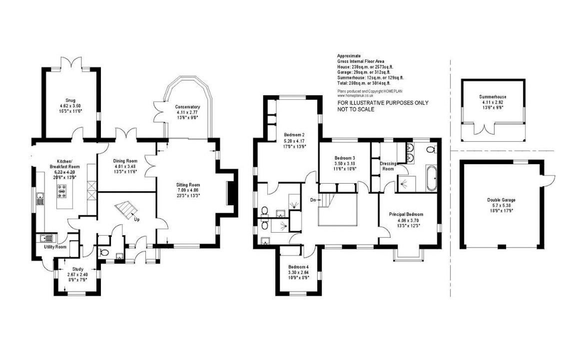
  • Floorplan

PICTURES AND VIDEOS

KEY INFORMATION

  • Tenure: Freehold

Description

A characterful four double-bedroom family home including two principal suites set in one of the most desirable locations in Milford On Sea overlooking woods and nature reserve and a short walk from the sea. An open and spacious home benefiting from high ceilings, built-in wardrobes in all bedrooms, a modern immaculate kitchen with all appliances and central island. Outside are landscaped, easy to maintain gardens and a summer house presently used as a gym. There is a large driveway and a double garage with ample space for cars, bikes and seafaring equipment.

ENTRANCE PORCH:
The porch is enclosed with glazed panels and internal front door which leads into
RECEPTION HALL:
The front door opens into a central hallway, the centrepiece of which is a stunning curving staircase leading to the first floor galleried landing. Doors leading off the hallway access most of the reception areas inviting a circular flow around the ground floor.
CLOAKROOM:
Fitted with low-level WC and wash basin, radiator and ceiling light.
TRIPLE ASPECT SITTING ROOM:
The hallway leads to a generously proportioned sitting room centred around a deep and wide feature fireplace surrounded by bespoke cupboards and shelving and an inset gas flame fire. Glazed doors opening into
CONSERVATORY:
With glazed doors opening directly onto the rear terrace and garden.
DINING ROOM:
Glazed doors from the sitting room lead into the dining room which can also be directly accessed from the kitchen. More double-glazed doors open on to the rear garden and patio eating area.
KITCHEN / BREAKFAST ROOM:
A well-appointed kitchen fitted with an extensive range of base and wall units with quality work surfaces. Integrated appliances include oven, combi-microwave, two fridges, freezer and dishwasher. A central Corian formed island with induction hob and overhead extractor and space for a large breakfast table. At one end of the kitchen is a:
UTILITY ROOM:
With fitted units, sink, plumbing for appliances, wall-mounted gas central heating boiler and a door providing external access. At the other end of the kitchen is
SNUG / FAMILY ROOM:
A bright comfortable room with patio doors accessing the rear garden and eating area.
STUDY/OFFICE:
With telephone and gigabit internet. Accessed from the reception hall this completes the circular flow of the ground floor.
FIRST FLOOR GALLERIED LANDING:
Provides access to all rooms.
PRINCIPAL BEDROOM SUITE 1:
Triple aspect double bedroom having adjoining:
DRESSING ROOM
With wardrobes and dressing table and:
ENSUITE BATHROOM
Fully tiled, WC, bath, large shower, double vanity units, heated towel rail.
PRINCIPAL/ BEDROOM 2:
Triple-aspect with large:
ENSUITE SHOWER ROOM
With marble tiles, wet-room type shower, underfloor heating, single vanity unit, WC, heated towel rail.
BEDROOM THREE:
Double bedroom with glazed window overlooking rear aspect, fitted wardrobes
BEDROOM FOUR:
Double-glazed windows overlooking front aspect, fitted wardrobes.
FAMILY SHOWER ROOM:
Modern suite comprising shower enclosure, WC, vanity basin, heated towel rail, tiled walls and floor.
OUTSIDE:
The property is approached via a gravel/shingle driveway through a gate opening to a large parking area bordered by mature hedging for privacy. Side access leads to landscaped gardens. The rear garden enjoys a sunny south-westerly to westerly aspect, with a paved terrace extending across the rear of the house, ideal for outdoor entertaining. The remainder is laid mainly to lawn with mature shrubs and specimen trees and a further landscaped section includes pergola, planting beds and a pond.
SUMMER HOUSE:
Timber construction with covered veranda, power and light.
DETACHED DOUBLE GARAGE:
with twin electrically operated up and over doors.

Marketed by

Winkworth Milford On Sea

Properties for sale in Milford On Sea

Arrange a Viewing

Fill in the form below to arrange your property viewing.

This site is protected by reCAPTCHA and the Google Privacy Policy and Terms of Service apply.
Introduction text for the mortgage calculator

Mortgage Calculator

Fill in the details below to estimate your monthly repayments:

Approximate monthly repayment:

For more information, please contact Winkworth's mortgage partner, Trinity Financial, on +44 (0)20 7267 9399 and speak to the Trinity team.

Stamp Duty Calculator

Fill in the details below to estimate your stamp duty

The above calculator above is for general interest only and should not be relied upon

6/14
Picture No. 63
Picture No. 23
Picture No. 60
Picture No. 25
Picture No. 45
Picture No. 34
Picture No. 54
Picture No. 35
Picture No. 56
Picture No. 61
Picture No. 64
Picture No. 26
Picture No. 07
Picture No. 04
Picture No. 50
Picture No. 19
Picture No. 32
Picture No. 29
Picture No. 36
Picture No. 30
Picture No. 38

Meet the Team

Our team are here to support and advise our customers when they need it most. We understand that buying, selling, letting or renting can be daunting and often emotionally meaningful. We are there, when it matters, to make the journey as stress-free as possible.

See all team members

Got a question about this property?

This site is protected by reCAPTCHA and the Google Privacy Policy and Terms of Service apply.

More Properties like this

Under Offer

Kivernell Road, Milford on Sea, Lymington, Hampshire, SO41

OIRO £2,000,000 Freehold

Kitwalls Lane, Milford on Sea, Lymington, Hampshire, SO41

£1,495,000 Freehold

Manor Road, Milford On Sea, Lymington, Hampshire, SO41

Guide Price £1,150,000

Under Offer

Marley Mount, Sway, Lymington, Hampshire, SO41

£995,000 Freehold

Video Tour

Church Hill, Milford on Sea, Lymington, Hampshire, SO41

Guide Price £795,000 Share of Freehold

Kivernell Place, Milford on Sea, Lymington, Hampshire, SO41

OIRO £795,000 Freehold

Online Valuations Aren’t Worth The Paper They’re Printed On.

When online valuations don’t give you the whole picture - try Winkworth’s expert service. Get a free property appraisal. Accurate valuations from our local property experts. No obligation to list with Winkworth. Choose a time convenient for you with our online booking system.

Fill in your details and someone will be in touch soon:

You have provisionally booked a valuation for . Please confirm your details below

We don't have date info available for this property, but if you fill in your details below, someone will be in touch to arrange a date soon

Please fill in the required fields below marked with *

This site is protected by reCAPTCHA and the Google Privacy Policy and Terms of Service apply.