Victoria Road, Dartmouth, Devon, TQ6
3 bedroom maisonette in Dartmouth
£165,000 Leasehold
- 3
- 1
- 1
-
663 sq ft
61 sq m -
PICTURES AND VIDEOS













KEY FEATURES
- Entrance Hall. Lounge/Dining Room.
- Kitchen. 3 Bedrooms. Bathroom.
- Sun Terrace. Parking. UPVC Double Glazing.
- Gas Fired Central Heating.
KEY INFORMATION
- Tenure: Leasehold
- Lease Length: 970 yrs left
- Service charge: £1560.00 per annum
- Council Tax Band: A
- Local Authority: South Hams
Description
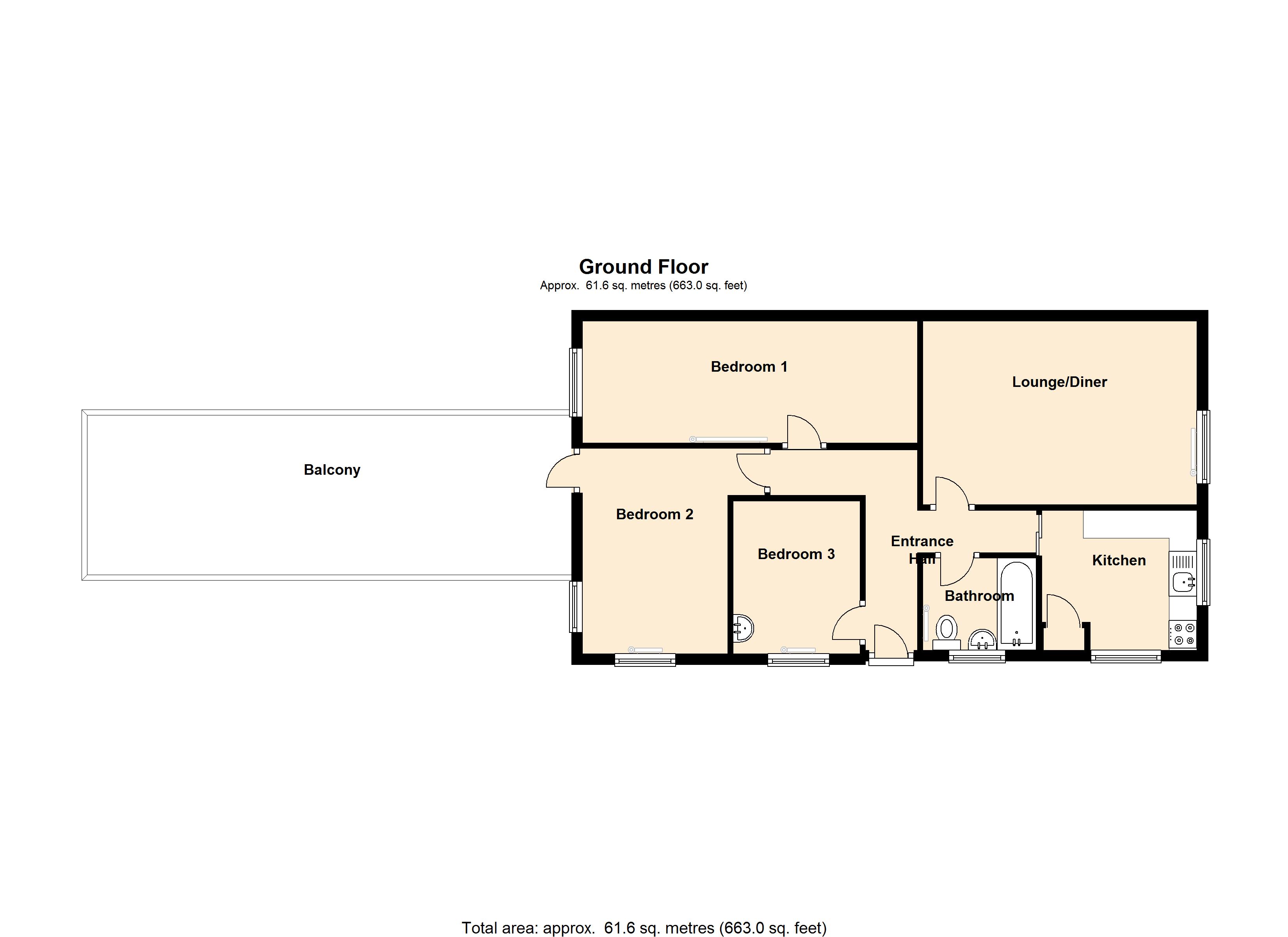
A particularly spacious top floor apartment in Hillside Court a short distance from the town centre having the benefit of three bedrooms, a parking space and a private sun terrace which enjoys views over the town to the River Dart. The accommodation has gas fired central heating, UPVC double glazing and as well as the main entrance from Victoria Road there is a rear entrance which is very handy for dropping off luggage and shopping etc. An early viewing of this property is strongly recommended.
Rooms and Accommodations
- THE ACCOMMODATION COMPRISES:
- (All Measurements Approx)
Footbridge to ENTRANCE DOOR.
- ENTRANCE HALL:
- With radiator, ceiling light point.
- LOUNGE/DINING ROOM: 16' 1
- (4.90m) x 10' 10" (3.30m) Large picture window enjoying views over the adjoining rooftops to the fielded hillside beyond. TV aerial point, shelved display divider, ceiling light point, radiator.
- FITTED KITCHEN:
- 2.72m x 2.44m
- Range of matching base units with stainless steel sink, drainer and mixer tap. Space and point for electric cooker, space for fridge. BOILER CUPBOARD: Housing a ‘Vaillant' gas fired boiler providing domestic hot water and central heating. Radiator. Large picture windows to rear and side enjoying views to the fielded hillside. Ceiling light point.
- BEDROOM 1:
- 6.02m x 2.24m
- Radiator, ceiling light point, window overlooking the terrace. Built in cupboard.
- BEDROOM 2:
- 3.45m x 2.62m
- plus door recess Windows to rear and side enjoying some views over the rooftops of Dartmouth to the Dart Valley. Door providing access onto the terrace. Ceiling light point, radiator.
- BEDROOM 3:
- 2.64m x 2.26m
- Wash hand basin, window to rear, radiator, ceiling light point.
- OUTSIDE:
- A good sized paved private terrace enjoying fabulous views over the rooftops of Dartmouth to the River Dart and Dart Valley. Parking space.
- COUNCIL TAX BAND: A
- EPC RATING: D
- POSTCODE: TQ6 9EG
- LEASE:
- 999 YEARS FROM JANUARY 1997
- SERVICE CHARGE:
- Approximately £1560 for 2025
Utilities
- Electricity Supply: Mains Supply
- Water Supply: Mains Supply
- Sewerage: Mains Supply
Marketed by
Winkworth Dartmouth
Properties for sale in DartmouthArrange a Viewing
Fill in the form below to arrange your property viewing.
Mortgage Calculator
Fill in the details below to estimate your monthly repayments:
Approximate monthly repayment:
For more information, please contact Winkworth's mortgage partner, Trinity Financial, on +44 (0)20 7267 9399 and speak to the Trinity team.
Stamp Duty Calculator
Fill in the details below to estimate your stamp duty
The above calculator above is for general interest only and should not be relied upon
Meet the Team
Our highly successful team has a wealth of experience and knowledge which is second to none to ensure that your moving experience is as pain free as possible. Our Grade II listed double fronted premisis opposite the market in Dartmouth is a perfect showcase for your property. Please come and talk to us about your property requirements.
See all team members