Skip to main content

MyWinkworth

New Instruction

External
Kitchen
Kitchen
Reception
Reception
Terrace
Bedroom One
Bedroom Two
Bedroom Three
Bathroom
Garden
Garden
6/14

Upland Road, East Dulwich, London, SE22

3 bedroom flat/apartment

£625,000 Share of Freehold

  • Bedrooms 3
  • Bathrooms 1
  • Reception rooms 1
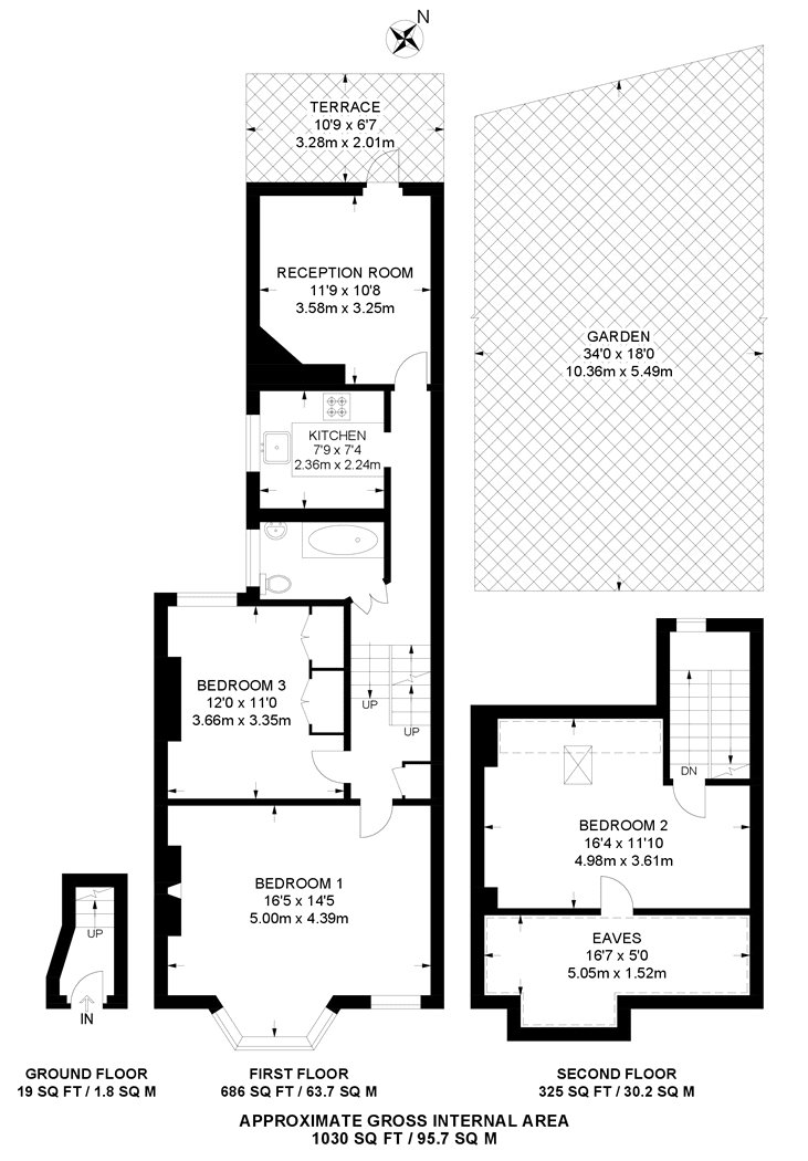
  • Floorplan

PICTURES AND VIDEOS

KEY FEATURES

  • Superb Location
  • Potential to extend
  • Currently arranged as two flats
  • Close to transport links
  • Wonderful local schools

KEY INFORMATION

  • Tenure: Share of Freehold
  • Council Tax Band: C
  • Local Authority: London Borough Of Southwark

Description

Set across the upper floors of an attractive period property on Upland Road, this generously proportioned three-bedroom flat offers bright, well-arranged accommodation with excellent flexibility for modern living.



The property features a well-sized reception room with space for both living and dining, opening onto a private terrace which provides a pleasant extension of the living space and an ideal spot for outdoor dining or relaxing. A separate fitted kitchen sits just off the reception room and is arranged for everyday practicality.

Three well-proportioned bedrooms are arranged across the upper levels, providing excellent versatility for families, sharers or those working from home, while a family bathroom completes the internal accommodation. The layout offers good separation between living and sleeping space, along with a strong sense of privacy throughout.

Upland Road is a popular and well-connected residential address, ideally placed for the independent shops, cafés and restaurants of Lordship Lane. East Dulwich and Denmark Hill stations are both within easy reach, offering frequent services into central London.

Offered to the market chain free, this is an excellent opportunity to acquire a substantial three-bedroom home in one of SE22’s most sought-after locations.

AGENT NOTES:

Mobile phone coverage:
EE (Good outdoor and in-home)
O2 (Good outdoor and in-home)
Three (Good outdoor and in-home)
Vodaphone (Good outdoor and in-home)

(Potential purchasers are advised to seek their own advice as to the suitability of the services and mobile phone coverage, the above is for guidance only.)

Available broadband: Ultrafast Broadband: FTTP / Fibre to the Premises / Full fibre / Gigabit fibre
Superfast Broadband: FTTC / Fibre to the Cabinet / Superfast / SoGEA
Standard Broadband: ADSL / Asymmetric Digital Subscriber Line / Copper broadband
Networks in your area: Virgin media, Openreach
(Information supplied by Ofcom)

Flood Risk: Very low risk of surface water flooding / Very low risk river and sea flooding (Information supplied by gov.uk and purchasers are advised to seek their own legal advice)

Tenure: Share of Freehold

Local Council: Southwark / Tax Band: C
EPC Rating: C/D

Floor plan: Whilst every attempt has been made to ensure accuracy, all measurements are approximate and not to scale. The floor plan is for illustrative purposes only.

Marketed by

Winkworth Dulwich

Properties for sale in Dulwich

Arrange a Viewing

Fill in the form below to arrange your property viewing.

This site is protected by reCAPTCHA and the Google Privacy Policy and Terms of Service apply.
Introduction text for the mortgage calculator

Mortgage Calculator

Fill in the details below to estimate your monthly repayments:

Approximate monthly repayment:

For more information, please contact Winkworth's mortgage partner, Trinity Financial, on +44 (0)20 7267 9399 and speak to the Trinity team.

Stamp Duty Calculator

Fill in the details below to estimate your stamp duty

The above calculator above is for general interest only and should not be relied upon

6/14
External
Kitchen
Kitchen
Reception
Reception
Terrace
Bedroom One
Bedroom Two
Bedroom Three
Bathroom
Garden
Garden

Meet the Team

Our team at Winkworth Dulwich Estate Agents are here to support and advise our customers when they need it most. We understand that buying, selling, letting or renting can be daunting and often emotionally meaningful. We are there, when it matters, to make the journey as stress-free as possible.

See all team members

Got a question about this property?

This site is protected by reCAPTCHA and the Google Privacy Policy and Terms of Service apply.

More Properties like this

Under Offer

Marmora Road, East Dulwich, London, SE22

£825,000 Leasehold

Under Offer

Dunstans Road, East Dulwich, London, SE22

Offers in excess of £800,000 Share of Freehold

Under Offer

Lordship Lane, East Dulwich, London, SE22

Offers in excess of £800,000 Share of Freehold

Under Offer

Oakhurst Grove, East Dulwich, London, SE22

£799,950 Share of Freehold

New Instruction

East Dulwich Road, East Dulwich, London, SE22

£750,000 Share of Freehold

Under Offer

Marmora Road, London, SE22

£750,000 Share of Freehold

Online Valuations Aren’t Worth The Paper They’re Printed On.

When online valuations don’t give you the whole picture - try Winkworth’s expert service. Get a free property appraisal. Accurate valuations from our local property experts. No obligation to list with Winkworth. Choose a time convenient for you with our online booking system.

Fill in your details and someone will be in touch soon:

You have provisionally booked a valuation for . Please confirm your details below

We don't have date info available for this property, but if you fill in your details below, someone will be in touch to arrange a date soon

Please fill in the required fields below marked with *

This site is protected by reCAPTCHA and the Google Privacy Policy and Terms of Service apply.