Skip to main content

MyWinkworth

New Instruction

Reception
Reception
Reception
Kitchen
Garden
Garden
Garden
Bedroom One
Bedroom One
Bedroom Two
Bathroom
Bedroom Three
External
6/14

Underhill Road, East Dulwich, London, SE22

3 bedroom flat/apartment

Offers in excess of £850,000 Share of Freehold

  • Bedrooms 3
  • Bathrooms 1
  • Reception rooms 1
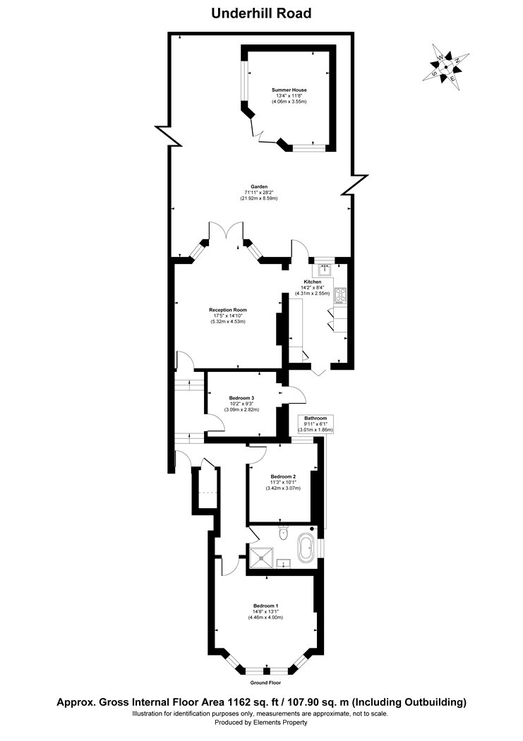
  • Dimensions 1162 sq ft
    107 sq m
  • Floorplan

PICTURES AND VIDEOS

KEY FEATURES

  • Spacious three-bedroom ground floor flat with a large private rear garden
  • Impressive reception room with direct garden access, ideal for entertaining
  • Separate fitted kitchen and well-appointed family bathroom
  • Prime Underhill Road location close to Lordship Lane, Peckham Rye Park and excellent transport links

KEY INFORMATION

  • Tenure: Share of Freehold
  • Lease Length: 125 yrs left
  • Council Tax Band: D
  • Local Authority: London Borough Of Southwark

Description

This spacious three-bedroom ground floor flat is set on the ever-popular Underhill Road in the heart of SE22, offering generous proportions throughout and a wonderful private garden.

This substantial three-bedroom ground floor flat is set along the ever-popular Underhill Road in the heart of SE22, offering generous proportions throughout, attractive period features and a wonderful private garden. Retaining much of its original charm, the property benefits from high ceilings, large windows and character detailing that enhance the sense of space and light.

At the heart of the home is an impressive, expansive reception room providing excellent space for both relaxing and entertaining, with direct access out to the garden. The separate fitted kitchen is well arranged for everyday practicality and sits conveniently off the main living area.

There are three well-proportioned bedrooms, including a particularly generous principal bedroom to the front, along with two further versatile rooms ideal for children, guests or working from home. A well-appointed family bathroom and additional shower facilities further enhance the functionality of the layout.

The private rear garden is a real highlight, offering a fantastic outdoor retreat with ample space for dining, entertaining and family use.

Underhill Road is well placed for both East Dulwich and Forest Hill, with a variety of independent shops, cafés and everyday amenities within easy reach. Excellent bus connections serve the surrounding areas, and rail services from nearby East Dulwich provide direct links into London Bridge. The property is also close to the wide open spaces of and , making it an ideal setting for families and professionals alike.

Offering the scale and flexibility of a much larger home, this flat presents an excellent opportunity for buyers seeking a spacious canvas with character

Mobile phone coverage:
EE (Good outdoor and in-home)
Three (Good outdoor and in-home)
O2 (Good outdoor)
Vodaphone (Good outdoor and in-home)

(Potential purchasers are advised to seek their own advice as to the suitability of the services and mobile phone coverage, the above is for guidance only.)

Available broadband: Ultrafast Broadband: FTTP / Fibre to the Premises / Full fibre / Gigabit fibre
Networks in your area: Virgin media, Openreach
(Information supplied by Ofcom)

Flood Risk: Very low risk of surface water flooding / Very low risk river and sea flooding (Information supplied by gov.uk and purchasers are advised to seek their own legal advice)

Tenure: Share Of Freehold

Local Council: Southwark / Tax Band: D
EPC Rating: C

Floor plan: Whilst every attempt has been made to ensure accuracy, all measurements are approximate and not to scale. The floor plan is for illustrative purposes only.

Marketed by

Winkworth Dulwich

Properties for sale in Dulwich

Arrange a Viewing

Fill in the form below to arrange your property viewing.

This site is protected by reCAPTCHA and the Google Privacy Policy and Terms of Service apply.
Introduction text for the mortgage calculator

Mortgage Calculator

Fill in the details below to estimate your monthly repayments:

Approximate monthly repayment:

For more information, please contact Winkworth's mortgage partner, Trinity Financial, on +44 (0)20 7267 9399 and speak to the Trinity team.

Stamp Duty Calculator

Fill in the details below to estimate your stamp duty

The above calculator above is for general interest only and should not be relied upon

6/14
Reception
Reception
Reception
Kitchen
Garden
Garden
Garden
Bedroom One
Bedroom One
Bedroom Two
Bathroom
Bedroom Three
External

Meet the Team

Our team at Winkworth Dulwich Estate Agents are here to support and advise our customers when they need it most. We understand that buying, selling, letting or renting can be daunting and often emotionally meaningful. We are there, when it matters, to make the journey as stress-free as possible.

See all team members

Got a question about this property?

This site is protected by reCAPTCHA and the Google Privacy Policy and Terms of Service apply.

More Properties like this

Under Offer

Marmora Road, East Dulwich, London, SE22

£825,000 Leasehold

Under Offer

Dunstans Road, East Dulwich, London, SE22

Offers in excess of £800,000 Share of Freehold

Under Offer

Lordship Lane, East Dulwich, London, SE22

Offers in excess of £800,000 Share of Freehold

Lordship Lane, East Dulwich, London, SE22

Offers in excess of £800,000 Share of Freehold

New Instruction

East Dulwich Road, East Dulwich, London, SE22

£750,000 Share of Freehold

Under Offer

Marmora Road, London, SE22

£750,000 Share of Freehold

Online Valuations Aren’t Worth The Paper They’re Printed On.

When online valuations don’t give you the whole picture - try Winkworth’s expert service. Get a free property appraisal. Accurate valuations from our local property experts. No obligation to list with Winkworth. Choose a time convenient for you with our online booking system.

Fill in your details and someone will be in touch soon:

You have provisionally booked a valuation for . Please confirm your details below

We don't have date info available for this property, but if you fill in your details below, someone will be in touch to arrange a date soon

Please fill in the required fields below marked with *

This site is protected by reCAPTCHA and the Google Privacy Policy and Terms of Service apply.