Skip to main content

MyWinkworth

Sold

Picture No. 06
Picture No. 05
Picture No. 13
Picture No. 08
Picture No. 11
Picture No. 04
Picture No. 03
Picture No. 09
Picture No. 10
Picture No. 12
Picture No. 14
Picture No. 07
6/14

Ufford Street, London, SE1

2 bedroom house in London

£935,000 Freehold

  • Bedrooms 2
  • Bathrooms 1
  • Reception rooms 1
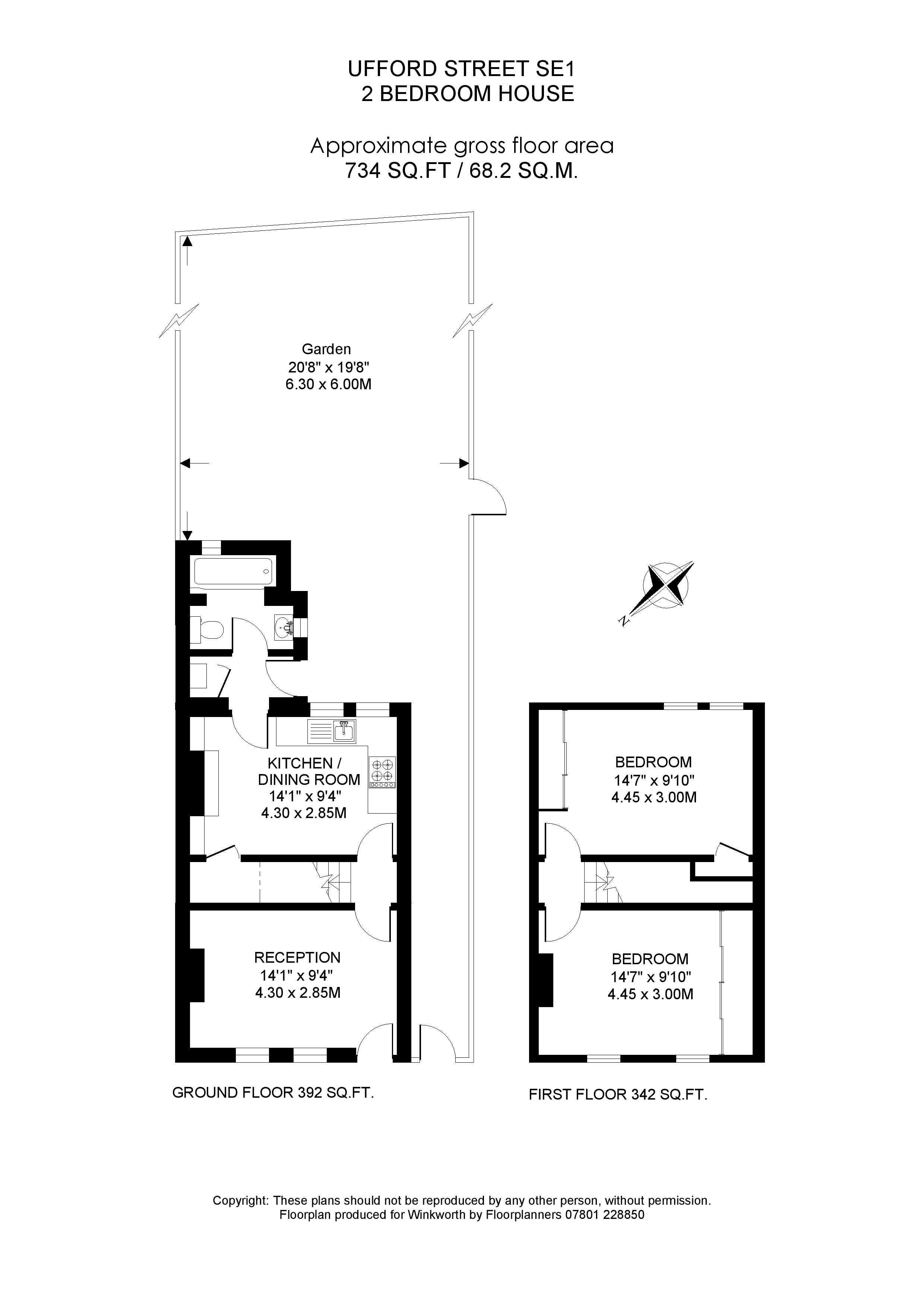
  • Dimensions 734 sq ft
    68 sq m
  • Floorplan

PICTURES AND VIDEOS

KEY INFORMATION

  • Tenure: Freehold
  • Council Tax Band: E

Description

An opportunity to acquire a two bedroom semi-detached house in need of renovation and ideally located between Southwark and Waterloo. EPC Rating - D.



The property requires refurbishment throughout and is ideal for anyone looking to put their own stamp on a house in the area.

Enter the reception room, where there are two double glazed wooden sash windows to the front. There is a dining room at the back of the house with a kitchen in the rear addition. You can access the garden via the dining room or kitchen.

The main difference between this house and many others on the road is that it is semi-detached and has side access to the garden at the rear. This means that the garden is wider than most others on the road.

The first floor is arranged as two double bedrooms divided by the staircase and ample loft storage above. There is also a bathroom on this floor.

Freehold

Council Tax Band E.

UTILITIES
Electricity – mains connected
Water – mains connected
Heating – mains connected
Sewerage – mains connected
Broadband – superfast broadband

PARKING
Residents parking permit available from the Lambeth Council.

Location

Ufford Street is just south of The Cut, between Blackfriars and Waterloo Road, (situated within the Congestion Zone).
Introduction text for the mortgage calculator

Mortgage Calculator

Fill in the details below to estimate your monthly repayments:

Approximate monthly repayment:

For more information, please contact Winkworth's mortgage partner, Trinity Financial, on +44 (0)20 7267 9399 and speak to the Trinity team.

Stamp Duty Calculator

Fill in the details below to estimate your stamp duty

The above calculator above is for general interest only and should not be relied upon

6/14
Picture No. 06
Picture No. 05
Picture No. 13
Picture No. 08
Picture No. 11
Picture No. 04
Picture No. 03
Picture No. 09
Picture No. 10
Picture No. 12
Picture No. 14
Picture No. 07

Meet the Team

Our team at Winkworth Kennington Estate Agents are here to support and advise our customers when they need it most. We understand that buying, selling, letting or renting can be daunting and often emotionally meaningful. We are there, when it matters, to make the journey as stress-free as possible.

See all team members

Got a question about this property?

This site is protected by reCAPTCHA and the Google Privacy Policy and Terms of Service apply.

More Properties like this

Video Tour

Stockwell Park Road, London, SW9

£1,695,000 Freehold

Video Tour

Under Offer

Kennington Road, Kennington, London, SE11

£1,680,000 Freehold

Video Tour

Under Offer

Kennington Park Road, London, SE11

£1,650,000 Freehold

Video Tour

Lambeth Road, London, SE1

Offers in excess of £1,600,000 Freehold

Video Tour

Under Offer

Gladstone Street, London, SE1

£1,425,000 Freehold

Video Tour

Under Offer

Stockwell Park Road, London, SW9

Offers in excess of £1,295,000 Freehold

Online Valuations Aren’t Worth The Paper They’re Printed On.

When online valuations don’t give you the whole picture - try Winkworth’s expert service. Get a free property appraisal. Accurate valuations from our local property experts. No obligation to list with Winkworth. Choose a time convenient for you with our online booking system.

Fill in your details and someone will be in touch soon:

You have provisionally booked a valuation for . Please confirm your details below

We don't have date info available for this property, but if you fill in your details below, someone will be in touch to arrange a date soon

Please fill in the required fields below marked with *

This site is protected by reCAPTCHA and the Google Privacy Policy and Terms of Service apply.