Skip to main content

MyWinkworth

Sold

Open-Plan Living
Exterior Front
Principal Bedroom
Bathroom
Bedroom Two
Kitchen Detail
Open-Plan Living
Principal Bedroom
Dining Detail
6/14

Tulse Hill, London, SW2

2 bedroom flat/apartment in London

£375,000 Leasehold

  • Bedrooms 2
  • Bathrooms 1
  • Reception rooms 1
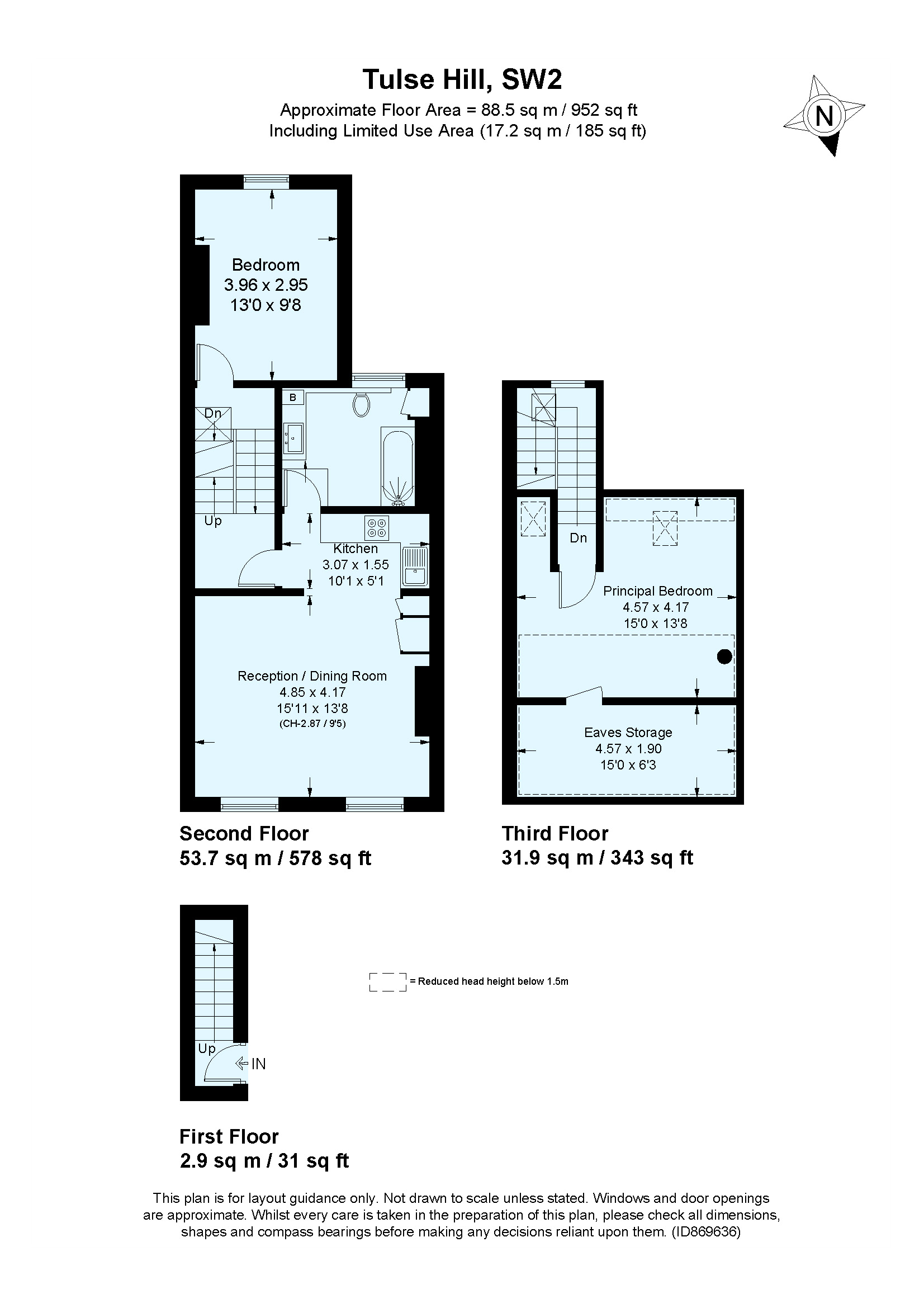
  • Floorplan

PICTURES AND VIDEOS

KEY FEATURES

  • Top Floor (Second/Third Floor) Apartment
  • Open-Plan Living
  • Reception/Dining Room/Kitchen
  • Two Double Bedrooms
  • Modern Bathroom
  • Ample Storage
  • Long Lease
  • Sole Agent

KEY INFORMATION

  • Tenure: Leasehold
  • Lease Length: 98 yrs left
  • Council Tax Band: C
  • Local Authority: Lambeth

Description

A good opportunity to purchase this top floor two double bedroom apartment ideally located for the amenities and transport links of Tulse Hill.

Available exclusively through Winkworth, we are delighted to present this bright and spacious two double bedroom apartment set above a commercial premises. The accommodation briefly comprises of a large open-plan kitchen/reception/diner to front with two large double glazed windows. The kitchen area is equipped with sleek white fitted wall and base units, integrated appliances and an electric hob and oven. located to the rear is a spacious bathroom with a shower over the bath, a wash hand basin and a WC. There is also a double bedroom located off the half landing. Leading upstairs, there is an additional double bedroom with two Velux windows and eaved storage.
The property is in good decorative order throughout and benefits from double glazing throughout and a long lease.

Location

Tulse Hill
Introduction text for the mortgage calculator

Mortgage Calculator

Fill in the details below to estimate your monthly repayments:

Approximate monthly repayment:

For more information, please contact Winkworth's mortgage partner, Trinity Financial, on +44 (0)20 7267 9399 and speak to the Trinity team.

Stamp Duty Calculator

Fill in the details below to estimate your stamp duty

The above calculator above is for general interest only and should not be relied upon

6/14
Open-Plan Living
Exterior Front
Principal Bedroom
Bathroom
Bedroom Two
Kitchen Detail
Open-Plan Living
Principal Bedroom
Dining Detail

Meet the Team

Our team at Winkworth Herne Hill Estate Agents are here to support and advise our customers when they need it most. We understand that buying, selling, letting or renting can be daunting and often emotionally meaningful. We are there, when it matters, to make the journey as stress-free as possible.

See all team members

Got a question about this property?

This site is protected by reCAPTCHA and the Google Privacy Policy and Terms of Service apply.

More Properties like this

Ferndene Road, London, SE24

Offers in excess of £1,000,000 Share of Freehold

Thurlow Park Road, London, SE21

Offers in excess of £700,000 Leasehold

Deronda Road, London, SE24

Offers in excess of £700,000 Leasehold

Holmewood Gardens, London, SW2

Offers in excess of £700,000 Leasehold

Lambert Road, London, SW2

Offers in excess of £675,000 Share of Freehold

Lowden Road, London, SE24

Offers in excess of £650,000 Freehold

Online Valuations Aren’t Worth The Paper They’re Printed On.

When online valuations don’t give you the whole picture - try Winkworth’s expert service. Get a free property appraisal. Accurate valuations from our local property experts. No obligation to list with Winkworth. Choose a time convenient for you with our online booking system.

Fill in your details and someone will be in touch soon:

You have provisionally booked a valuation for . Please confirm your details below

We don't have date info available for this property, but if you fill in your details below, someone will be in touch to arrange a date soon

Please fill in the required fields below marked with *

This site is protected by reCAPTCHA and the Google Privacy Policy and Terms of Service apply.