New Instruction
Townsend Road, London, N15
1 bedroom flat/apartment in London
£300,000 Leasehold
- 1
- 1
- 1
-
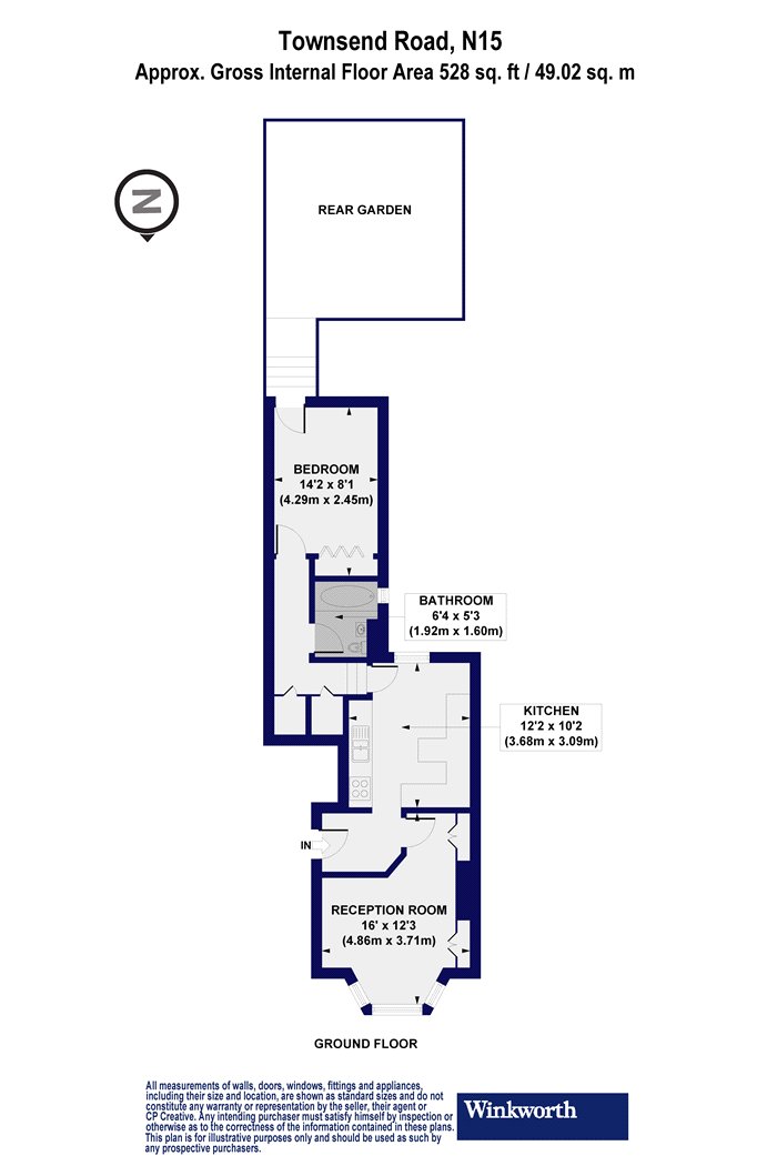
528 sq ft
49 sq m -
PICTURES AND VIDEOS












KEY FEATURES
- One Bedroom
- Raised Ground Floor
- Living Room
- Spacious Kitchen
- South Facing Garden
- Close To Victoria Line Station
- Chain Free
KEY INFORMATION
- Tenure: Leasehold
Description
Chain Free. Sole Agent.
Tucked away just a short walk from Seven Sisters, Victoria Line Underground Station, this one-bedroom garden flat offers a rare opportunity to create a truly special home. Occupying the raised ground floor of an attractive Edwardian villa, the property retains plenty of period character and benefits from direct access to a south-facing garden.
Although the flat would benefit from modernisation, it offers a solid foundation for transformation, ideal for buyers looking to put their own stamp on a property.
Upon entering, you’re welcomed by a bright bay-fronted reception room with high ceilings and original features. The separate kitchen, located at the rear, opens directly onto a generous south-facing garden, perfect for outdoor dining and summer entertaining once updated.
The double bedroom enjoys a peaceful outlook over the garden, while the bathroom offers scope for improvement and reconfiguration.
With thoughtful refurbishment, this flat could be transformed into a stylish and comfortable home blending period charm with modern living.
Located on a sought-after residential street just 0.2 miles from Seven Sisters Underground (Victoria Line, Zone 3) and National Rail services with direct links to Liverpool Street, the area also benefits from South Tottenham Overground and a range of vibrant local amenities, from independent cafés and bars to green open spaces such as Markfield Park, Chestnuts Park, and Downhills Park.
This is a fantastic opportunity for first-time buyers, investors, or those seeking a project in one of North London’s most rapidly evolving neighbourhoods.
Please contact the Sales department at Winkworth Harringay office to arrange an appointment to view 020 8800 [email protected]
Winkworth.co.uk
Your local independently owned property agency with an extensive network of London offices.
Est 1835
Follow us on Instagram - @winkworthharringay
Marketed by
Winkworth Harringay
Properties for sale in HarringayArrange a Viewing
Fill in the form below to arrange your property viewing.
Mortgage Calculator
Fill in the details below to estimate your monthly repayments:
Approximate monthly repayment:
For more information, please contact Winkworth's mortgage partner, Trinity Financial, on +44 (0)20 7267 9399 and speak to the Trinity team.
Stamp Duty Calculator
Fill in the details below to estimate your stamp duty
The above calculator above is for general interest only and should not be relied upon
Meet the Team
At Winkworth Harringay Estate Agents, we have a comprehensive team of knowledgeable and personable property experts who are excited about the local area. So whether you're buying, selling, renting or letting or simply need some advice, pop into our office on Green Lanes for the experience and the local knowledge you need.
See all team members