Skip to main content

MyWinkworth

New Instruction

Picture No. 34
Picture No. 40
Picture No. 44
Picture No. 46
Picture No. 39
Picture No. 41
Picture No. 42
Picture No. 43
Picture No. 45
Picture No. 38
Picture No. 30
Picture No. 08
Picture No. 09
Picture No. 28
Picture No. 29
Picture No. 18
Picture No. 15
Picture No. 47
Picture No. 48
Picture No. 16
Picture No. 17
Picture No. 31
Picture No. 22
Picture No. 23
Picture No. 35
6/14

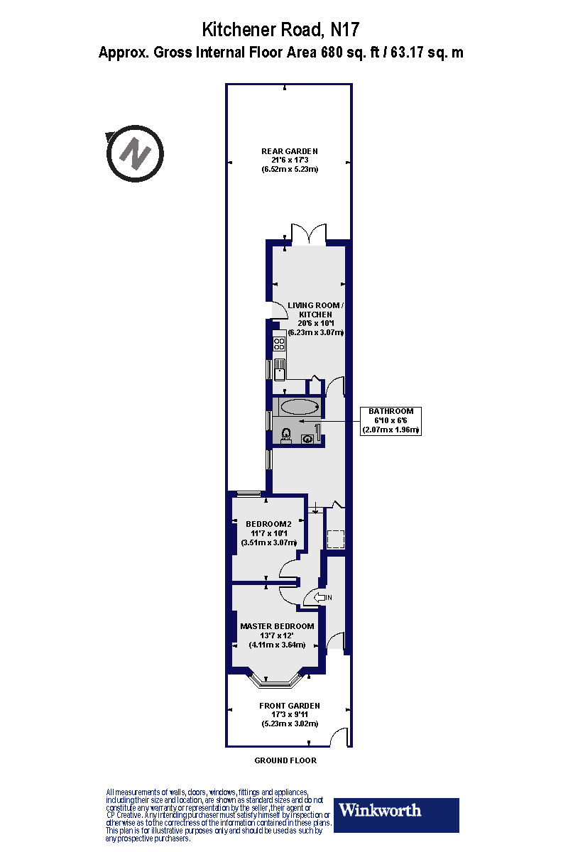
Kitchener Road, London, N17

2 bedroom flat/apartment in London

Guide Price £525,000 Share of Freehold

  • Bedrooms 2
  • Bathrooms 1
  • Reception rooms 1
  • Floorplan

PICTURES AND VIDEOS

KEY FEATURES

  • • Ground floor Victorian conversion
  • • Two double bedrooms and one bathroom
  • • Study/office space
  • • Open plan kitchen/dining/ living area
  • • Private rear garden
  • • Share of freehold
  • • Near Downhills Park and Lordship Recreation Ground
  • • Closest station: Seven Sisters (0.5miles)
  • • 702 sq. ft / 65.2 sq. m
  • • Being sold chain-free

KEY INFORMATION

  • Tenure: Share of Freehold
  • Lease Length: 988 yrs left

Description

Nestled on a quiet, one-way street in South Tottenham is this beautifully assembled, two-bedroom ground floor Victorian conversion with access to private landscaped garden.

Thoughtfully redesigned, extended and upgraded, this beautiful home celebrates its original character while introducing a refined, contemporary interior. Immaculately finished with clean lines, neutral tones and elegant detailing, it offers a sophisticated yet welcoming space, ideal as a standout first home.

This property offers approximately 702 sq. ft. (65.2 sq. m) with two double bedrooms, a separate study, and modern finishes throughout.

To the rear, a stunning 20.6 ft. open-plan kitchen, living and dining area forms the heart of the home. Large windows flood the space with natural light, while French doors open directly onto the garden. Tall ceilings and classic wooden floorboards enhance the sense of scale and character. There are two generous double bedrooms, both featuring exposed brickwork and leafy outlooks, creating a strong connection to the outdoors. The bathroom is beautifully finished, and the flat is complemented by additional storage and a practical study area—perfect for home working.

Kitchener Road, N17, is superbly located for both green space and connectivity. Downhills Park and Lordship Recreation Ground are just moments away, offering landscaped gardens, tennis courts and open green spaces, while Walthamstow Wetlands is within easy walking or cycling distance. Seven Sisters station (Victoria line and Overground) is within easy reach on foot, with Tottenham Hale providing fast links to Stansted Airport, Stratford and London Liverpool Street.

For a village feel, you’re perfectly placed between Stoke Newington and Clapton to the east, and Crouch End and Highgate to the north. Locally, there’s no shortage of great spots: True Craft and Loven for pizza, the Palm Public House just five minutes away. Pasero on West Green Road is an excellent wine bar and deli, while With Milk and Perkyns Café are go-to spots for coffee and brunch.


Please contact the Sales department at Winkworth Harringay office to arrange an appointment to view 020 8800 [email protected]


Winkworth.co.uk

Your local independently owned property agency with an extensive network of London offices.


Est 1835

Follow us on Instagram - @winkworthharringay

Marketed by

Winkworth Harringay

Properties for sale in Harringay

Arrange a Viewing

Fill in the form below to arrange your property viewing.

This site is protected by reCAPTCHA and the Google Privacy Policy and Terms of Service apply.
Introduction text for the mortgage calculator

Mortgage Calculator

Fill in the details below to estimate your monthly repayments:

Approximate monthly repayment:

For more information, please contact Winkworth's mortgage partner, Trinity Financial, on +44 (0)20 7267 9399 and speak to the Trinity team.

Stamp Duty Calculator

Fill in the details below to estimate your stamp duty

The above calculator above is for general interest only and should not be relied upon

6/14
Picture No. 34
Picture No. 40
Picture No. 44
Picture No. 46
Picture No. 39
Picture No. 41
Picture No. 42
Picture No. 43
Picture No. 45
Picture No. 38
Picture No. 30
Picture No. 08
Picture No. 09
Picture No. 28
Picture No. 29
Picture No. 18
Picture No. 15
Picture No. 47
Picture No. 48
Picture No. 16
Picture No. 17
Picture No. 31
Picture No. 22
Picture No. 23
Picture No. 35

Meet the Team

At Winkworth Harringay Estate Agents, we have a comprehensive team of knowledgeable and personable property experts who are excited about the local area. So whether you're buying, selling, renting or letting or simply need some advice, pop into our office on Green Lanes for the experience and the local knowledge you need.

See all team members

Got a question about this property?

This site is protected by reCAPTCHA and the Google Privacy Policy and Terms of Service apply.

More Properties like this

Under Offer

Burgoyne Road, London, N4

Guide Price £735,000 Share of Freehold

Under Offer

Sydney Road, London, N8

Guide Price £725,000 Share of Freehold

Under Offer

Wightman Road, London, N4

Guide Price £650,000 Leasehold

Frankum Mews, London, N22

£649,950 Leasehold

Under Offer

Duckett Road, London, Haringey, N4

Guide Price £635,000 Share of Freehold

New Instruction

Coningsby Road, London, N4

£625,000 Share of Freehold

Online Valuations Aren’t Worth The Paper They’re Printed On.

When online valuations don’t give you the whole picture - try Winkworth’s expert service. Get a free property appraisal. Accurate valuations from our local property experts. No obligation to list with Winkworth. Choose a time convenient for you with our online booking system.

Fill in your details and someone will be in touch soon:

You have provisionally booked a valuation for . Please confirm your details below

We don't have date info available for this property, but if you fill in your details below, someone will be in touch to arrange a date soon

Please fill in the required fields below marked with *

This site is protected by reCAPTCHA and the Google Privacy Policy and Terms of Service apply.