New Instruction
The Green, Wickhambreaux, Canterbury, Kent, CT3
4 bedroom flat/apartment in Wickhambreaux
£250,000
- 4
- 2
- 2
PICTURES AND VIDEOS





















Description
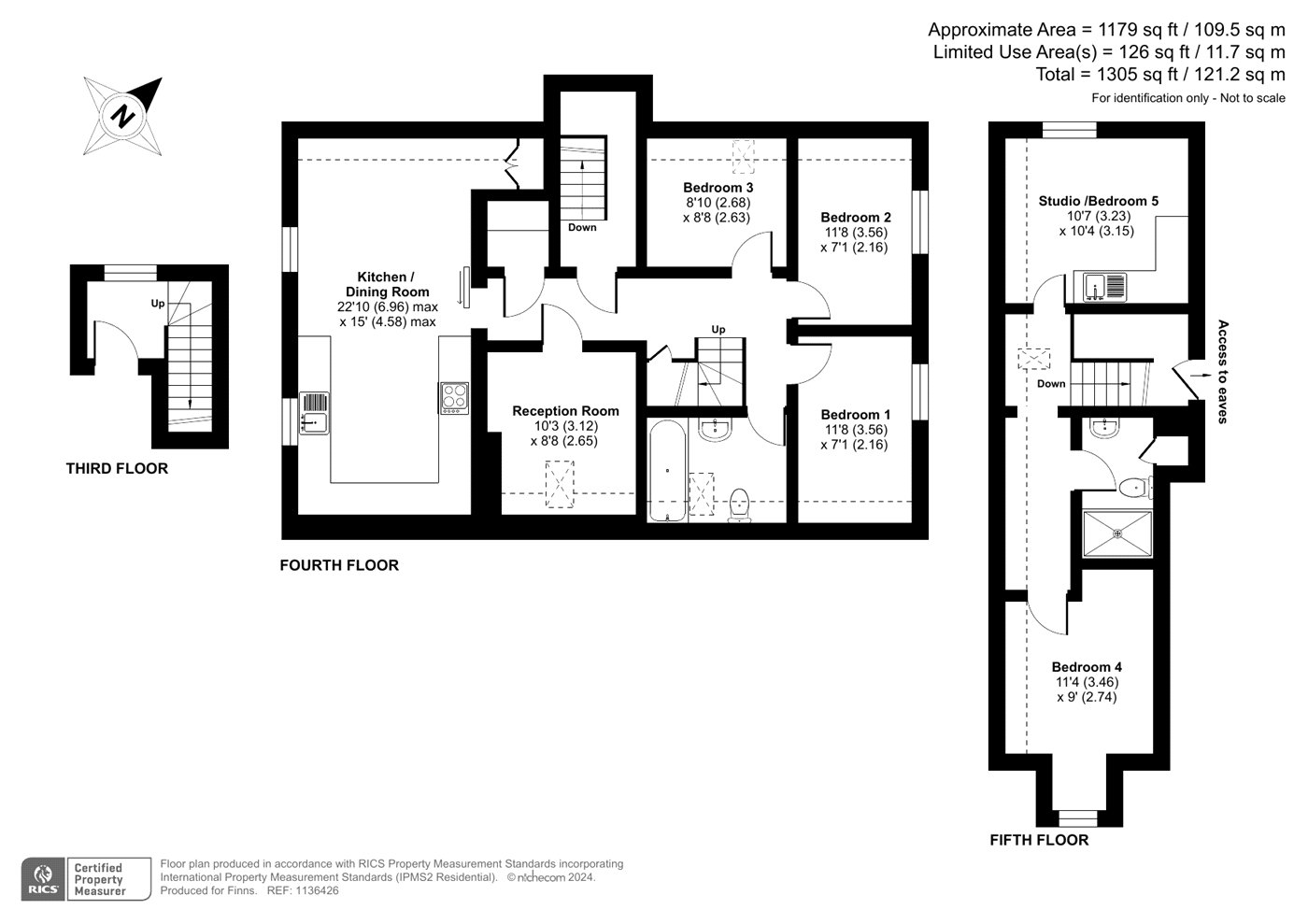
Completely unique to the other apartments in this beautiful converted watermill, number six is larger than the average and occupies two floors, with plenty of rooms to give any family set up complete flexibility in how they use the space.
Situated in the picturesque village of Wickhambreaux, with wonderful views of the river and church, this stylish apartment really must be seen to be fully appreciated. CHAIN FREE
Occupying the third floor, this spacious apartment within a 19th century grade II listed local landmark is approached from a communal hallway and own private staircase to the front door and set over two floors, and from each room there are stunning views from every window, over the river, countryside and church.
The apartment has plenty of rooms, with 4/5 bedrooms, this space offers plenty of flexibility for office/playroom/hobby or bedroom.
Enter into the apartment and appreciate the beautifully appointed open plan kitchen/dining room which makes a great sociable area for entertaining and relaxing. There is a modern and stylish fitted kitchen with modern units and appliances.
There is a seperate living area, just next door, but any of the other rooms can be used as an additional living room if required. There are a further two bedrooms and study on this floor, and a spacious nicely decorated bathroom.
On the upper floor there are two large rooms, which are currently both being used as bedrooms, and a modern shower room.
Outside there is an allocated parking space for one car and access to a communal terrace by the front entrance. There is plenty of parking in the village for visitors.
The new owners will automatically receive 2 of 11 shares/votes of the freehold management company which runs the communal areas of the Mill.
The property falls within Council Tax Band B with a good energy efficiency rating. The monthly maintenance charge, which covers exterior repairs and decoration, communal area maintenance, the fire alarm system and building insurance is £200.
This charming apartment in The Mill occupies a lovely setting with an outlook over the River Stour and to open countryside, located in the heart of picturesque Wickhambreaux. The village has a primary school and a pub with further amenities available in neighbouring Littlebourne.
Wickhambreaux (Whickham meaning a dwelling by creek or meadow) is first mentioned in 948 A.D, then a grant of land was made by Eadred, King of the English. By the time of the Doomsday survey in 1087 the village was well established with 300 sheep grazing, two watermills and a hunting ground at Trenley Park. The suffix ‘breux’ was added after 1285 when William de Breuse or Braose had the manor. The village retains its medieval roots with the church, rectory, manor house, inn and mill encircling the green. There are older cottages which were formally occupied by tradesmen and labourers, while Grove Road and The List have 20th century housing. The Little Stour river flows through the village, although its course was altered during the 18th century to support watermills. The Village Church, dedicated to St Andrew, dates from the 14th century.
The Cathedral city of Canterbury is just ten minutes drive away, and has a superb array of restaurants and both high street and independent shops. There is easy access to large supermarkets and the city’s well-regarded leisure and cultural facilities. There are excellent schools in both private and state sectors, including The King’s School, St Edmund’s School and the Simon Langton grammar schools. The village is also close to the Stodmarsh Nature Reserve, and within easy reach of the coast and just 20 minutes from Dover. From Canterbury West station access to London is less than an hour via the Hi-Speed link. The Mill is also only 20 minutes from the new Thanet Parkway fast train service.
Marketed by
Winkworth Canterbury
Properties for sale in CanterburyArrange a Viewing
Fill in the form below to arrange your property viewing.
Mortgage Calculator
Fill in the details below to estimate your monthly repayments:
Approximate monthly repayment:
For more information, please contact Winkworth's mortgage partner, Trinity Financial, on +44 (0)20 7267 9399 and speak to the Trinity team.
Stamp Duty Calculator
Fill in the details below to estimate your stamp duty
The above calculator above is for general interest only and should not be relied upon
Meet the Team
Our team at Winkworth Canterbury Estate Agents are here to support and advise our customers when they need it most. We understand that buying, selling, letting or renting can be daunting and often emotionally meaningful. We are there, when it matters, to make the journey as stress-free as possible.
See all team members