Skip to main content

MyWinkworth

New Instruction

Front
Garden
Garden
Sitting Room
Kitchen
Garage/Outbuilding
Bedroom 1
Family Room
Music Room
Sitting Room
Bedroom 2
Bedroom 3
Bathroom
Bedroom 4
Bedroom 3
Bedroom 1
Snug
Sitting Room
Dining Room
Utility/Garden Room
Outside
Outside
6/14

The Causeway, Peasenhall, Saxmundham, Suffolk, IP17

4 bedroom house in Peasenhall

Offers in excess of £450,000 Freehold

  • Bedrooms 4
  • Bathrooms 3
  • Reception rooms 5
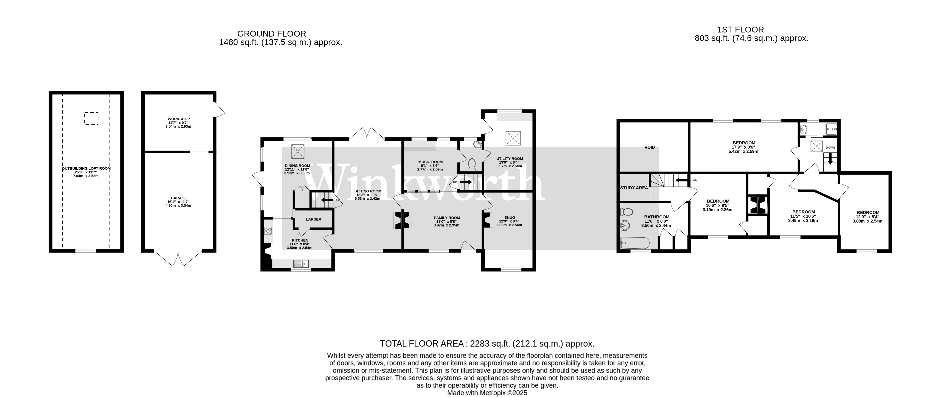
  • Floorplan

PICTURES AND VIDEOS

KEY FEATURES

  • Charming period home in the heart of Peasenhall, one of Suffolk’s most desirable villages
  • Formerly two cottages, now a spacious four-bedroom property with excellent versatility
  • Potential to reconfigure back into two self-contained two-bedroom cottages
  • Striking double-height breakfast room with vaulted ceiling and dual-aspect garden views
  • Characterful Victorian kitchen with solid wood worktops, pantry and original cast-iron bread oven
  • Generous sitting room with exposed beams, timber floors and doors opening to the garden
  • Separate dining room with wood burner and exposed brickwork
  • Music room (former kitchen), cloakroom and impressive double-height utility/boot room
  • Additional snug with open cast-iron fireplace — perfect for cosy evenings
  • Four double bedrooms, each with character features; particularly spacious principal bedroom with scope for en-suite
  • South-facing rear garden backing onto open countryside
  • Large brick-weave terrace ideal for outdoor dining and entertaining
  • Off-road parking for several vehicles plus single garage and workshop
  • Situated on The Causeway among attractive period homes
  • Easy access to the Suffolk Heritage Coast including Southwold, Walberswick and Dunwich
  • Close to Saxmundham, Halesworth and rail links to London Liverpool Street

KEY INFORMATION

  • Tenure: Freehold
  • Council Tax Band: D

Description

Set in the very heart of Peasenhall—one of Suffolk’s most picturesque and sought-after villages—Honeysuckle Cottage presents a rare opportunity to enjoy a quintessential rural lifestyle within easy reach of the unspoilt Suffolk Heritage Coast.

Formerly two cottages and now a generous four-bedroom home, this charming property offers remarkable versatility. Whether you envision multi-generational living, an adjoining holiday let, or simply a wonderfully spacious family home, the accommodation adapts effortlessly to suit evolving needs. Beyond its traditional façade lies a home layered with character and authenticity.

You step into the gorgeous double-height breakfast room—a striking contemporary addition—flooded with natural light and framed by views across the garden and neighbouring fields. The adjoining kitchen, part of the Victorian extension, retains the soul of the original cottage with solid wood worktops, a pantry, and even the cast-iron bread oven that speaks to its heritage. The main sitting room provides a wonderful sense of calm, with exposed beams, timber floors and French doors opening onto the garden—perfect for summer days and relaxed entertaining. Elsewhere, the dining room with its wood burner and exposed brickwork leads through to the former kitchen, now a music room, along with a cloakroom and a double-height utility/boot room. A cosy snug with an open fireplace offers the ideal retreat for winter evenings.

Two staircases rise to the first floor, where four double bedrooms are arranged across the original footprint of the two cottages. Each bedroom enjoys distinct character features including exposed timbers and original stripped doors. The principal bedroom is particularly generous, offering scope to create an indulgent en-suite or dressing area if desired. With existing plans demonstrating how the house can function either as one large family home or two self-contained two-bedroom cottages, the flexibility here is compelling.

Set back from The Causeway and surrounded by handsome period homes, the property enjoys excellent privacy and a lovely outlook across open countryside. A wide brick-weave terrace spans the rear elevation and leads to a gently terraced south-facing garden, predominantly laid to lawn. Off-road parking, a single garage and a workshop complete the practicalities.

Location – Peasenhall & The Suffolk Heritage Coast

Peasenhall is adored for its welcoming community, artisan food shops, and charming high street—home to independent bakers, delis and a village store. Beautiful walking routes weave out toward rolling farmland, while the coast sits temptingly close. The village lies conveniently between Saxmundham and Halesworth, both offering a good selection of shops and cultural amenities, along with rail links to London via Ipswich.

Within a short drive are some of East Anglia’s most admired coastal destinations: the elegant pier and pastel-hued beach huts of Southwold, the peaceful shores of Walberswick, and the wild beauty of Dunwich Heath and RSPB Minsmere. This is a location that perfectly blends rural tranquillity with the very best of Suffolk’s coastal lifestyle.

Council Tax Band: D
Local Authority - East Suffolk Council

We have been advised that the property has the following services. Mains water, mains drainage, electricity and oil fired central heating.

Winkworth wishes to inform prospective buyers and tenants that these particulars are a guide and act as information only. All our details are given in good faith and believed to be correct at the time of printing but they don’t form part of an offer or contract. No Winkworth employee has authority to make or give any representation or warranty in relation to this property. All fixtures and fittings, whether fitted or not are deemed removable by the vendor unless stated otherwise and room sizes are measured between internal wall surfaces, including furnishings. The services, systems and appliances have not been tested, and no guarantee as to their operability or efficiency can be given.

Marketed by

Winkworth Southwold

Properties for sale in Southwold

Arrange a Viewing

Fill in the form below to arrange your property viewing.

This site is protected by reCAPTCHA and the Google Privacy Policy and Terms of Service apply.
Introduction text for the mortgage calculator

Mortgage Calculator

Fill in the details below to estimate your monthly repayments:

Approximate monthly repayment:

For more information, please contact Winkworth's mortgage partner, Trinity Financial, on +44 (0)20 7267 9399 and speak to the Trinity team.

Stamp Duty Calculator

Fill in the details below to estimate your stamp duty

The above calculator above is for general interest only and should not be relied upon

6/14
Front
Garden
Garden
Sitting Room
Kitchen
Garage/Outbuilding
Bedroom 1
Family Room
Music Room
Sitting Room
Bedroom 2
Bedroom 3
Bathroom
Bedroom 4
Bedroom 3
Bedroom 1
Snug
Sitting Room
Dining Room
Utility/Garden Room
Outside
Outside

Meet the Team

As the area's newest independent agent, we bring with us a combined 65 years of experience, and a love for what we do and the local community around us. Understanding the individual needs of our clients is paramount to who we are. Located in the heart of Southwold's High Street our prominent office can be seen by all the right people. Please come and talk to us about your property requirements, and get to know the team from the Winkworth Estate Agents in Southwold.

See all team members

Got a question about this property?

This site is protected by reCAPTCHA and the Google Privacy Policy and Terms of Service apply.

More Properties like this

New Instruction

Darsham, Saxmundham, Suffolk, IP17

Offers in excess of £850,000 Freehold

Needham, Harleston, Suffolk, IP20

Offers over £800,000 Freehold

Wissett, Halesworth, Suffolk, IP19

Offers in excess of £800,000 Freehold

Salisbury Road, Southwold, Suffolk, IP18

Guide Price £795,000 Freehold

Peasenhall Road, Walpole, Halesworth, Suffolk, IP19

£775,000 Freehold

Hinton Road, Darsham, Saxmundham, Suffolk, IP17

Guide Price £700,000 Freehold

Online Valuations Aren’t Worth The Paper They’re Printed On.

When online valuations don’t give you the whole picture - try Winkworth’s expert service. Get a free property appraisal. Accurate valuations from our local property experts. No obligation to list with Winkworth. Choose a time convenient for you with our online booking system.

Fill in your details and someone will be in touch soon:

You have provisionally booked a valuation for . Please confirm your details below

We don't have date info available for this property, but if you fill in your details below, someone will be in touch to arrange a date soon

Please fill in the required fields below marked with *

This site is protected by reCAPTCHA and the Google Privacy Policy and Terms of Service apply.