Skip to main content

MyWinkworth

Sold

Picture No. 31
Picture No. 03
Picture No. 07
Picture No. 28
Picture No. 15
Picture No. 27
Picture No. 11
Picture No. 13
Picture No. 16
Picture No. 10
Picture No. 18
Picture No. 17
Picture No. 19
Picture No. 20
Picture No. 21
Picture No. 23
Picture No. 22
Picture No. 06
Picture No. 02
Picture No. 05
Picture No. 26
6/14

Swallow Hill, Thurlby, Bourne, Lincolnshire, PE10

5 bedroom house in Thurlby

£750,000 Freehold

  • Bedrooms 5
  • Bathrooms 3
  • Reception rooms 3
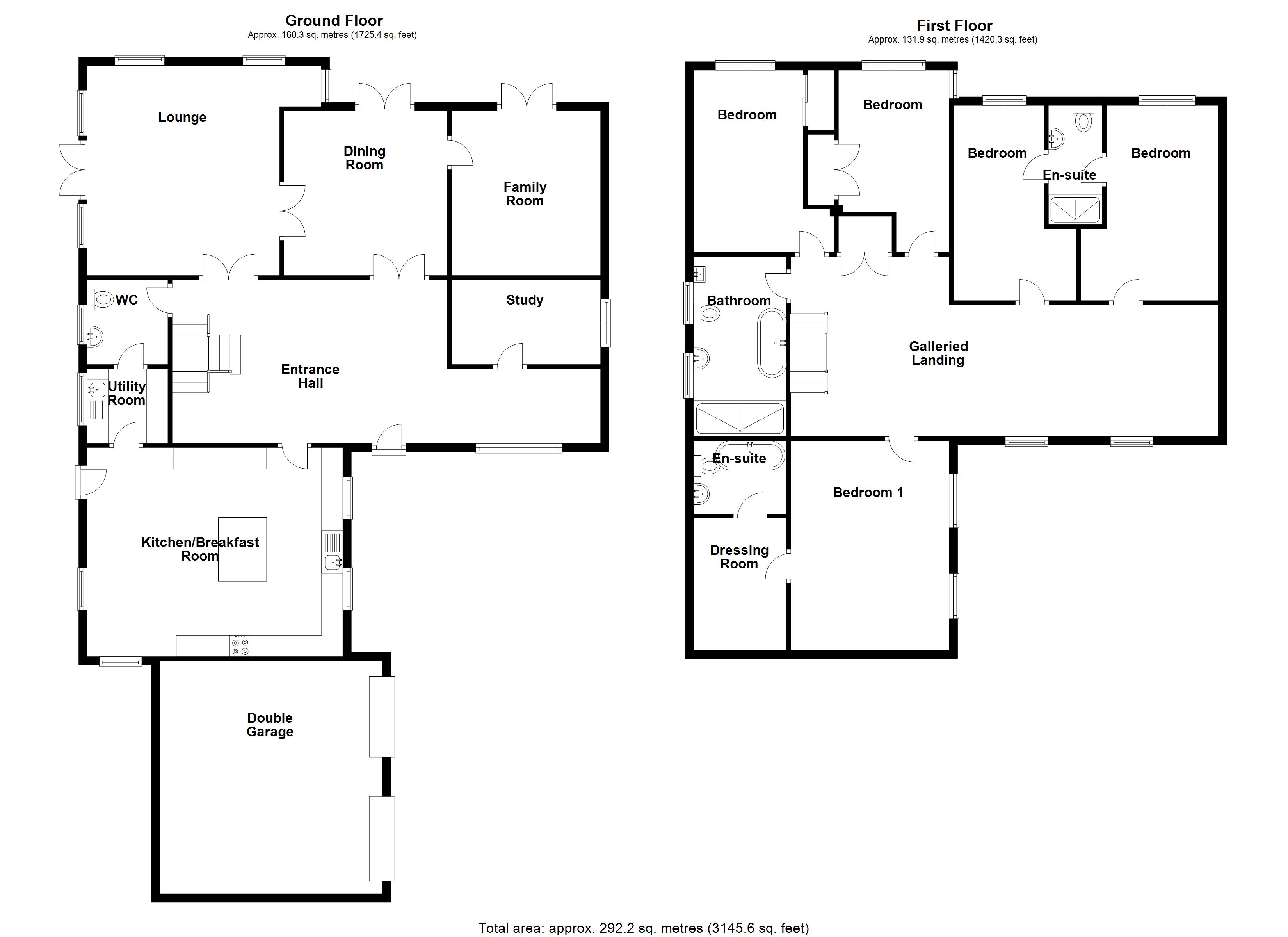
  • Floorplan

PICTURES AND VIDEOS

KEY FEATURES

  • Five bedroom detached family home
  • Located in Thurlby
  • Generous established rear garden
  • Views over open fields
  • EPC Rating C
  • Council Tax Band F

KEY INFORMATION

  • Tenure: Freehold
  • Council Tax Band: F
  • Local Authority: South Kesteven District Council

Description

A truly stunning five bedroom detached family home located in one of Thurlby's most sought after locations with generous established rear garden backing onto open fields. The property has been much improved by the current vendors and is immaculate throughout and offers fantastic family space benefiting from, large entrance hall with double split staircase, four separate reception rooms, stunning kitchen/breakfast room with Corian worktops and utility room off. On the first floor there is large galleried landing leading to the master bedroom with walk-in-dressing room and en-suite, bedroom two and three both have access to a jack and jill en-suite and there are two further bedrooms and large family bathroom. Outside there is a gated driveway providing ample off road parking leading to a double garage and to the rear a generous sized established garden with views over open fields. Please call 01778 392807 for more information.

Rooms and Accommodations

  • Reception Hall
  • 9.75m x 3.76m
  • This magnificent entrance hall has double height ceiling with galleried landing above, split level staircase, tiled floor and window to front aspect.
  • Lounge
  • 5.7m x 5.64m
  • Entered via double opening doors, this light and airy room has radiator, fireplace, two windows to rear aspect, further window to side aspect and French doors opening onto the patio.
  • Dining Room
  • 4.06m x 3.53m
  • Entered via double opening doors, this large room has radiator, French doors opening onto the rear garden and door to
  • Family Room
  • 3.63m x 3.5m
  • With radiator and French doors opening onto the rear garden.
  • Study
  • 3.5m x 2.2m
  • With radiator and window to side aspect.
  • Kitchen/Family Room
  • 5.74m x 5.1m
  • This spectacular room comprises a contemporary kitchen with quality wall and base units, integrated appliances including two built in ovens with warming drawers, microwave, coffee machine and dishwasher; work surface, wall tiling, sink unit, space for American style fridge/freezer, central island unit with induction hob, extractor hood, breakfast bar, LED lighting and ceramic tiled floor. The family area has TV point and there is a breakfast area. This spacious room has two windows to front aspect, further windows to side and rear aspects, door to side patio and door to
  • Utility Room
  • With wall and base units, sink unit, space and plumbing for washing machine, work surface, window to side aspect and connecting door to cloakroom.
  • Cloakroom
  • Comprising low flush WC, vanity wash hand basin, wall tiling, tiled floor, window to rear aspect and connecting door to utility room.
  • Landing
  • 9.75mx 5.05m
  • Approached via the split level staircase and overlooking the entrance hall, this large galleried landing has airing cupboard, access to loft and two windows to front aspect.
  • Master Bedroom
  • 5.18m x 3.35m
  • With radiator, two windows to front aspect and archway to
  • Dressing Room
  • 2.44m x 2.18m
  • With radiator, window to side aspect and door to
  • En Suite
  • Comprising panelled bath, low flush WC, wash hand basin, wall tiling, tiled floor, heated towel rail and window to side aspect.
  • Bedroom Two
  • 4.52m x 3.1m
  • With radiator, window to rear aspect and door to
  • Jack and Jill En Suite
  • Comprising double shower cubicle, wash hand basin, low flush WC, radiator, tiled floor, wall tiling and door to
  • Bedroom Three
  • 4.52m x 2.7m
  • With radiator and window to rear aspect.
  • Bedroom Four
  • 4.37m x 2.95m
  • With radiator, fitted wardrobe and windows to side and rear aspects.
  • Bedroom Five
  • 4.34m x 2.51m
  • With radiator, fitted wardrobe and two windows to rear aspect.
  • Family Bathroom
  • A recently upgraded stunning suite comprising large shower cubicle, freestanding bath, low flush WC, wash hand basin and bidet. With Spanish tiles to walls and floor, heated towel rail and two windows to side aspect.
  • Outside
  • Set behind a five bar gate, this beautiful home is approached via a gravelled driveway which provides ample parking and leads to an integral double garage with two electric doors and rear personal door with electric shutter.

    There is a large patio area to the side of the property and further patio to the formal rear garden which is mainly laid to lawn with stunning views over open fields with mature shrubs, trees, decked entertaining area and two large workshops.
Introduction text for the mortgage calculator

Mortgage Calculator

Fill in the details below to estimate your monthly repayments:

Approximate monthly repayment:

For more information, please contact Winkworth's mortgage partner, Trinity Financial, on +44 (0)20 7267 9399 and speak to the Trinity team.

Stamp Duty Calculator

Fill in the details below to estimate your stamp duty

The above calculator above is for general interest only and should not be relied upon

6/14
Picture No. 31
Picture No. 03
Picture No. 07
Picture No. 28
Picture No. 15
Picture No. 27
Picture No. 11
Picture No. 13
Picture No. 16
Picture No. 10
Picture No. 18
Picture No. 17
Picture No. 19
Picture No. 20
Picture No. 21
Picture No. 23
Picture No. 22
Picture No. 06
Picture No. 02
Picture No. 05
Picture No. 26

Meet the Team

Our team are here to support and advise our customers when they need it most. We understand that buying, selling, letting or renting can be daunting and often emotionally meaningful. We are there, when it matters, to make the journey as stress-free as possible.

See all team members

Got a question about this property?

This site is protected by reCAPTCHA and the Google Privacy Policy and Terms of Service apply.

More Properties like this

Under Offer

Swallow Hill, Thurlby, Bourne, Lincolnshire, PE10

Offers in excess of £900,000 Freehold

North Road, Gedney Hill, Spalding, Lincolnshire, PE12

£695,000 Freehold

Under Offer

Clarks Close, Morton, Bourne, Lincolnshire, PE10

£695,000 Freehold

New Instruction

Swallow Hill, Thurlby, Bourne, Lincolnshire, PE10

£685,000 Freehold

High Street, Horbling, Sleaford, Lincolnshire, NG34

£675,000 Freehold

Donington Road, Horbling, Sleaford, NG34

£570,000 Freehold

Online Valuations Aren’t Worth The Paper They’re Printed On.

When online valuations don’t give you the whole picture - try Winkworth’s expert service. Get a free property appraisal. Accurate valuations from our local property experts. No obligation to list with Winkworth. Choose a time convenient for you with our online booking system.

Fill in your details and someone will be in touch soon:

You have provisionally booked a valuation for . Please confirm your details below

We don't have date info available for this property, but if you fill in your details below, someone will be in touch to arrange a date soon

Please fill in the required fields below marked with *

This site is protected by reCAPTCHA and the Google Privacy Policy and Terms of Service apply.