Sunlight Square, London, E2
2 bedroom flat/apartment in London
£850,000 Leasehold
- 2
- 2
- 1
-
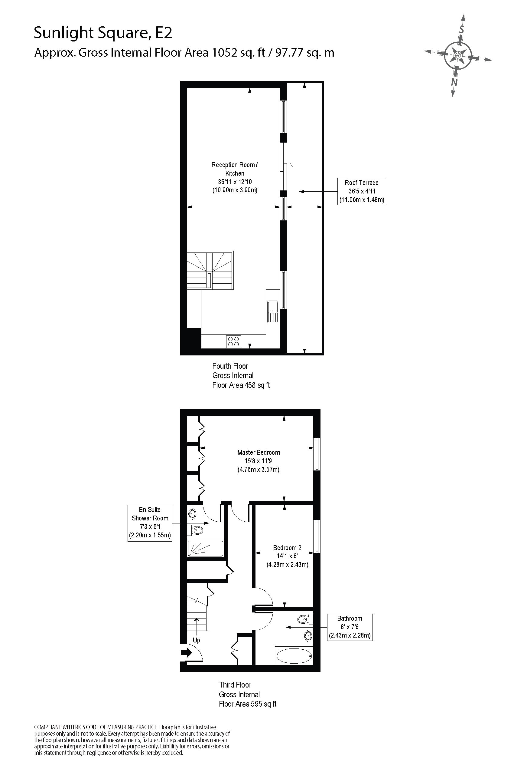
1052 sq ft
97 sq m -
PICTURES AND VIDEOS














KEY FEATURES
- Two Bedrooms
- Two Bathrooms
- Split Level
- Large Private Balcony
- Secure Parking
- 1052sqft
KEY INFORMATION
- Tenure: Leasehold
- Lease Length: 97 yrs left
- Ground rent: £150.00 per annum
- Service charge: £4850.00 per annum
- Council Tax Band: E
Description
The property comprises entrance hall, open plan living room/kitchen/diner, master bedroom with en suite bathroom and walk in shower, second spacious double bedroom and family A sleek, stylish, stunning and modern split level open plan loft apartment within the converted soap factory in the ever-popular Bethnal Green. The development has gated access, gated parking, a lift, the benefit of an onsite porter and communal gardens.
The property comprises entrance hall, open plan living room/kitchen/diner, master bedroom with en-suite bathroom and walk in shower, second spacious double bedroom and family bathroom with white three-piece suite. The huge living area is great for entertaining and provides access to the private outside space. The conversion is situated on the third and fourth floors and offers an abundance of natural light due to the floor to ceiling west facing windows. It also boasts high ceilings and wooden flooring throughout. The apartment has been very well maintained by the current owner and provides a fine example of open plan and minimalistic living.
Sunlight Square was originally the site of the Sunlight Laundry, part of Lever Brothers' innovative approach to public health through industrial laundry services. The advent of home washing machines led to the laundry's closure. Fortunately, the building's aesthetically pleasing and functional design, featuring large windows and high ceilings intended to improve ventilation and working conditions, made it ideal for conversion into large, open-plan, loft-style apartments, which occurred in the 1990s.
Sunlight Square is in an enviable location being a stone’s throw from Whitechapel Station (Crossrail, District, Hammersmith & City, East London lines). You are also within a short distance to Aldgate, Aldgate East and Liverpool Street underground stations and Shadwell DLR and Cambridge Heath stations, providing unrivalled access across the City and beyond. In addition, you have a vast range of local amenities on your doorstep including Brick Lane, Spitalfields and Whitechapel markets with an abundance of boutique shops, cafes, bars and restaurants, as well as a Sainsbury’s Superstore.
*Any associated charges including, but not limited to, service charge, ground rent and sinking funds outlined in the marketing material is an approximation calculated using information provided by and described by the client at the time of instruction. The actual cost may be subject to change and therefore we recommend all interested parties carry out their own enquiries.*
ACCESSIBILITY
- Lift Access
Utilities
- Electricity Supply: Mains Supply
- Water Supply: Mains Supply
- Sewerage: Mains Supply
- Heating: Gas Central
- Broadband: ADSL, FTTP
Risks
- Flood Risk: There has not been flooding in the last 5 years
Marketed by
Winkworth Shoreditch
Properties for sale in ShoreditchArrange a Viewing
Fill in the form below to arrange your property viewing.
Mortgage Calculator
Fill in the details below to estimate your monthly repayments:
Approximate monthly repayment:
For more information, please contact Winkworth's mortgage partner, Trinity Financial, on +44 (0)20 7267 9399 and speak to the Trinity team.
Stamp Duty Calculator
Fill in the details below to estimate your stamp duty
The above calculator above is for general interest only and should not be relied upon
Meet the Team
Renowned for its world-famous market, Brick Lane sits right in the heart of this vibrant community and it is here too that our office is based. As locals to the area, we pride ourselves on our unrivalled local knowledge and whether it's sales, lettings or property management, strive to provide an unparalleled service and tailor it to your exact needs.
See all team members