Skip to main content

MyWinkworth

Sold

Picture No. 03
Picture No. 17
Picture No. 02
Picture No. 06
Picture No. 04
Picture No. 07
Picture No. 11
Picture No. 12
Picture No. 13
Picture No. 16
Picture No. 09
Picture No. 05
Picture No. 01
Picture No. 15
Picture No. 14
Picture No. 08
Picture No. 10
6/14

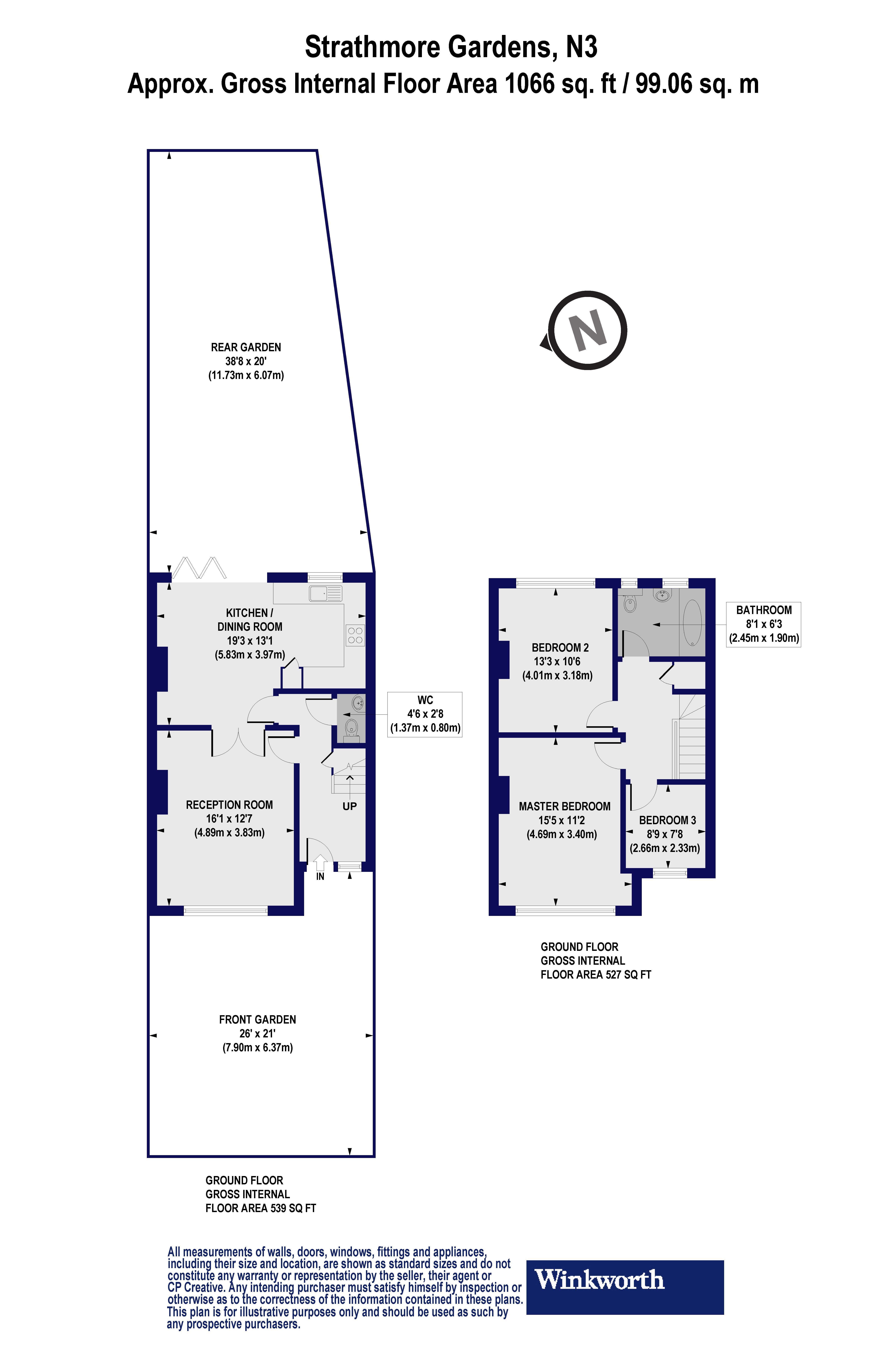
Strathmore Gardens, Finchley, London, N3

3 bedroom house in Finchley

£899,950 Freehold

  • Bedrooms 3
  • Bathrooms 1
  • Reception rooms 2
  • Floorplan

PICTURES AND VIDEOS

KEY FEATURES

  • Newly refurbished throughout
  • Mid Terraced family home
  • Open plan living + Front reception room
  • Three bedrooms
  • Front & Rear Gardens
  • Potential to extend (stpp)
  • Offered chain Free

KEY INFORMATION

  • Tenure: Freehold
  • Council Tax Band: E
  • Local Authority: Barnet Council

Description

Looking for the WOW FACTOR!!

We are pleased to offer this fully refurbished and modernised family home set in a quiet residential turning, ideally located for Victoria Park, Good Ofsted Rated schools, local amenities and transport links on Ballards Lane. To the ground floor the property comprises of a spacious entrance hallway, front reception room, open plan fully integrated kitchen/dining room with bi-folding doors to rear garden and downstairs wc. The first floor comprises of three bedrooms and a brand new family bathroom. Further benefits include new heating system, double glazing, new electrics etc. with further potential to extend (stpp) and create the front garden into off street parking (stpp). Offered on a chain free basis an internal viewing is highly recommended in order to not miss out!
Introduction text for the mortgage calculator

Mortgage Calculator

Fill in the details below to estimate your monthly repayments:

Approximate monthly repayment:

For more information, please contact Winkworth's mortgage partner, Trinity Financial, on +44 (0)20 7267 9399 and speak to the Trinity team.

Stamp Duty Calculator

Fill in the details below to estimate your stamp duty

The above calculator above is for general interest only and should not be relied upon

6/14
Picture No. 03
Picture No. 17
Picture No. 02
Picture No. 06
Picture No. 04
Picture No. 07
Picture No. 11
Picture No. 12
Picture No. 13
Picture No. 16
Picture No. 09
Picture No. 05
Picture No. 01
Picture No. 15
Picture No. 14
Picture No. 08
Picture No. 10

Meet the Team

Here at Winkworth Finchley Estate Agents, our local knowledge and expertise will give you the advantage. Thanks to 25 years serving the Finchley community, we know the area inside out and we always ensure our service is friendly, professional and personal from start to finish.

See all team members

Got a question about this property?

This site is protected by reCAPTCHA and the Google Privacy Policy and Terms of Service apply.

More Properties like this

Church Crescent, Finchley, London, N3

£1,800,000 Freehold

Freston Park, Finchley, London, N3

£1,700,000 Freehold

Under Offer

Etchingham Park Road, Finchley, London, N3

Offers in excess of £1,500,000 Freehold

Under Offer

Etchingham Park Road, Finchley, London, N3

Offers in excess of £1,500,000 Freehold

Claremont Park, Finchley, London, N3

£1,490,000 Freehold

Hendon Lane, Finchley, London, N3

Offers in excess of £1,395,000 Freehold

Online Valuations Aren’t Worth The Paper They’re Printed On.

When online valuations don’t give you the whole picture - try Winkworth’s expert service. Get a free property appraisal. Accurate valuations from our local property experts. No obligation to list with Winkworth. Choose a time convenient for you with our online booking system.

Fill in your details and someone will be in touch soon:

You have provisionally booked a valuation for . Please confirm your details below

We don't have date info available for this property, but if you fill in your details below, someone will be in touch to arrange a date soon

Please fill in the required fields below marked with *

This site is protected by reCAPTCHA and the Google Privacy Policy and Terms of Service apply.