New Instruction
Spurling Road, London, SE22
2 bedroom flat/apartment in London
£775,000 Share of Freehold
- 2
- 1
- 1
PICTURES AND VIDEOS















KEY FEATURES
- • Private South-West facing Garden
- • Central Location
- • Fully refurbished
- • Victorian Conversion
KEY INFORMATION
- Tenure: Share of Freehold
Description
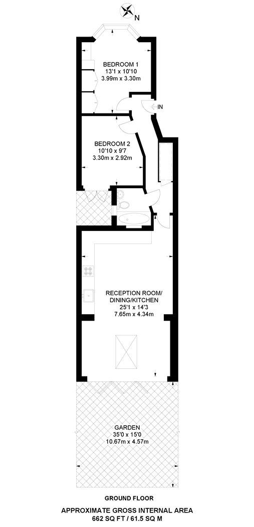
Inside, the home boasts a bright and spacious living area with tasteful modern décor throughout. The sleek, fully fitted kitchen includes integrated appliances and generous storage, making it ideal for both everyday living and entertaining. Two well-proportioned bedrooms offer flexibility, whether you're looking for a guest room, home office, or growing family space. The modern bathroom is finished to a high standard with quality fixtures and a clean, elegant design.
The private garden provides a peaceful retreat and a perfect space for outdoor dining, relaxing, or gardening — extending your living area into the outdoors.
Set within the sought-after SE22 postcode, the property is just a short stroll from the vibrant Lordship Lane, home to a wide range of independent shops, popular cafes, restaurants, pubs, and a weekly market. You're also close to green spaces such as Dulwich Park and Peckham Rye Common, ideal for outdoor activities and leisure.
For families, the property falls within the catchment area of several highly regarded primary and secondary schools, including Harris Primary East Dulwich, Heber Primary, and The Charter School East Dulwich.
Transport links are excellent, with East Dulwich station offering direct services to London Bridge, and nearby bus routes providing access to central London and surrounding areas.
AGENT NOTES:
Mobile phone coverage:
EE (Good outdoor and in-home, Good outdoor, Good outdoor and variable in-home, Variable outdoor, Poor to none outdoor)
Three (Good outdoor and in-home, Good outdoor, Good outdoor and variable in-home, Variable outdoor, Poor to none outdoor)
O2 (Good outdoor and in-home, Good outdoor, Good outdoor and variable in-home, Variable outdoor, Poor to none outdoor)
Vodaphone (Good outdoor and in-home, Good outdoor, Good outdoor and variable in-home, Variable outdoor, Poor to none outdoor)
(Potential purchasers are advised to seek their own advice as to the suitability of the services and mobile phone coverage, the above is for guidance only.)
Available broadband: Ultrafast Broadband: FTTP / Fibre to the Premises / Full fibre / Gigabit fibre
Superfast Broadband: FTTC / Fibre to the Cabinet / Superfast / SoGEA
Standard Broadband: ADSL / Asymmetric Digital Subscriber Line / Copper broadband
Networks in your area: Virgin media, Openreach
(Information supplied by Ofcom)
Flood Risk: High risk of surface water flooding / Very low risk river and sea flooding (Information supplied by gov.uk and purchasers are advised to seek their own legal advice)
Tenure: Freehold / Leasehold / Share Of Freehold
Local Council: Southwark / Tax Band: C
EPC Rating: C
Floor plan: Whilst every attempt has been made to ensure accuracy, all measurements are approximate and not to scale. The floor plan is for illustrative purposes only.
Marketed by
Winkworth Dulwich
Properties for sale in DulwichArrange a Viewing
Fill in the form below to arrange your property viewing.
Mortgage Calculator
Fill in the details below to estimate your monthly repayments:
Approximate monthly repayment:
For more information, please contact Winkworth's mortgage partner, Trinity Financial, on +44 (0)20 7267 9399 and speak to the Trinity team.
Stamp Duty Calculator
Fill in the details below to estimate your stamp duty
The above calculator above is for general interest only and should not be relied upon
Meet the Team
Our team at Winkworth Dulwich Estate Agents are here to support and advise our customers when they need it most. We understand that buying, selling, letting or renting can be daunting and often emotionally meaningful. We are there, when it matters, to make the journey as stress-free as possible.
See all team members